11 Housing in a slope is a proposal by 2:pm architectures for Parc Loire Anjou Tourraine designed in 2011. It is located in Turquant France in an outskirt setting. Its scale is large with an estimated budget of 750.000 €. Key materials are metal and polycarbonate. Concepts such as sustainability transparency aggregation and gallery are explored.

Sustainable development must begin with a general reflection of the building process, including on materials. It is important to prove that today, building a sustainable and energy-efficient, is not necessarily synonymous with building in wood. Indeed the extensive use of a material can quickly become detrimental to the economic market. Steel is a building material to take into account development considerations sustainable in many aspects. The steel is recycled and reclaimed 100% ie it is reusable indefinitely and found all of its original properties after treatment of steel of more often it is produced locally, the routing of material structural work presents an overview Low carbon. The implementation of the steel framing system under construction is done by assembly. the steel housings are easy to disassemble, we recover the components and recycled.

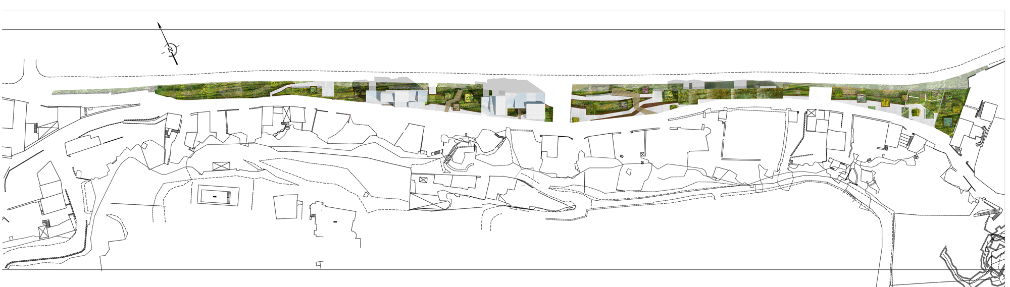
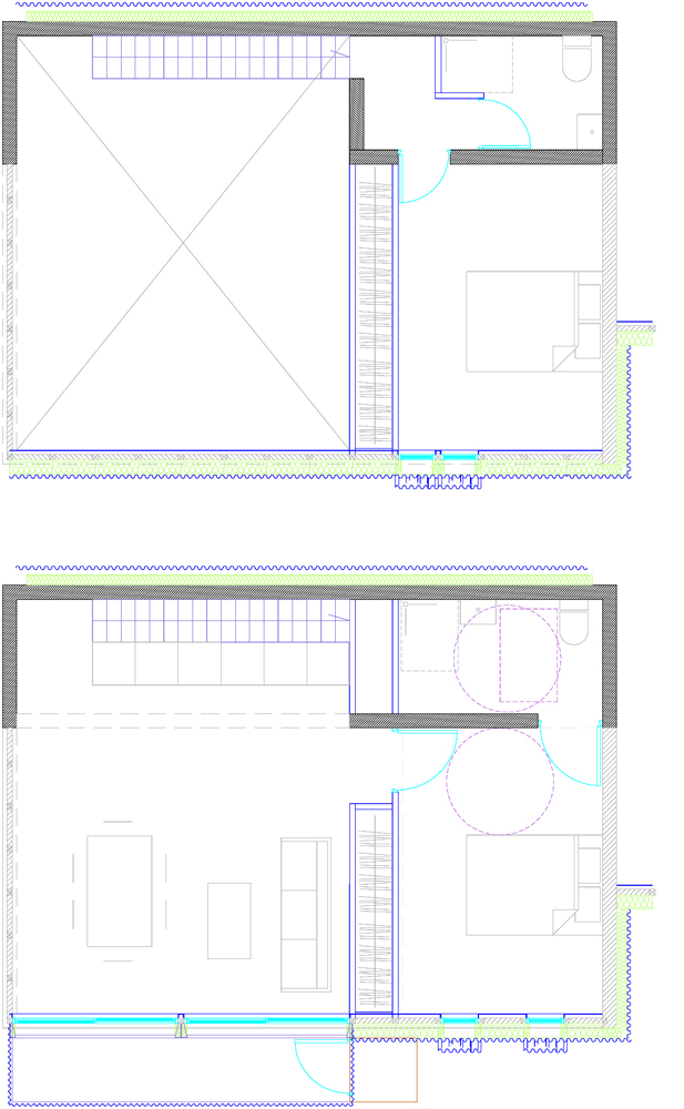
The project is the choice of expressing a habitat in the density of implantation and two totaling 11 units. These two types are as two ways to integrate into the site, two wills of dialogue with the slope and meet the demands of the various programmatic typologies. The building to the east of the site has a slender volume, placed horizontally on the rock with an opening on the panorama from the bed of the Loire. The roof is single but has inflections in conjunction with cutting of Crete rear of the cliffs. The two buildings to the west offer a vertical houses reminiscent of the country, single slope roof such as quartz cut slightly squared resonate with houses arranged in excavations troglodytes. These buildings offer a contemporary reinterpretation of the local habitat while maintaining the characteristics vernacular architecture in Turkey: fine facades on the street, shooting vertical, single slope roof, accessibility by exterior stairs.

0566-2PM-FR-2011 — Posted in 2012 — Explore more projects on housing and residential — Climate: temperate and continental — Team: AIA Ingénierie, Bétyle, Cabinet Faure — Views: 4.869