96 logements Chalon-sur-Saône is a proposal by Lacaton & Vassal for OPAC Saône-et-Loire designed in 2010. It is located in Chalon-sur-Saône France in an urban setting. Its scale is medium with a surface of 14.725 sqm an estimated budget of 11.200.000 € and a ratio of 761 €/sqm. Key materials are concrete and polycarbonate. Concepts such as open ground floor flexibility and balcony are explored.

Le projet pour les logements dans le secteur Sud s’intègre dans un projet d’ensemble, et ne doit pas apparaître comme une opération isolée. Dans ce quartier, toutes les opérations engagées doivent avoir une cohérence, appartenir à une identité générale. Dans ce secteur Sud, se trouvent des éléments singuliers comme une tour, ou la résidence “Louise Michel”, avec des implantations de bâtiments qui ne sont plus dans la même logique que la partie centre et nord du quartier. Ces immeubles occupent le centre du secteur, alors que, au nord de la rue Solingen, l’espace au centre est vide et végétal. Le projet prend en compte le souhait de créer un front urbain bâti, le long de l’avenue Pierre Nugue. Il s’appuie également sur 2 caractères importants du site des Prés St Jean:

– le mail planté, qui traverse Nord-Sud le site,
– l’espace central végétal, qui apparaît fortement sur l’ensemble du site, de part et d’autre du mail, qui peut évoluer, par ses dimensions et sa compacité, vers un grand parc.

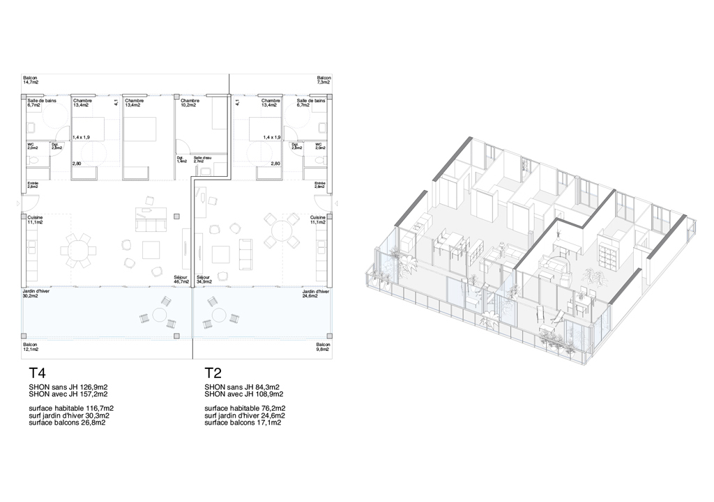
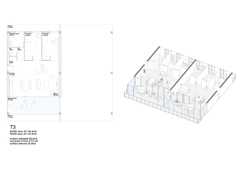
L’attente d’habitations beaucoup plus grandes que les logements standards constitue un autre point déterminant du programme. Le projet propose des habitations, qui offrent le confort et les facilités d’une maison individuelle dans une organisation un peu plus dense et plus collective, avec une densité et des hauteurs cohérentes avec le quartier. Les observations sur le site, les simulations d’implantation du programme nous ont également conduits à poser comme préalables les principes de base suivants:

– conserver les valeurs naturelles du terrain
– maintenir la végétation existante , la conforter et créer les conditions de son expansion
– minimiser au maximum les surfaces imperméabilisées pour maintenir le plus souvent le sol naturel et réduire l’empreinte au sol des constructions et des voiries.

0054-LAV-FR-2010.15 — Posted in 2013 — Explore more projects on housing and residential — Climate: continental and temperate — Coordinates: 46.789780, 4.864237 — Views: 11.031