Adaptive Reuse of a Sugar Factory hall into conference and community center is a winning proposal by Alcolea + Tárrago for Ayuntamiento de Monzón designed in 2023. It is located in Monzón Spain in an urban and park setting. Its scale is medium with a surface of 2.000 sqm an estimated budget of 2.725.773 € and a ratio of 1.363 €/sqm. Key materials are plaster and wood. CIB Images collaborated as visualizer.

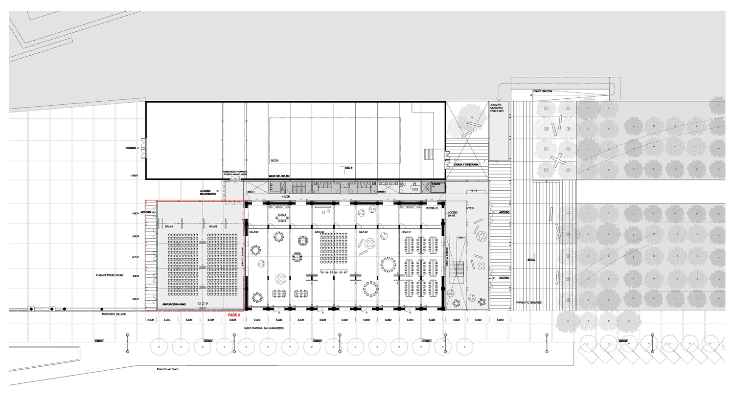
The proposal “Fragments of Nostalgia” has been awarded the first prize in a national two-stage competition for the restoration and adaptive reuse of the factory “La Azucarera” in Monzon, Spain. The project will preserve and transform the main sugar industrial hall into a conference center and will include additional co-working and shared spaces.

“Fragments of Nostalgia” starts from conservation, demolishing and redoing only what is not reusable, to define the most conservative actions and recover an approximate image of the former industrial heritage; to establish a serene dialogue with the context; and based on thermodynamic strategies and the industrialization of a piece, an ‘energy backpack’, including facilities and support areas, to obtain the first PEB (Positive Energy Building) public building in Monzón within the planned deadlines.

The set of interventions will be partially funded as one of the strategic projects in the Urban Agenda program for the EU.

3138-ATA-ES-2023 — Posted in 2024 — Explore more projects on cultural cultural center and refurbishment — Climate: continental and temperate — Coordinates: 41.9154104, 0.1884978 — Team: Rubén Alcolea, Jorge Tárrago, Fernando Iraburu, Carlos Iraburu, Miguel Domper — Consultant: INARQ, Isabelino Rio, J. I. Iriarte — Views: 5.131