Bamiyan Cultural Center is a proposal by Pedro Miguel Santos for UNESCO and Ministry of Culture of Afghanistan designed in 2015. It is located in Bamyan Afghanistan in a riverside setting. Its scale is medium with a surface of 2.200 sqm an estimated budget of 2.500.000 € and a ratio of 1.136 €/sqm. Key material is concrete. Concepts such as ribs and stratification are explored. Review the 12 proposals for the same competition.

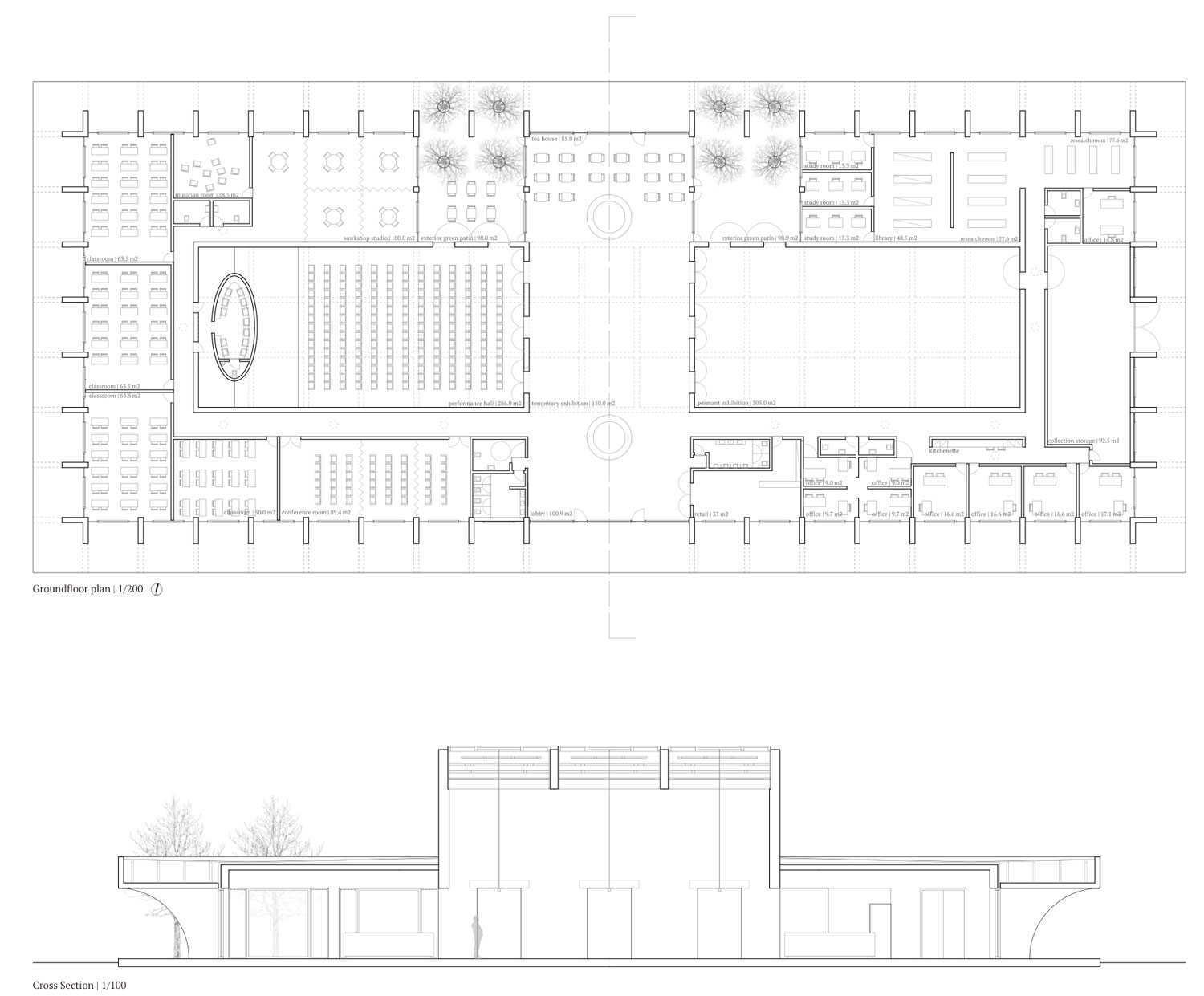
Our proposal for the Bamiyan Cultural Centre, starts from a simple gesture over the sensitive landscape of the Bamiyan valley. A rectangular and low structure (3.5 meters high) which is open on its four sides to the landscape, surrounds a second rectangular structure with a more vertical character. This scheme enables the building program to be vertically and horizontally hierarchized and at the same time, allows the building to reduce its apparent scale without compromising the spatial proportions of the structure’s public program. Despite the subtle interaction with the landscape, the building does not hide in the middle of it, instead, it does a gentle integration. And this integration it’s catalyzed by the materiality of the building. The exposed concrete of the continuous porch that surrounds the cultural center, is harmonized with the landscape through the use of local sand and aggregates on its fabrication and the tonality of the central volume is given by the rammed earth walls, also made by local materials.

1131-PMS-BIM.AF-2015 — Posted in 2015 — Explore more projects on cultural and cultural center — Climate: desert / arid and hot — Coordinates: 34.822108, 67.825320 — Views: 4.291