Bank Austria Campus is a proposal by AllesWirdGut Architektur for Uni Credit and Bank Austria designed in 2011. It is located in Wien Austria in a railway and urban setting. Its scale is extralarge with a surface of 250.000 sqm. Key materials are concrete and glass. Concepts such as courtyard broken volume and ribs are explored.

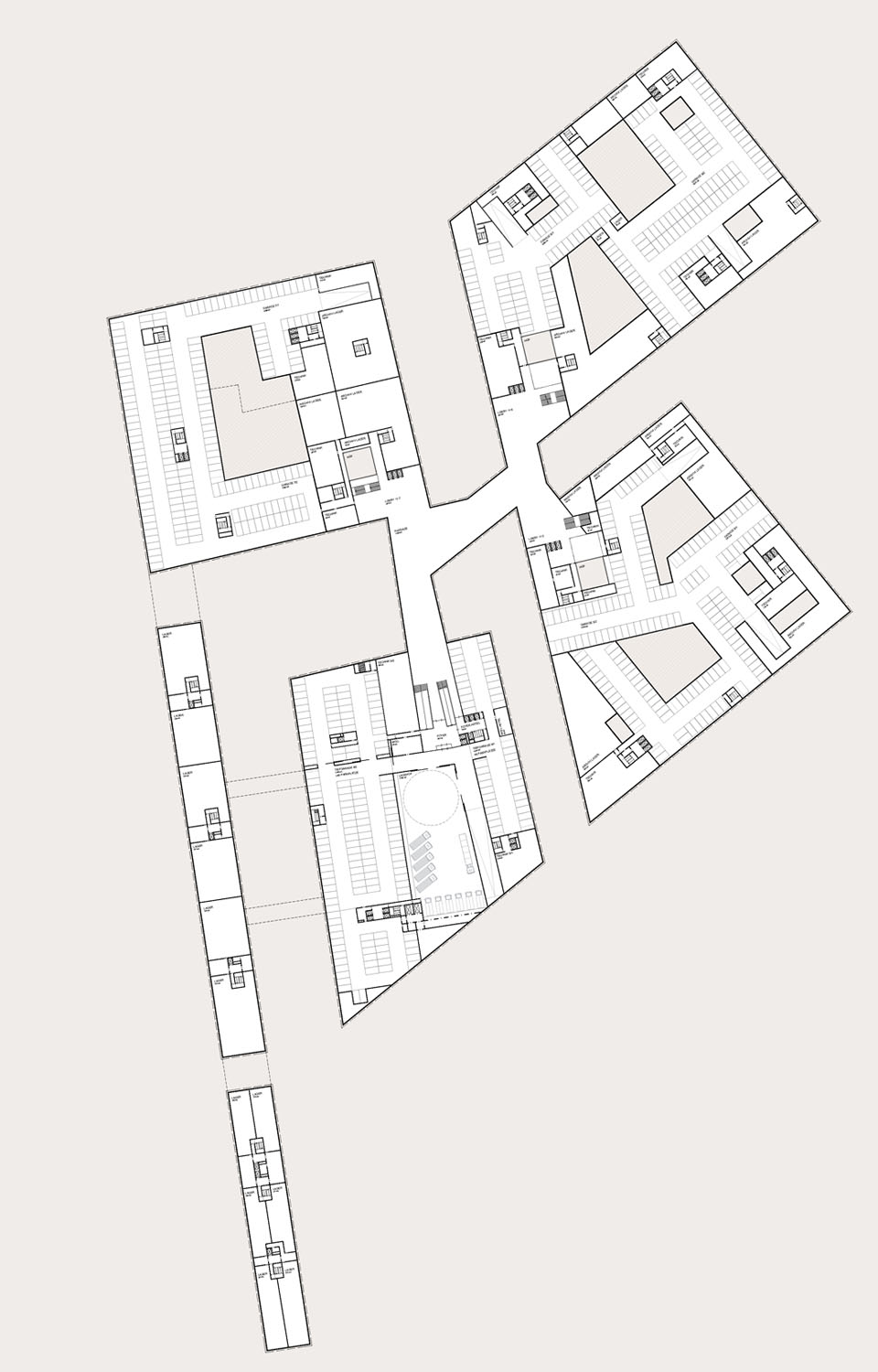
Als Stadt in der Stadt ist der Bank Austria Campus integraler Bestand der urbanen Umgebung und lebenswertes Arbeitszentrum. Blockstruktur und Straßennetz der Umgebung werden weitergeführt und gliedern den Campus in die Nachbarschaft ein. Ein lediglich dreigeschossiger Sockel zeichnet die Blockform nach und bildet das Fundament für die sogenannten „Pixel“. Im Inneren entstehen öffentliche Gärten, die dem Stadtraum eine zusätzliche qualitäten verleihen. Im Bereich der Bank Austria wirken die Straßen nun großzügiger und sonniger. Dies gilt auch für innere Gärten, die durch wechselnde Trakttiefen der Randbebauung in vielfältige Erholungsräume gegliedert sind. Zudem kommunizieren die Pixel der einzelnen Bauteile miteinander, indem sie vielfältige Blickbezüge zulassen. Die Hauptfoyers der drei Bürobauteile öffnen sich zum zentralen Platz. Markiert werden sie durch extra große Pixel, deren Obergeschosse den CEO-Büros vorbehalten sind. Öffentlichere Funktionen wie Besprechungsräume, Cafés und Foyers befinden sich im Erdgeschoss.

Die Haupteingangshallen sind alle unterirdisch miteinander verbunden, sodass wetterunabhängiges Durchqueren des Areals möglich wird. Das landschaftliche Konzept für das Territorium spiegelt den städtebaulichen und architektonischen Ansatz wider. Die Bodenbeläge des Straßenraumes betonen die städtischen Qualitäten des Freiraums, während die Lichthöfe mit Schattenpflanzen der besonderen Art dekoriert werden. Die Terrassen oberhalb der Sockel der Gebäude sind mit Gräsern bepflanzt, die den Raum in unterschiedliche Bereiche strukturieren (Spielbereiche und Terrassen). Die Fassadenkonzeption kombiniert exzellenten Wärme- und Sonnenschutz mit natürlicher Belichtung und Lüftungsmöglichkeiten, bei guter Schalldämmung und Witterungssicherheit. Die BankAustriaCity erhält eine markante Silhouette, die zum einen auf die typischen, wechselnden Gebäudehöhen der Wiener Altstadtblöcke verweist und zum anderen ein Landmark entstehen lässt.

0527-AWG-VIE.AT-2011 — Posted in 2012 — Explore more projects on office and office building — Climate: oceanic / maritime and temperate — Team: Christof Braun, Johann Wittenberger, Maxime Bossard, Jakub Klima, Lena Schrade, Ondrej Stehlik — Engineer: TRANSSOLAR, Stefan Holst — Landscape: TOPOTEK 1; Mitarbeit: Francesca Venier, Cesca Bros — Model maker: Mattweiss — Views: 6.231