Basel pavilion of culture is an honour mention proposal by ULTRA Architettura for Archmedium designed in 2013. It is located in Basel Switzerland in an old town setting. Its scale is medium with a surface of 400 sqm. Key material is wood. The concept of grid is explored. Review the 2 proposals for the same competition.

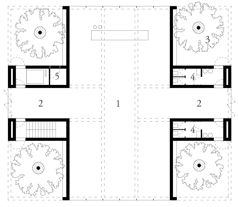
The proposed volume for the Basel pavilion of culture preserves and respects the eight horse chestnuts and the large plane tree situated in the plot assigned in the central Barfüsserplatz. The maintenance of the existing tree species, in addition to protecting the intrinsic value and the identity of the place, constitutes a valid potential for the definition of the volume itself. In particular, four of the existing trees become the focus of four opencast courtyards, inserted respectively in each of the outer corners of the Greek cross on which the plan of the indoor space is set. The courtyards, thanks also to the insertion of some seats, are considered places donated to the city, within which both the visitor that the mere passer-by are invited to carve out a moment of rest and quiet, as well as moments of social exchange. The pavilion, with the exception of the pillars, is made wholly out of wood, treated with the use of black dye, while inside the surface of the beams is coated by a thin layer of gold foil. The light, imagined as a material of the space, filtering through the skylights, skims the golden surface of the beams and diffuses glows in all directions, giving back to the place an almost liturgical character. The vision of the central beams, hovering in the air without being apparently supported by any element of support – sublimated by the golden game of the reflections – produces an effect of aerial suspension, in which the weight of the material seems to dissolve itself as for the absence of gravity.

0911-ULT-BSL.CH-2013 — Posted in 2014 — Explore more projects on cultural and pavilion — Climate: oceanic / maritime and temperate — Coordinates: 47.554712, 7.589735 — Views: 3.798