Bastion Saint-Antoine is a proposal by Poé Matteo George and Bogdan Peric designed in 2016. It is located in Geneva Switzerland in a ruins setting. Its scale is medium with a surface of 5.400 sqm. Key materials are glass and concrete. Onirism collaborated as visualizer. The concept of plaza is explored. Review the 2 proposals for the same competition.

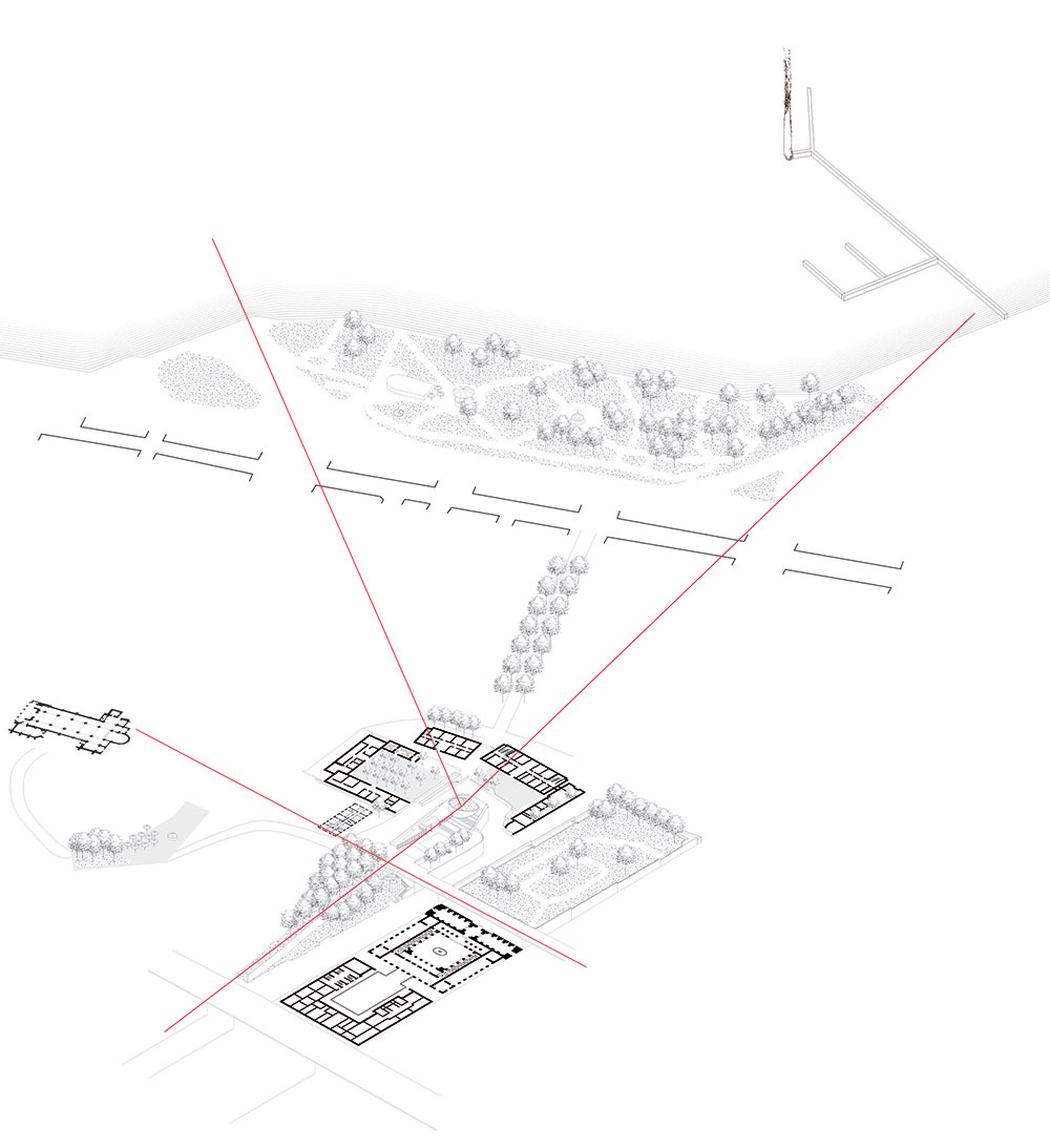
The competition requirements were to design a museum for the archaeological evidences found at the Bastion-Saint Antoine and to organize the public space around the museum. The new public space is related with two main public axes: it lays on the first one, which is connecting the XIXth century city to the Old City through the Art&History Museum and the Bourg-de-Four square, and it is crossed by the second one which, from the Plainpalais, through Saint-Antoine Promenade and Lycée Calvin, leads to Rive and the lake. The public space is organized to face different users and uses. A tree-lined promenade underlining the strip along Emile-Jaques-Dalcroze boulevard and dialoguing with Saint-Antoine Promenade and the Observatoire park; a lowered polyfunctional square, getting closer to the archaeological evidences and being a natural stage for the steps leading to the lowned Belvedere, where it is possible to pic-nic with a view towards the lake; the entrance to the underground Museum, closing the square borders, and the urban lantern, which denounce the lying of the evidences. Public paths are connecting all these different levels with the city, creating a complex space of relations and hierarchies. Also the interior of the museum is conceived as a public path, connecting the levels and the parts of the city through a fluid and differentiated experience.

1903-PMG-GVA.CH-2016 — Posted in 2017 — Explore more projects on cultural interpretation center public space and square — Climate: oceanic / maritime and temperate — Coordinates: 46.200084, 6.151173 — Collaborator: Francesca Depalma — Engineer: Francesca Rogari — Structural engineer: Matteo Provvedi — Views: 17.146