Biopolo La Fe is a proposal by Javier García Solera designed in 2011. It is located in Valencia Spain in a campus setting. Its scale is large. Key materials are metal and concrete. Concepts such as linear block central core and lattice are explored.

El edificio biopolo, se constituye en un periférico a ese gran centro de investigación y aplicación clínica que es el hospital universitario de La Fe. Como tal periférico, nutre y se alimenta de esa relación que mejora las condiciones de ambos. Es en ese sentido y esa dirección que se piensa la arquitectura que se propone para albergar y dar posibilidad a esa rica y mutua relación. El proyecto presentado respeta minuciosamente todas las condiciones de función e interrelación de piezas que el programa plantea y se propone además superarlas al introducir condiciones ambientales, materiales y relaciones que las doten de una mayor calidad. La edificación se conforma con once planta apiladas. Las siete plantas superiores albergan, en una secuencia de tres/una/tres todo el equipamiento de laboratorios exigido así como sus zonas compartidas. Estas plantas se dimensionan y organizan en función del módulo mínimo MME de tal modo que se pueda disponer de ellos, bien aislados bien en combinaciones de dos o tres unidades, con total libertad y libres de cualquier obstáculo para su perfecta distribución. Ni estructura ni instalaciones, tabiquerías fijas o elementos de carpintería de fachada suponen ningunún obstáculo a ello ni en planta ni en sección.

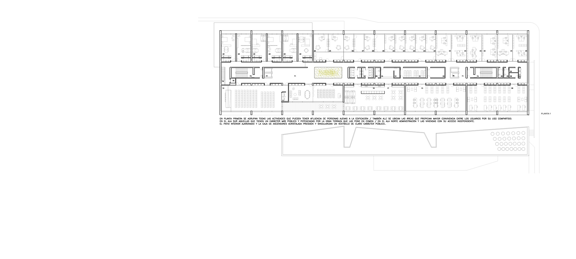
Tanto las plantas altas como la planta quinta, que alberga las áreas de apoyo a la misma, se estructura con el mismo esquema : un cuerpo central con pasillo a ambos lados sirve a las bandas de fachada que albergan todas las dependencias funcionales. Entre estas dependencias y los pasillos se sitúa una estrecha crujía corrida que alberga pasos verticales de circulación de instalaciones registrables como armarios desde el exterior de los laboratorios. Esta pared hueca y gruesa procuda absoluta versatilidad a las instalaciones, así como la variedad en el futuro, mientras se asegura un excelente aislamiento de los posibles ruidos de las áreas de circulación. En el espacio central se albergan los espacios de uso compartido así como las escaleras, ascensores y un gran patio. Este patio, junto con los ascensores y salas de reunión forman burbujas transparentes que permiten una intensa relación de vistas cruzadas entre pasillos y por tanto un ensanchameniento que elimina la sensación de gran longitud de ellos.

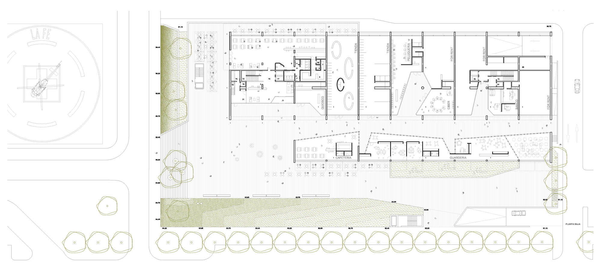
A diferencia del resto de plantas, que son de uso exclusivo de investigadores, al uso y disfrute de la planta baja se suman cuantas personas puedan acudir a La Fe como trabajadores del centro bien como visita de personas allí ingresadas. Así pues, la planta baja alberga una gran cantidad de locales y dependencias para usos compartidos que serán completados conforme se vayan colonizando una vez construidos, como servicios básicos. Allí se encuentran los portales y la gran cafetería restaurante con acceso independiente por la calle pero con posibilidad de acceso directo desde el portal del biopolo. Ante la edificación principal, amabilizando su pie de calle, se encuentra una pequeña y singular pieza alargada y quebrada que se dispone durmiente ante la planta baja del biopolo. Esta pieza exenta de locales comerciales singulariza y matiza todos los recorridos del área comercial a la vez que dota a ésta de un carácter más urbano y sofisticado mientras articula el conjunto de la parcela. Abstracto, pues, en su definición formal y preciso en su solución constructiva. El biopolo propuesto mantiene una coherencia interna en todas sus partes que le confiere una identidad propia y una imagen mesurada. Extremadamente sencillo, aparentemente simple, elegante, como una formulación científica acertada.

1241-JGS-VLC.ES-2011 — Posted in 2015 — Explore more projects on education and research center — Climate: temperate and mediterranean — Coordinates: 39.4452887, -0.3726329 — Collaborator: Ernesto Martínez Arenas, Pilar Fructuoso Vera, Dolores Pérez Payá, Carlos Chillerón, Esteban Parres — Views: 5.142