Bodø Library is a winning proposal by DRDH Architects for Bodø Kommune designed in 2008. It is located in Bodø Norway in a seaside setting. Its scale is medium with a surface of 6.300 sqm an estimated budget of 25.000.000 € and a ratio of 3.968 €/sqm. Key materials are wood glass and metal. Forbes Massie collaborated as visualizer. The concept of ribs is explored.

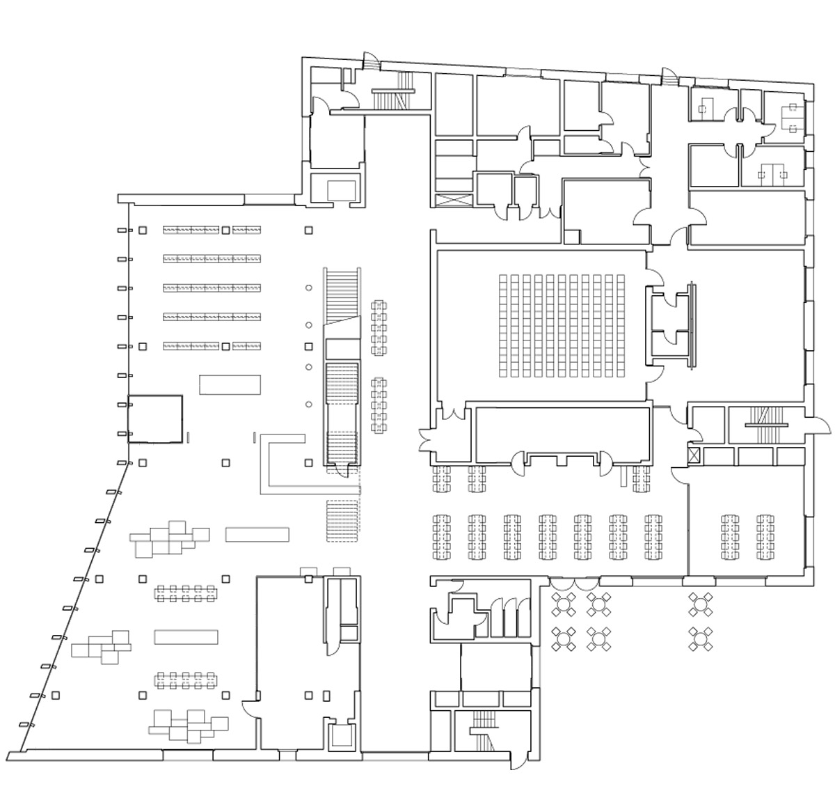
Through an invited international competition in 2009, DRDH was awarded the design of a new Library for the city of Bodø in northern Norway. The invitation followed on from a previous open competition for the masterplan of the city’s Cultural Quarter in 2008, which the practice won. The City Library is one of two principal buildings within the Cultural Quarter, alongside a Concert Hall and Theatre also being designed by DRDH. Both buildings respond to the particularities of their context, situated between city and landscape, whilst maintaining a familial relationship that creates an urban ensemble. Externally, both façades display a trabeated construction of pre-cast concrete, with an aggregate of local white stone. Forms rhyme between them. Roofs and towers speak to one another and the library establishes a horizon, across which the Concert Hall surveys the dramatic landscape of sea and mountains. Internally however the buildings offer quite different characters. The principal spaces of the Library describe an open internal landscape, which focuses upon the main reading space with its glazed elevation to the harbour. The building includes a number of other community functions including a flexible performance space, a gallery, a multifunction room and a café. These are defined as a series of rooms that face the city streets. The building is open to both the city and the harbour, with entrances connected by an internal street. The childrens library, at the top of the building, is more intimate, nestled beneath an inverted roof form and focused around an external play court. Throughout the detailed design stages, the project has been coordinated through extensive use of Building Information Modelling (BIM). The proposal is currently at construction stage and is due to be completed in 2014.

0029-DRD-BOO.NO-2010 — Posted in 2013 — Explore more projects on education and library — Climate: oceanic / maritime and temperate — Coordinates: 67.282820, 14.373923 — Views: 7.058