Bodø Town Hall is a proposal by Effekt for Bodø Kommune designed in 2013. It is located in Bodø Norway in an urban setting. Its scale is large with a surface of 10.700 sqm. Key materials are glass and wood. Concepts such as extension and origami are explored. Review the 7 proposals for the same competition.

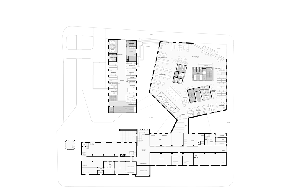
With our proposal for an extension to the City Hall of Bodø, we wish to create a building that is open, welcoming, and builds on the heritage of the existing City Hall. A house that lives up to the highest sustainability standards, and requirements for a modern and flexible work space. It is a task that requires a fine balance between old and new. We want to create a house that respects the site’s existing architecture in terms of mood, materiality and façade compositions, while creating a new and modern, but also long-lasting architectural icon to Bodø. The building’s design is created from an adaptation of the volume to the urban environment – partly to bring light to the adjacent buildings and partly to adapt to the surrounding roofscape. The interior is designed to create a modern and flexible workplace with an open and democratic ground floor which invites the citizens of Bodø inside. The new building ties Bodø City Hall ‘s history and future, citizens and employees together in a coherent and sustainable building. The volume required by the program is morphed to allow views and access to the existing buildings, and adapts to their roof heights to improve light conditions. The building has 3 structural elements: the cores with vertical communication and services, the structural facade and post tensioned concrete floor slabs. Creating completely columnless floors and long term flexibility.

0230-EFF-BOO.NO-2013 — Posted in 2014 — Explore more projects on city hall and institutional — Climate: oceanic / maritime and temperate — Coordinates: 67.283493, 14.382998 — Team: Tue Hesselberg Foged, Sinus Lynge, Simon Sjökvist, Toni Rubio Soler, Gorka Calzada Medina, Jeppe Marling Kiib, Monika Muszynska, Zuzana Retterova, Teresa Guedes, Evgeny Markachev, Yulia Kozlova — Collaborator: Cowi — Views: 4.799