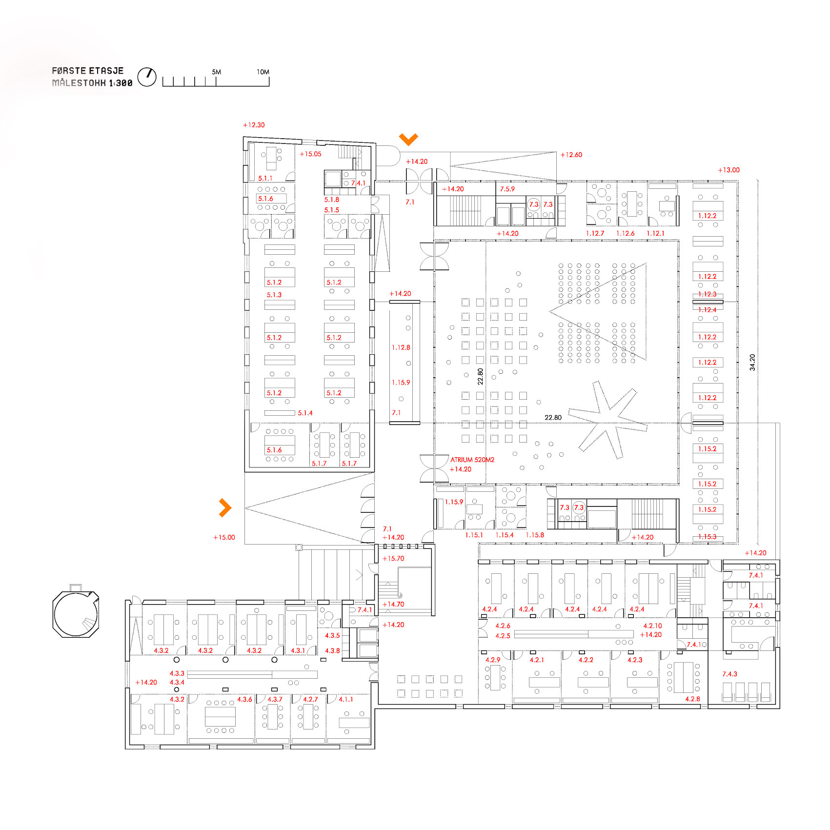
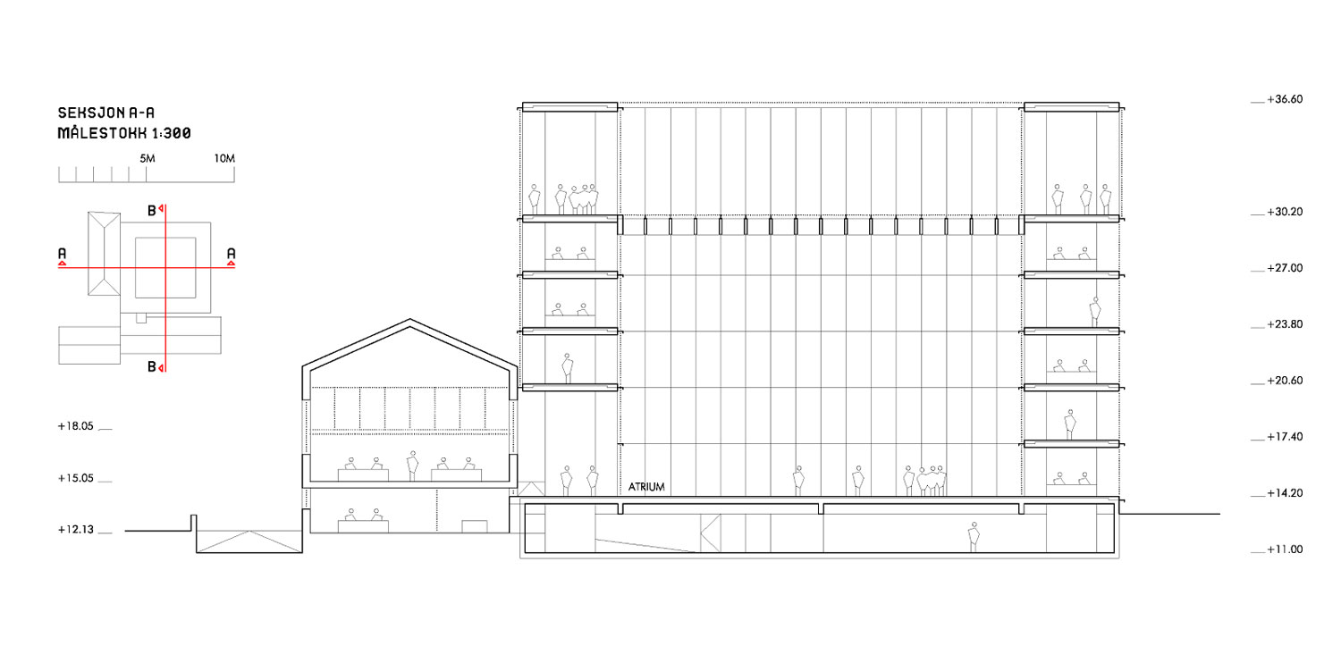
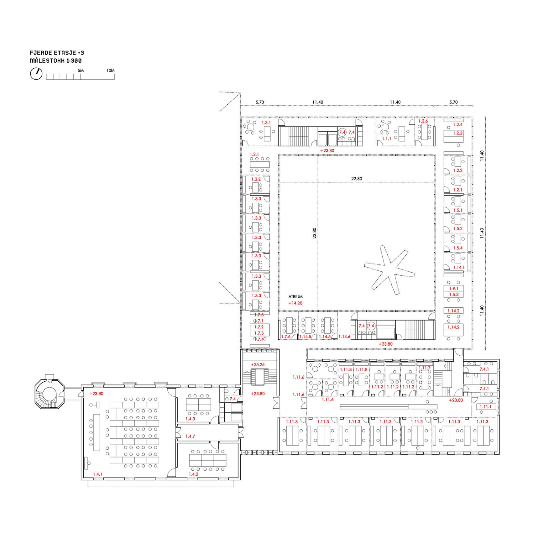
Bodø Town Hall is a proposal by Emilio Tuñon for Bodø Kommune designed in 2013. It is located in Bodø Norway in an urban setting. Its scale is large with a surface of 10.981 sqm. Key materials are glass and metal. Concepts such as atrium reflexion and extension are explored. Review the 7 proposals for the same competition.

La propuesta de la Plaza para el nuevo Ayundamiento de Bodo, literalmente erige un edificio que es tan bueno como la gente que vive en la ciudad y que trabajan en la administración municipal. La propuesta define unas intervenciones audaces y optimistas capaces de modificar la ciudad y la región, proporcionando un enorme ayuntamiento representativo y de función unificadora. Tan solo una forma se propuso para el ayuntamiento con carácter y alma en el corazón de la vibrante ciudad de Bodo. El ayuntamiento está abierto a una amplia gama de actividades y eventos, culturales, sociales, de modo que cualquier persona pueda disfrutar de él. La propuesta se basa en la idea de una gran sala que complementa todos los edificios existentes, haciendo éstos una unidad integral. Esta es precisamente la razón por la convivencia propuesta entre el edificio nuevo y los existentes: el ayuntamiento construido en 1959 por Blakstad y Munthe-Kass y el anexo construido en 1950 por Krisoffer Lange. La propuesta se basa en la construcción de un edificio cúbico de vidrio elevado por encima de los vecinos, estableciendo así una interesante combinación de tradición y modernidad arquitectónica en el corazón de la ciudad.

0211-MTU-BOO.NO-2013 — Posted in 2014 — Explore more projects on city hall and institutional — Climate: oceanic / maritime and temperate — Coordinates: 67.283493, 14.382998 — Views: 4.452