Casa Saboulard is a completed project by aq4 arquitectura designed in 2013 and completed in 2014. It is located in Adeje Spain in a urbanization setting. Its scale is small with a surface of 226 sqm. Key material is concrete. Concepts such as courtyard and flat roof are explored.

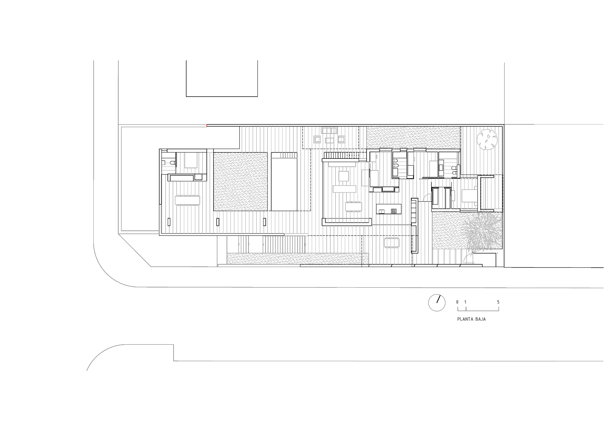
La casa Saboulard está situada en la avenida Madroñal esquina el Viñatigo en el Madroñal de Fañabe, T.M. Adeje, deTenerife, a una altura topogràfica de 99m. El solar tiene 800 m2, se dispone en esquina y su geometría es rectangular. El frente principal del solar es de 48 metros y se afronta a la calle el Viñátigo de orientación Sureste. Por su parte, el frente de la Av. Madroñal tiene un ancho de 17 metros y una orientación Suroeste. La topografía del terreno tiene una acusada pendiente mayor al 10%, generando entre sus puntos extremos un desnivel de 4.90m. La volumetría de la edificación se deposita sobre el terreno creando una plataforma. Esta plataforma, al dejar su base topográfica, vuela y crea un espacio bajo rasante donde se alberga el garaje y trastero . La edificación se sitúa en la extremo noreste del solar para ganar las mejores vistas del terreno y conseguir el máximo asoleo posible en la orientación sur del jardín principal. La fachada Sureste se convierte en la gran ventana de la vivienda proyectándose una gran abertura horizontal por donde mirar.

En la planta baja se proyecta tanto el espacio exterior como interior, de manera que se permita la relación interior-exterior propia de la climatología de lugar. El patio acceso principal se dispone a la orientación este obteniendo así la luz de la mañana. El patio-jardín relaciona el estar-comedor-cocina con el porche y la habitación de invitados. El dormitorio principal, con baño en suite y vestidor, dispone su propio patio, al igual que las otras dos habitaciones. Estos espacios exteriores son los que permiten atravesar visualmente la vivienda. En la planta bajorasante, se dispone el garaje, taller, local de instalaciones y una zona de trasteros para dar servicio a la vivienda. Todos estos usos también van asociados a un patio que acaba definiendo el espacio de dicha planta. La cubierta define un plano que relaciona la casa con el horizonte y con el paisaje volcánico propio de la isla.

0971-AQ4-TCI.ES-2013.14 — Posted in 2014 — Explore more projects on house and residential — Climate: hot and semiarid — Coordinates: 28.092493, -16.723776 — Team: Ibon Bilbao España, Jordi Campos Garcia, Caterina Figuerola Tomás, Carlos Gelpí Almirall — Collaborator: Gastón Saboulard — Views: 3.397