Casal de barrio en Nou Barris is a finalist proposal by Vivas Arquitectos and Pau Vidal for BIMSA designed in 2014. It is located in Barcelona Spain in an urban setting. Its scale is small with a surface of 900 sqm an estimated budget of 1.100.000 € and a ratio of 1.222 €/sqm. Key material is brick. Concepts such as courtyard lattice and step are explored.

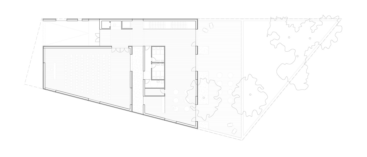
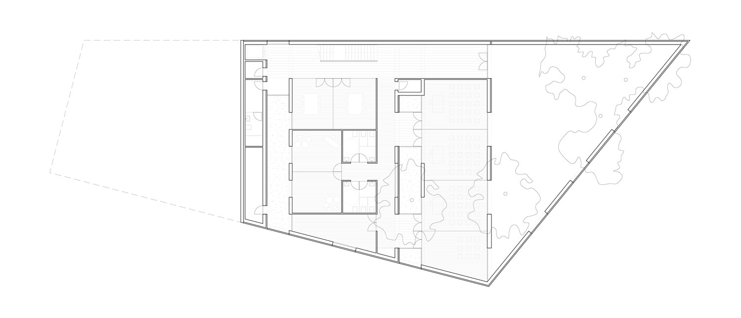
El edificio es primero una valla, que resigue el perimetro dado, conteniendo el programa y una porción del verde existente en este límite de la ciudad a los pies de Collserola. El trabajo de la sección aporta todo el resto: entender primero el lugar y su topografía, distribuir de manera casi automática los usos, ofrecer luz, ventilación y vistas hacia el paisaje de fondo. Se propone un edificio aterrazado que se adapta al desnivel del solar, ajustando la altura edificada para permitir una buena visibilidad desde la calle Palamós, con patios transversales y grandes aperturas a norte para una correcta ilumina ción y ventilación de las salas y buena visibilidad hacia la Casa del agua y el paisaje. Esta implantación en el terreno permite definir de forma gradual la continuidad de espacios verdes que penetran en el nuevo equipamiento a través del jardín, la terraza mirador y las cubiertas ajardinadas entendidas como una fachada más del edificio, visible desde su entorno. El acceso se sitúa en la planta superior desde la pequeña plaza de la calle S’Agaró. En esta planta se sitúan los espacios polivalentes de carácter público con acceso a la terraza mirador y en la planta inferior los espacios funcionales, de administración y servicio con acceso al jardín.

001304-EVI-BCN.ES-2014 — Posted in 2015 — Explore more projects on civic center and institutional — Climate: mediterranean and temperate — Coordinates: 41.452561, 2.187648 — Consultant: Joan Ramon Soldevila, Manuel Arguijo, Eletresjota — Views: 2.640