Centro de Ocio y Cultura is a proposal by Juan Domingo Santos for Bovedillas San Isidro SL designed in 1999. It is located in Granada Spain in a countryside setting. Its scale is large. The concept of adaptable reuse is explored.

La antigua fábrica de azúcar de San Isidro pertenece a una de esas arquitecturas reconocidas, pero olvidadas, en el inventario del patrimonio arquitectónico de la ciudad. La intervención reelabora el patrimonio existente y subraya con su horizontalidad la condición topográfica de este territorio: una capa apenas despegada del suelo que favorezca la relación entre los nuevos y viejos elementos. La idea de paisaje se desprende de la relación entre la arquitectura anterior, la nueva arquitectura y la naturaleza. El proyecto vuelve repetidamente sobre la idea de horizontalidad, una línea de flotación transitoria tan común en la imagen de las plataformas agrícolas de la vega, con sus irregulares alturas en los cultivos y cambiantes colores según la estación del año.

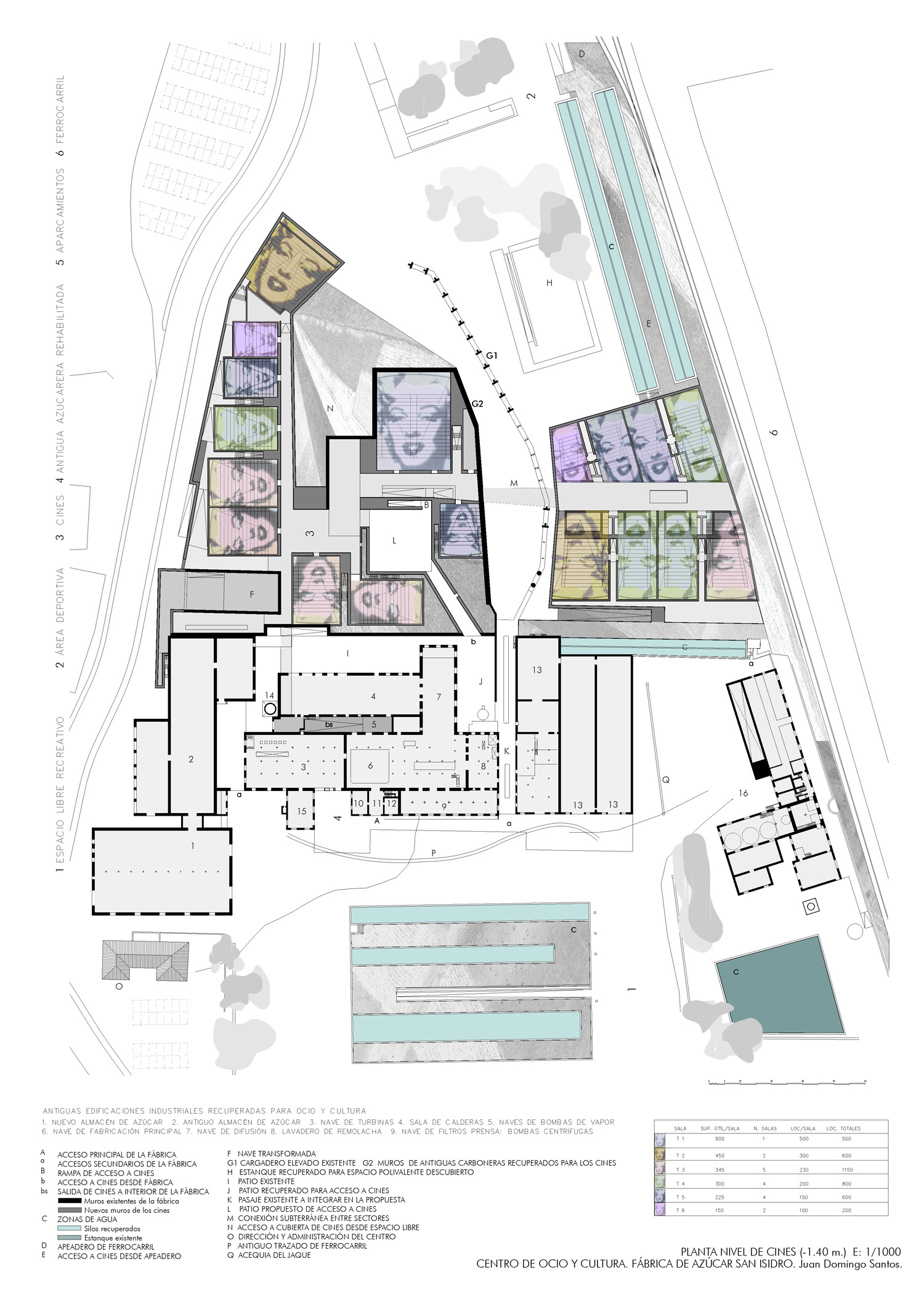
Volver a definir el uso de los silos y carboneras resulta bastante apropiado en este contexto agrícola/industrial, en el que las líneas de extensión de la naturaleza conviven con las arquitecturas tipológicas industriales. El concepto tradicional de lo que habitualmente se entiende por “edificio” desaparece, para situar un nivel en el territorio coincidente con las infraestructuras ubicadas a espaldas de la fábrica. La nueva topografía se construirá con materia orgánica de la vega y verá transformado su aspecto dependiendo de la época y la climatología.

Los usos y las preexistencias

La intención es construir un complejo destinado al ocio y a la cultura sobre un ámbito de 100.000 m2 que aglutine a un amplio sector de público con una oferta variable y extensa. Las antiguas construcciones de la fábrica estarán destinadas a moda, música y restaurantes, junto a áreas de juego, zonas recreativas y otras destinadas a deporte. El conjunto se hará acompañar de 18 salas de cine multiplex de diferente capacidad y tamaño. Las dificultades del proyecto como puede desprenderse de estas cifras, han consistido en acercar todos estos requisitos a la idea original del lugar, evitando insertar un objeto arquitectónico que pudiera modificar la condición natural del entorno.

La construcción de los cines se ajusta al trazado irregular del muro de mampostería de las carboneras y silos de pulpa de las infraestructuras existentes, que se dejan vistos para proyectar sobre ellos. La relación con la fábrica se realiza a través de una calle de paso elevada a una cota de 3,52 m que sitúa el plano de la intervención desde el que se produce el acceso principal a través de un patio excavado de 20 m de lado. La salida se realiza a través de una galería que emerge como un túnel del tiempo desde el interior de los cines hasta la sala principal de la fábrica y por una rampa que conduce a un parque exterior.

0022-SAN-GRX.ES-1999 — Posted in 2013 — Explore more projects on cultural and cultural center — Climate: mediterranean and temperate — Coordinates: 37.192949, -3.642780 — Collaborator: Francisco Javier Castellano, Alfredo Garrido Ferrer, Carmen Noreno Álvarez, Francisco Puga Ortiz, Juana Sánchez Gómez, Florian Bach — Views: 3.641