Centro V.I.D. Trabanca is a proposal by MID estudio for Ayuntamiento de Trabanca designed in 2010. It is located in Trabanca Spain in a countryside setting. Its scale is medium. Key materials are concrete stone and wood. Concepts such as rural and opening are explored.

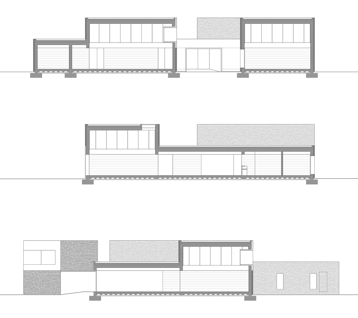
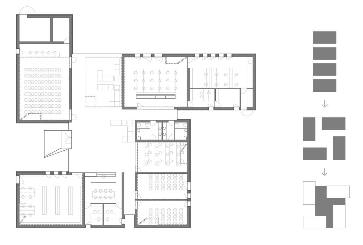
El Centro VID en Trabanca pretende ser un punto de encuentro y referencia para el desarrollo de la zona, siendo el vino hilo conductor a través de la ruta internacional del vino Vinduero-Vindouro. La parcela propuesta condensa el atractivo paisajístico de Trabanca a la perfección: muros de piedra delimitando parcelas (cortinas), propios de la tradición constructiva local, la charca vinculada con la tradición ganadera, una visión abierta al paisaje, afloraciones graníticas (berruecos), encinas y quejigos en el entorno, etc. La imagen unitaria del edificio queda configurada en realidad a partir de 4 volúmenes, a priori iguales, en los que se ha divido el programa (descubrir, mostrar, investigar y formar). Este se desarrolla exclusivamente en planta baja. Estos cuatro volúmenes se agrupan entre si, girando alrededor y a la vez delimitando un quinto espacio o espacio central. Todas las actividades vitales del edificio se dan en este quinto espacio: recepción, encuentro y acogida, exposición, reuniones informales, área de descanso para los trabajadores, etc.

Todos los usos del edificio se abren a dicho espacio y todas la relaciones entre ellos pasan por él. Con el fin de ajustarse al presupuesto fijado por el pliego de condiciones se ha optado por una construcción sencilla, modulada y sistemática. Predomina la economía de materiales y la sinceridad constructiva. Muros cerámicos, hormigón, corcho, madera. Los materiales tratan de responder a varias necesidades al mismo tiempo, siendo a su vez los acabados del edificio. Los muros de termoarcilla pintados son a la vez estructurales, cerramiento, proporcionan el aislamiento térmico necesario y exploran la expresividad formal del propio material. Los forjados alveolares de hormigón salvan grandes luces con una sencilla puesta en obra y sirven como acabado en techos. Los suelos continuos cementosos facilitan el mantenimiento y son óptimos para la calefacción por suelo radiante. El corcho, material vinculado al vino, mejora el aislamiento térmico y acústico. Los cerramientos de piedra vinculan el edificio con su entorno y las tradiciones constructivas locales.

0011-MID-SLM.ES-2010 — Posted in 2013 — Explore more projects on cultural and cultural center — Climate: continental and temperate — Views: 2.729