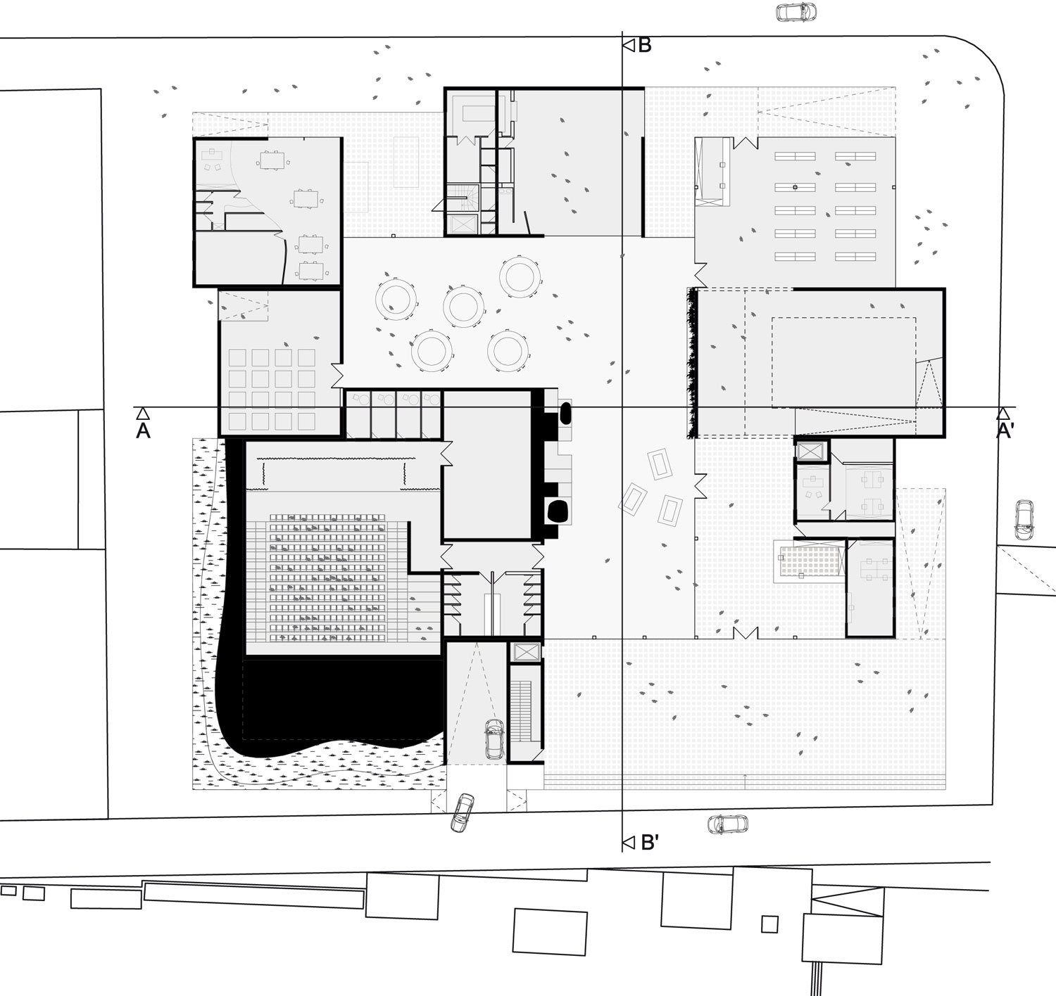
Children Museum of Louisville is a proposal by NBJ architectes and NAS Architecture designed in 2014. It is located in Louisville United States in an urban setting. Its scale is large with a surface of 28.000 sqm. Key materials are concrete glass and metal. Concepts such as box and atrium are explored.

The main idea for the project for the Museum for Children of Louisville is based on the simple analysis that one of the most important thing for a child is his play-box. Thus, the museum proposes spaces with multiple treatments, reflect of the diversity of toys contained in the box. Each space is one moment of discovery and has a ludic spirit. The central atrium is at the heart of the project, it offers an overall vision of the giant play-box. To cause, the child curiosity, was one of the major challenge of this project. A space is entirely dedicated to them. In addition, this museum is the expression of a three-dimensional architecture where each space were created with the same attention in order to have a project of high cultural value.

0937-NBJ-US-2014 — Posted in 2014 — Explore more projects on cultural and museum — Climate: humid subtropical and temperate — Team: NBJ Architectes (Elodie Nourrigat, Jacques Brion, Romain Jamot), NAS Architecture (Hadrien Balaud de Saint Jean, Guillaume Giraud, Johan Laure) — Views: 6.717