Conservatorio de música is an academic project by Inma Subías for ETSA Barcelona designed in 2013. It is located in Barcelona Spain in an urban setting. Its scale is large with a surface of 14.500 sqm. Key material is concrete. Concepts such as modulation and courtyard are explored.

El proyecto se sitúa en La Plaça de les Glòries de Barcelona. Forma parte de un plan de estudio proyectado por Helio Piñón, donde se propone una nueva ordenación urbanística que pretende mejorar la cohesión con la ciudad y la calidad espacial de la zona. Se conserva el viario preexistente en forma de anillo en el centro de la plaza y se proyecta entorno a él un segundo ”anillo” edificado. Éste combina principalmente dos arquetipos arquitectónicos: La torre y la caja. El área edificada se fractura con el paso de la  Avinguda Diagonal generando dos ‘L’ enfrentadas de sistemas de torres. Es en uno de estos puntos de rotura donde se coloca el Conservatorio de Música.

Proyecto

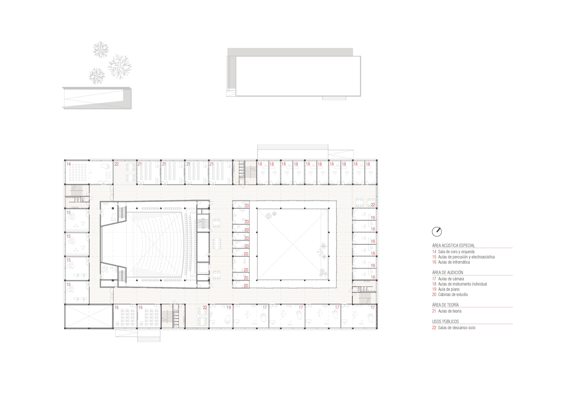
El edificio se define formalmente como una caja rectangular de estructura regular. Sobre ella emerge un gran volumen, el auditorio, y se vacía un patio de dimensiones similares, consiguiendo el equilibrio del conjunto. Consta de Planta Baja, primera y sótano. Esta estrategia formal se basa en un gran ejemplo de Gordon Bunshaft y S.O.M., la Galería de Arte Albright-Knox, en Buffalo, New York. El acceso principal se sitúa en la plaza que mira a Avinguda Diagonal. Sobre ella y ligeramente elevado se ubica un volumen independiente, el Bar, que incluye un acceso a la planta sótano. Dentro del conservatorio hay cuatro núcleos de servicios y accesos, repartidos en forma de esvástica en el perímetro de la planta. Las circulaciones se realizan entorno al auditorio y el patio, en forma de ocho. La planta baja alberga los espacios de mayores dimensiones y de carácter más público. En la planta primera se sitúa todo el aulario y un acceso secundario a los palcos del auditorio. Repartidos equilibradamente dentro de la planta se encuentran también tres áreas de descanso, comunicadas con los pasillos de circulación.

Auditorio

Desde el amplio foyer que mira hacia el patio se accede a esta gran sala. Se cubre con unas grandes vigas de canto que descansan sobre unos pilares en cruz. El volumen que generan, se eleva por encima del nivel de cubierta permitiendo la entrada de luz natural. El falso techo se adapta garantizando el confort acústico. Queda suspendido sin llegar a hacer contacto con los muros que cierran el espacio, permitiendo el paso de la luz. A ambos lados del escenario se encuentran los accesos a los palcos superiores. La cota de acceso al auditorio se mantiene en todo su perímetro, incluyendo el escenario.  A partir de ella se forma el graderío en la zona central. Bajo él se distribuye todo el sistema de climatización así como los puntos de impulsión y retorno de aire. Este sistema permite que el aire climatizado circule en la zona de butacas, que será la parte ocupada, optimizando su rendimiento.

Aulas

Quedan perfectamente definidas por el módulo de estructura. Dependiendo de su uso serán de medio módulo, de un módulo o de módulo y medio. Tienen un sistema constructivo especial, funcionan como cajas flotantes independientes, evitando así la transmisión del ruido.

Fachada

Hay dos tipologías,  la que configura el patio, completamente vidriada protegida por un amplio voladizo; y la envolvente exterior del edificio, que adaptándose al módulo estructural, combina paneles de GRC con aberturas panorámicas, dando lugar a diferentes variantes. Se incorporan paneles absorbentes acústicos en su formación maciza y vidrios de reducción del ruido en las aberturas.

0801-ISU-BCN.ES-2013 — Posted in 2013 — Explore more projects on education and school — Climate: temperate and mediterranean — Coordinates: 41.403369, 2.189760 — Consultant: Helio Piñón — Views: 4.491