Culture House Fyllingsdalen is a second prize proposal by Pir 2 and Local for Bergen Municipality designed in 2021. It is located in Bergen Norway in an urban setting. Its scale is medium with a surface of 6.000 sqm. Key material is wood. Studio Aesthetica collaborated as visualizer.

How can a public building create a sense of urbanity with resilient and attractive streetscape in a peripheral context under transformation?

Culture house has for many decades had a central position in Norway. With their diversity of content and opportunities, the culture houses have a unique opportunity to be the most important meeting place in the local community, regardless of age and social position.

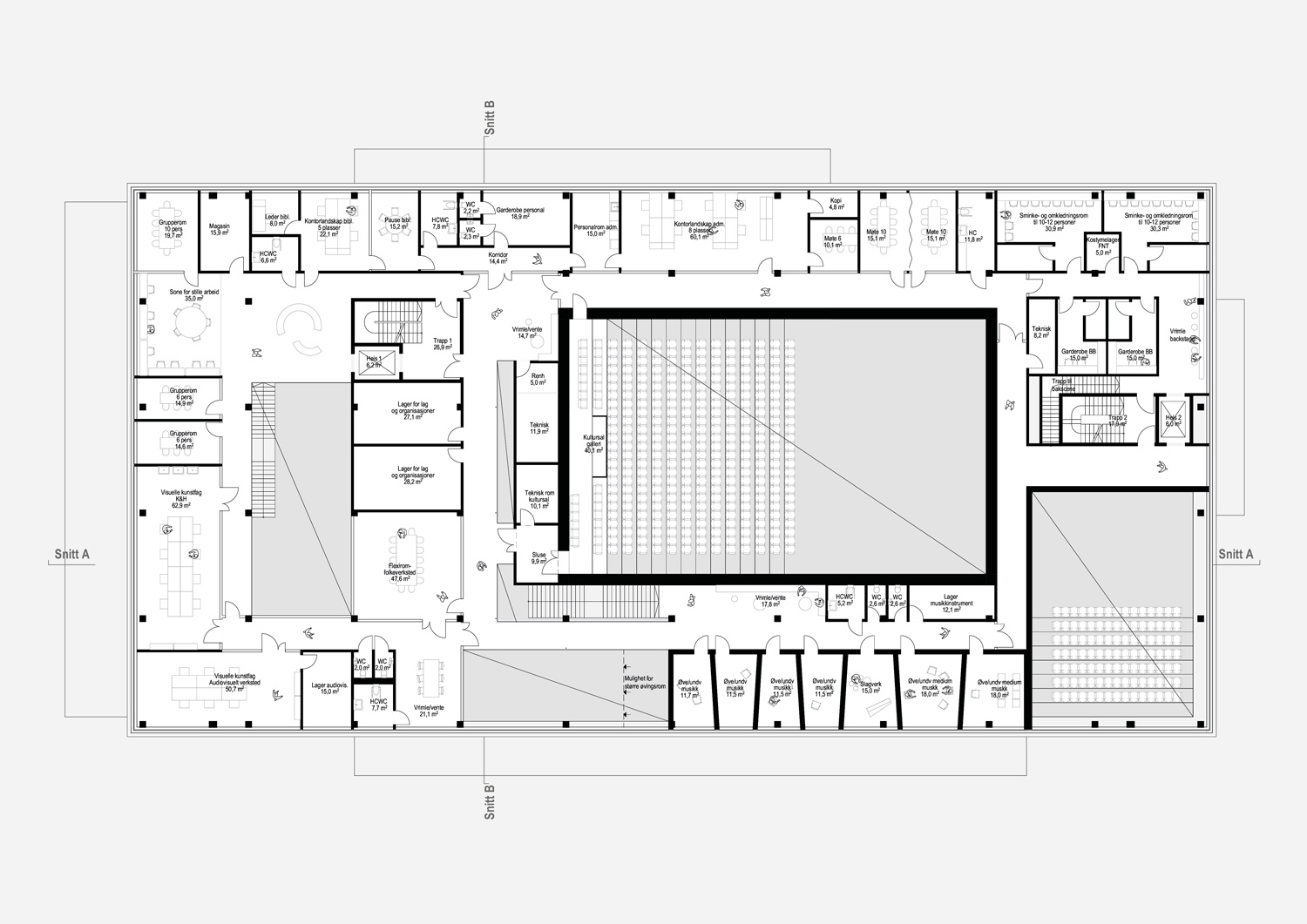
The concept of culture house in Norway has undergone changes and became big machines with complex program how can larger public space build-up a sense of space and belonging?

There is several undergoing large culture house all around bergen today And talk about the future of the local urban and cultural identity. What culture form for Fyllingsdalen in bergen? A culture house is and should be a democratic and an inclusive space.

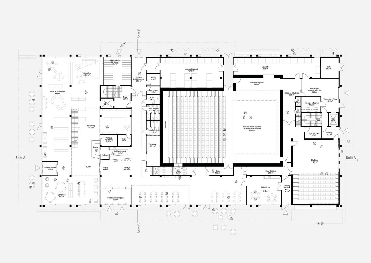
The culture house, the square and the new pedestrian street are a great opportunity to develop the area, the stadium, the light rail and the public transport terminal into a complete and varied center in Fyllingsdalen, where life and activities can be housed and cultivated all year round.

We have looked at local history and been inspired by the visions of how to build in the green valley. We have also taken with us the legacy from the gatehouse. A widespread western Norwegian construction technique, and a very material-efficient method of constructing large and open spaces.

Our proposal mediates the macro and the micro answering to the requirement of a complex program in a series of pitch roof with a ground floor at human scale. The project carries a clear role to change the Oasen district from a pure shopping and business area by adding a democratically open arena that provides many opportunities for people to be active participants in the local community. Publicly accessible spaces around are relatively small and dedicated to production, consumption, and sport. Our new culture house will have to be generous and inclusive to allow in one of the most diverse and socially inequal part of bergen, so that everyone feels at home there.

A well-known shape is the foundation for the design of the new building we give visitor and user a sense of belonging while mediating the different typology of the valley. We resist the call for a grand entrance and focus on a porous ground floor with no front or back mediating terrain and existing typology into a simple volume. We create an active plaza, a lively street, an interactive bus-stop facade and visible technical space.

It is framed by a welcoming canopy breaking down the scale and creating a sense of domesticity all around. We build in wood and learn from the west-coast structure informed by scarcity of material and establish dialogue with the ambitious transformation of the area in the 1970. Columns and beams in CLT are intended, and cover of wood with concrete screed.

The culture house will appear almost floating with its characteristic facades raised from the ground floor to provide insight and invite visitors to enter. With glass panels extending from floor to ceiling on the ground floor, the house’s activities will be displayed. The house will help to make the surrounding public rooms around the entire building exciting and safe places to stay and where there is a door leading in.

The outer layer has a terracotta player, a natural and sustainable building material, with extremely little maintenance that ensures its aesthetic appeal in the long run. Cladding is reddish ceramic tubes with square sections. The competition basis sets BREEAM-NOR certification level Excellent as an environmental requirement. As always, we were looking to combine exciting architecture with high environmental ambitions, and this time it was integrated surface water management solutions, solar cells and solid wood construction that became our answer.

2845-LOE-NO-2021 — Posted in 2021 — Explore more projects on cultural and cultural center — Climate: oceanic / maritime and temperate — Coordinates: 60.349972, 5.289100 — Consultant: Ramboll, Brekke & Strand — Views: 3.904