Daegu Gosan Public Library is a proposal by Forma for Daegu Metropolitan City designed in 2012. It is located in Daegu South Korea in a park and urban setting. Its scale is medium with a surface of 3.100 sqm. Key materials are metal concrete and glass. Concepts such as cantilever lattice and structural praise are explored. Review the 7 proposals for the same competition.

Not long ago the library was thought of as a huge archive, a storage of human knowledge. This idea was particularly expressed in design of the building. Static, monolithic and ponderous, often impressive in size, the building looked like a mausoleum or a fortress keeping safe the human culture accumulated throughout the centuries. Now the idea of the library is different. All human knowledge is just information that after being digitalized can fit into the pocket. Therefore there is no sense in producing more containers for products of culture. What the library building should express is accessibility of information and etherealization of knowledge. Also the concept of information (being shared) is wider than the concept of knowledge (being rather stored than shared), which means the space and activities in the library should become significantly more diverse.

To make library just the source of information is not enough today. This is the realm of the World Wide Web. Unlike the internet, the library in digital era should become local in its nature. Not only it shares information, but also it can provide intelligent pastime for local community and set space for live communication between people. These are the ideas we expressed in design of Daegu Gosan Public Library.

Design

There are two separate volumes, one on top of another. While the lower volume is a public zone available for all residents, the upper rectangular volume presents a concentration of library’s regular functions and userspaces. In the core of the building structure are the atrium stairs. They are not only the transit zone, but also a place for communication: every flight of stairs can be used as a place for lecture, discussion or informal meeting.

The lower volume is transparent, the upper one is solid, as if hovering over the ground. The reading room on top floor is a place of intelligent relaxation and rise over the everyday. The illusion of levitation is amplified by the moire effect created by the upper volume’s facade. Thus, the library as a whole makes an impression of the lightweight and compact structure. The lower volume is made circular to avoid segmentation of the area. There is no main facade as such – the library looks «welcome» from all sides. The gear-like form of the lower volume lets the building be dissolved in the park around the library. It also gives extra space for greenery and outdoor rest area.

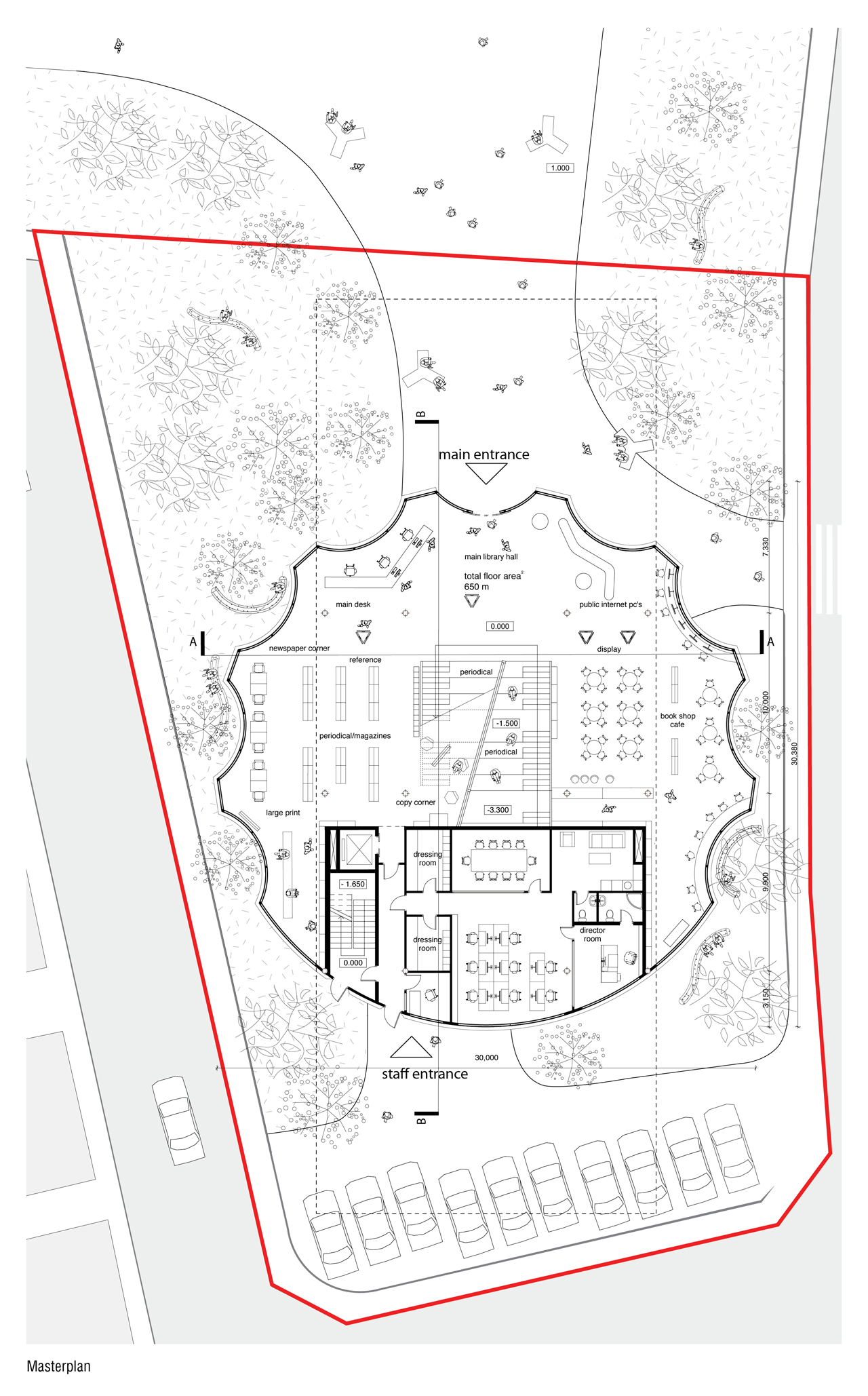
The ground floor is mostly an open public zone. It is a place to become a part of the residents’ daily life. In a bookshop cafe one can a have a cup of coffee and read a newspaper, an open shelf with periodicals is available near the main desk. The library could as well become a place for business meetings or friendly chat.

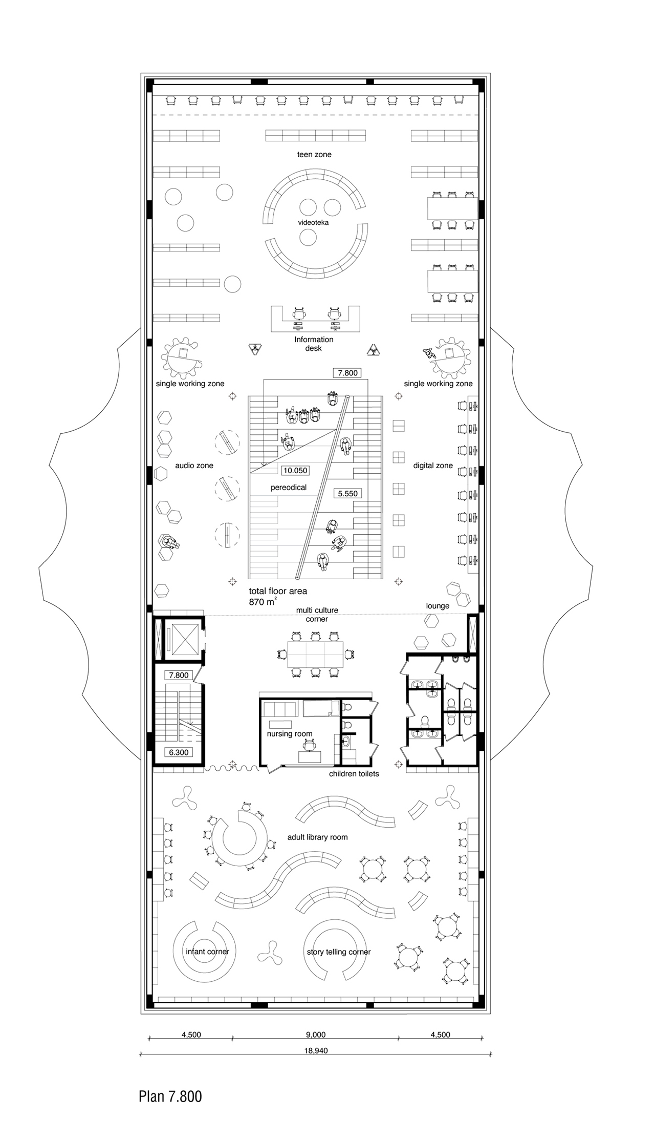
Among the basement floor spaces is a preservation room and the multipurpose room. The latter includes six scenarios of space organization. These are recreation, two-, three- or combined lecture space, performance and exhibition space. The stairs, if necessary, can be transformed into an amphitheater with a hall area expanding the lecture/exhibition room. A sliding wall could be used as a projection screen. Due to space adaptability it is possible to hold several events simultaneously. A lifelong study space, just as the exhibition/lecture room, is at minimal distance from the entrance. It is located in the entresol between the ground floor and the first floor occupying almost a half of cylindrical volume of the library.

It is appropriate to think of the first floor as a buffer between the public zone of the ground floor and a members-only reading room of the third floor. This is a space for a short-time, i.e. not demanding peace, concentration and deep learning, use of the library. There is a children corner located farthest from the stairs, and an adult library room for parents. On the opposite side of the area is a teen zone. A video library, an audio zone and the laptop corner as spaces of regular use and high circulation of users are located closer to the stairs. The general collection room thematically divided into separate sections (Human Sciences, Natural Science, Linguistics and Literature, Art, Poetry etc.) is on top floor. Along with a spacious reading hall it is the quietest part of the library.

Energy Saving / Green Technologies

Along the highway lies a greenbelt that is connected with the library’s immediate surrounding area. Most of the occupied space of the library has daylighting, an insulated glazing with glare reduction is used. The building is equipped with lighting occupancy sensors, geothermal heating and cooling. Recycled steel is extensively used as construction material.

0670-FOR-TAE.KR-2012 — Posted in 2012 — Explore more projects on education and library — Climate: continental and temperate — Coordinates: 35.837913, 128.710542 — Team: Oleksiy Petrov, Iryna Miroshnykova, Dmytro Prutkin, Dmytro Isaiev, Victoria Leonchenko, Oleg Kazarnovskiy, Anna Dobrova — Views: 5.557