Edificio de postgrado UPC is a winning proposal by Josep Ferrando and Pedro Garcia designed in 2011. It is located in Barcelona Spain in a campus setting. Its scale is medium with a surface of 3.250 sqm. Key materials are ceramic and concrete. Play-Time collaborated as visualizer. Concepts such as lattice grid structural praise and prefabricated are explored.

La propuesta planteada parte de la premisa de hacer un edificio donde estructura, construcción y estética sea elementos inseparables, donde el rigor de unidad a la nueva edificación, donde el volumen realizado de un solo gesto sea capaz de establecer diálogo con las heterogeneidad de los vecinos.

Lectura a diferentes escalas

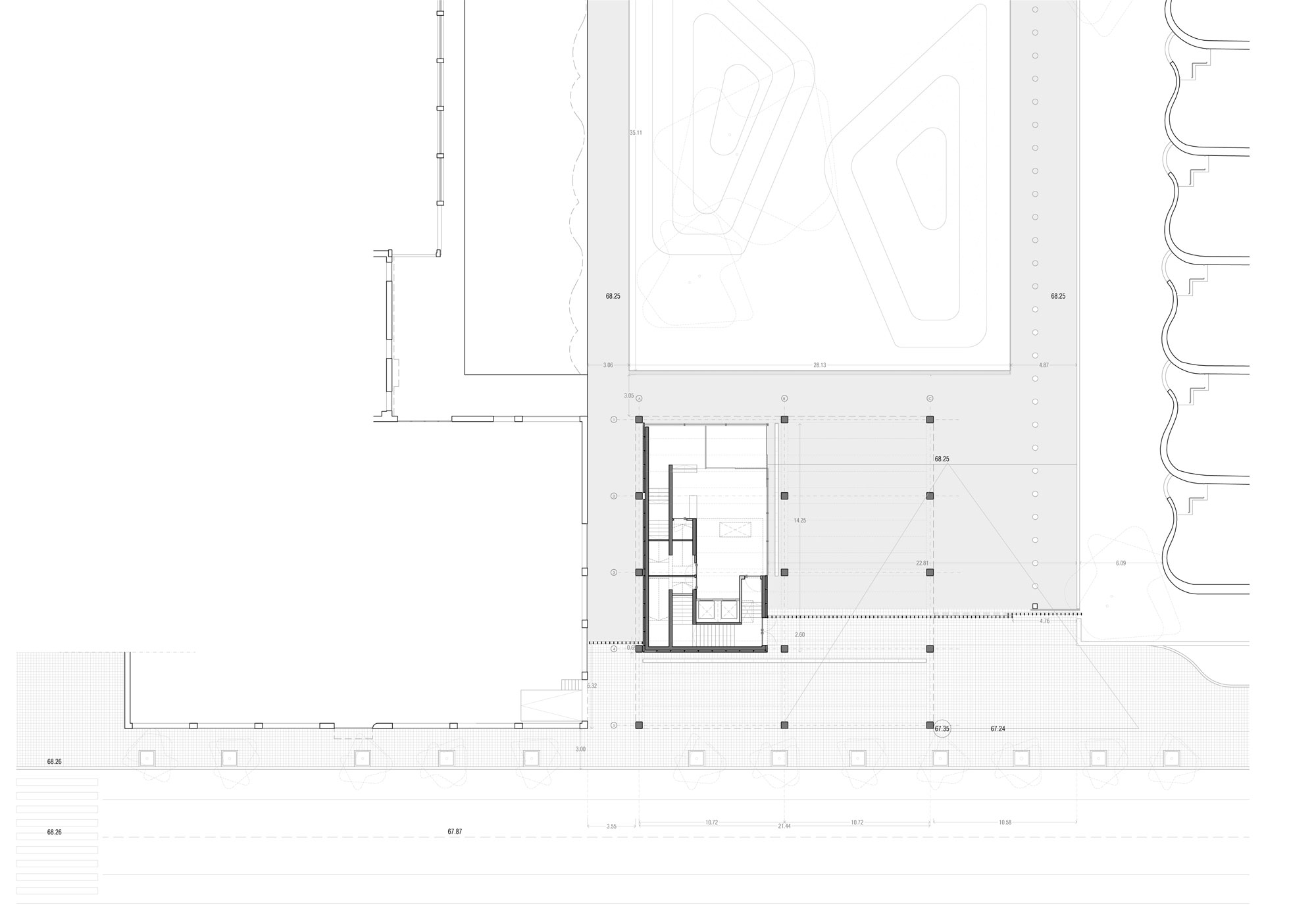
La volumetría propuesta responde a las diferentes escalas del emplazamiento : por un lado la escala urbana mediante un orden estructural claro y limpio; por otro lado una escala más humana a través de las medidas domésticas de la modulación del cerramiento y de su materialidad.

Relación con el entorno

El edificio es un volumen unitario, que actua con respeto y que se relaciona con el contecto de forma sutil y elegante; manteniendo las alturas de las plantas y las alineaciones de ‘l’escola d’Edificació’, para garantizar la facilidad de conexión en cada planta y un orden respecto la calle. El orden estructural del nuevo edificio establece un diálogo con ‘l’Escola de Belles Arts’, mientras la materialidad de las lamas verticales se relaciona con la cerámica que modela la ampliación de J.A. Coderch.

Flexibilidad

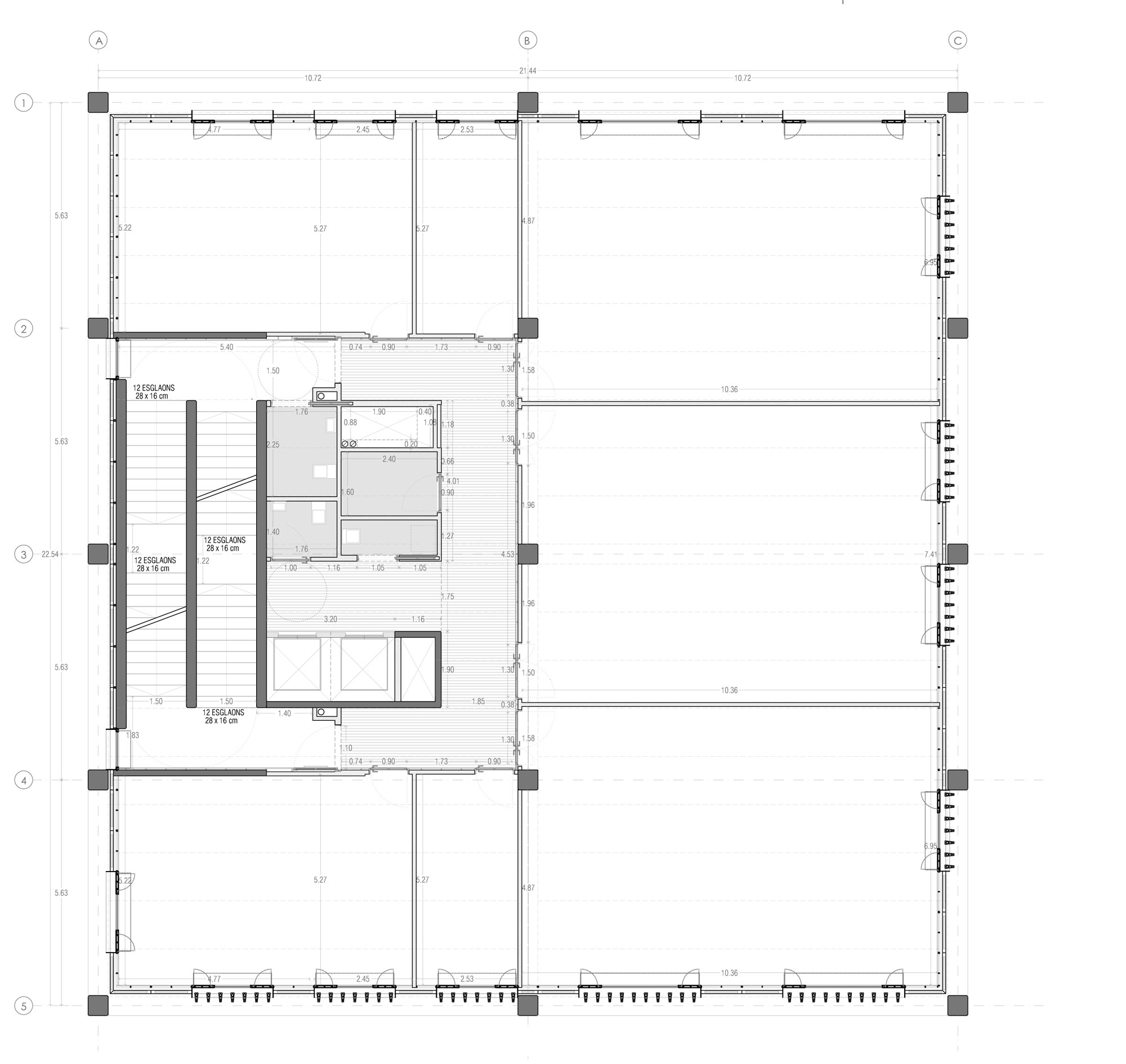
El núcleo ‘servidor’ (comunicaciones verticales, paso de instalaciones y lavabos) se sitúa en el centro de la planta, configurando una organización centrífuga para aprovechar al máximo las fachadas y garantizar iluminación y ventilación natural en la totalidad de las piezas. El núcleo se sitúa ligeramente desplazado para establecer distancias relativas con el cerramiento que favorecerá la colocación de despachos y permitirá una gran libertad del resto de la planta para situar las aulas en diferentes disposiciones. La normativa de incendios, en el apartado que hace referencia a la ocupación del usuario, obliga a dos escaleras de evacuación. La propuesta prevé que estén superpuestas ‘a la americana’, obteniendo la maxima eficiencia de la superficie en planta. La colocación de cortafuegos automáticos al rededor, permite una disposición optima y facilita dos posibles conexiones con la ‘Escola d’Edificació’. En el centro de la planta se sitúan las zonas húmedas y pasos de instalaciones verticales para garantizar el mínimo recorrido posible, economizando su trazado.

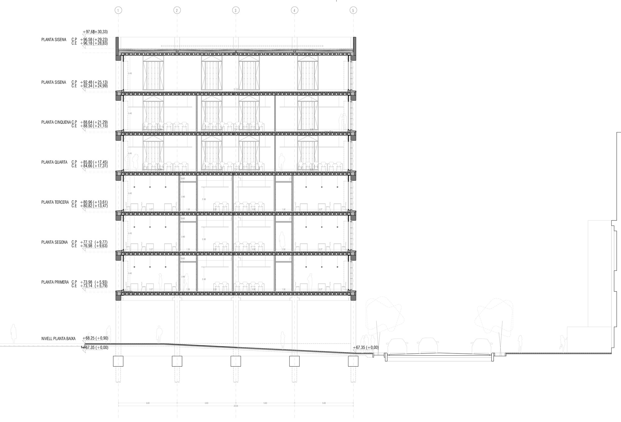
Estructura prefabricada

La estructura se plantea de hormigón prefabricado, con pilares y jácenas de 40×40 cm, luces de 10,91 x 5,65, y forjados de placas alveolares de 11,21 m de longitud y 25cm de canto. La estructura se deja vista, siendo el elemento de soporte tanto gravitacional, como constructivo y estético. Define la reticula de soporte del cerramiento, que en un segundo plano, da respuesta a las orientaciones, vistas, etc. Esta solución, permite una económica y rápida construcción, con soluciones estandarizadas de detalles que faciliten su ejecución.

Edificio eficiente

Las partes superiores de las ventanas tienen un registro que permite la ventilación cruzada o bien la colocación de fan-coils que ayuden de forma económica a resolver el confort interior que se requiere. La inexistencia de puentes térmicos, la separación del cerramiento de la estructura, así como la disposición de protección con lamas verticales, son ayudas que economizan el mantenimiento y el consumo energético. Las instalaciones de clima se harán con sistemas de agua, intentando que el propio edificio aproveche las calderas e instalaciones posiblemente sobredimensionadas de los edificios vecinos; evitando no solo un gasto importante de instalaciones, sino también reducir el volumen de las mismas y de su mantenimiento.

Futuras ampliaciones

La propuesta permite la adición de una planta más en el futuro. La prefabricación estructural facilita esta ampliación sin que el edificio pierda su utilidad, y la situación del núcleo de comunicaciones verticales, permite su continuidad. La conexión con el edificio vecino quedaría resulta de la misma manera que el resto de plantas.

0067-JFB.PGA-BCN.ES-2011 — Posted in 2014 — Explore more projects on education and university — Climate: temperate and mediterranean — Coordinates: 41.383255, 2.113515 — Collaborator: Marc Nadal, Societat Orgànica, NB-35 — Views: 3.779