Edificio de servicios is a proposal by La Errería and NK arquitectura for Ayuntamiento de Yebes designed in 2012. It is located in Yebes Spain in a urbanization setting. Its scale is medium. Key materials are concrete and metal. La Renderia collaborated as visualizer. Concepts such as sloped roof and broken volume are explored. Review the 3 proposals for the same competition.

Desde una arquitectura fiel a una modernidad de mínimos, sensible a una inteligente sostenibilidad de lo vernáculo y de lo industrial, pensamos que el lugar donde debe ubicarse el futuro edificio de Servicios de Yebes, por sus condiciones específicas, reclama una intervención optimista capaz de cualificar el conjunto vacío de espacios y edificios que lo rodean, dotando al lugar con una pragmática, y equilibrada, condición representativa que se integre en el área, potenciando, a su vez, el territorio de Valdeluz, tanto en si mismo como formando parte del paisaje de la ciudad de Yebes.

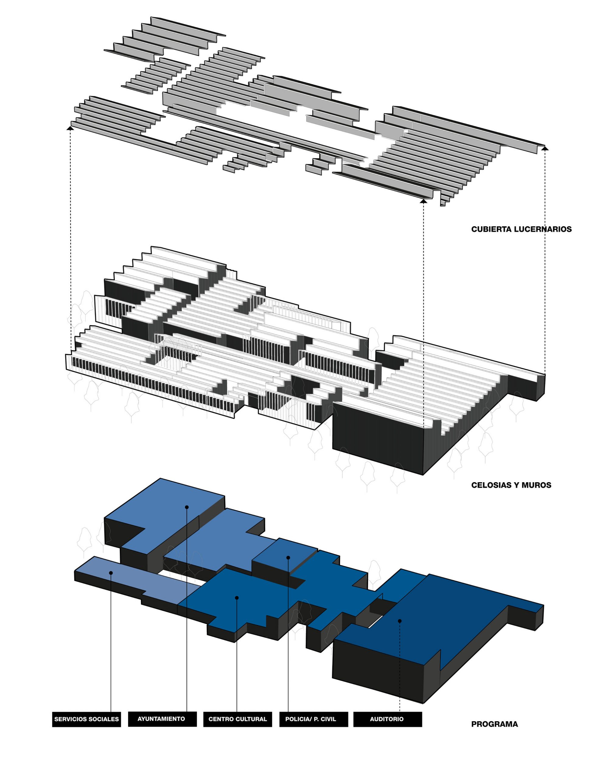
De este modo, se propone una construcción de un sólo nivel estructurada a partir de un sistema formado por células de planta rectangular, que, con un perímetro quebrado y una volumetría fragmentaria, trata de dinamizar un amplio territorio libre de edificaciones, de forma que, sin tener que recurrir a un icónico volumen unitario, constituya un elemento de referencia, foco de activación del área, estableciendo una adecuada relación con los elementos construidos del entorno. El conjunto propuesto, formado por un conglomerado de construcciones de pequeña escala que se abren a las diferentes orientaciones, a través de un arraigado sistema de patios.

El movimiento de los volúmenes, las cubiertas en sierra, y su geometría celular, tratan de resolver la relación visual con el entorno, como concepto ampliado, a partir de la intencionada ambigüedad formal de su desjerarquizada volumetría, y el negro color materiales, para revelarse en el entorno. La totalidad de las construcciones propuestas para el Nuevo edificio de Servicios de Yebes se estructuran a partir de un sistema compositivo lineal, abierto y flexible, que permite establecer las reglas de juego del conjunto, así como las reglas de juego de las posibles fases de construcción y sus posibles ampliaciones.

Sistema abierto y flexible

Nuevo edificio de Servicios de Yebes propuesto se basa en una construcción elemental de células de planta rectangular, de carácter multifuncional, articuladas entre sí de acuerdo a un conjunto de leyes complejas, estructuras de repetición aparentemente azarosas, que constituye un sistema abierto y flexible. Las sucesivas construcciones celulares, capaces de albergar indistintamente programas expositivos, informativos, administrativos, o de investigación, se organizan en torno a un gran espacio abierto y de acogida que permite la entrada, de forma diferenciada, a las diversas instituciones que integran el conjunto: Las Dependencias Municipales, Las dependencias Policiales y el aula de Cultura. Cada una de las células rectangulares de este sistema se construye como una caja de planta rectangular y cubiertas en diente de sierra que orientan a norte sus vidrios favoreciendo una entrada de luz idónea para el trabajo y a sur dispositivos de aprovechamiento de energía solar.

0131-ERR-ES-2012 — Posted in 2013 — Explore more projects on civic center and institutional — Climate: continental and temperate — Coordinates: 40.591247, -3.107388 — Views: 3.320