Edificio Transformadors is a second prize proposal by ZFA Arquitectura and NUA arquitectures for BIMSA designed in 2014. It is located in Barcelona Spain in a high density setting. Its scale is medium. Key materials are metal and wood. Concepts such as gallery flexibility and narrow are explored. Review the 2 proposals for the same competition.

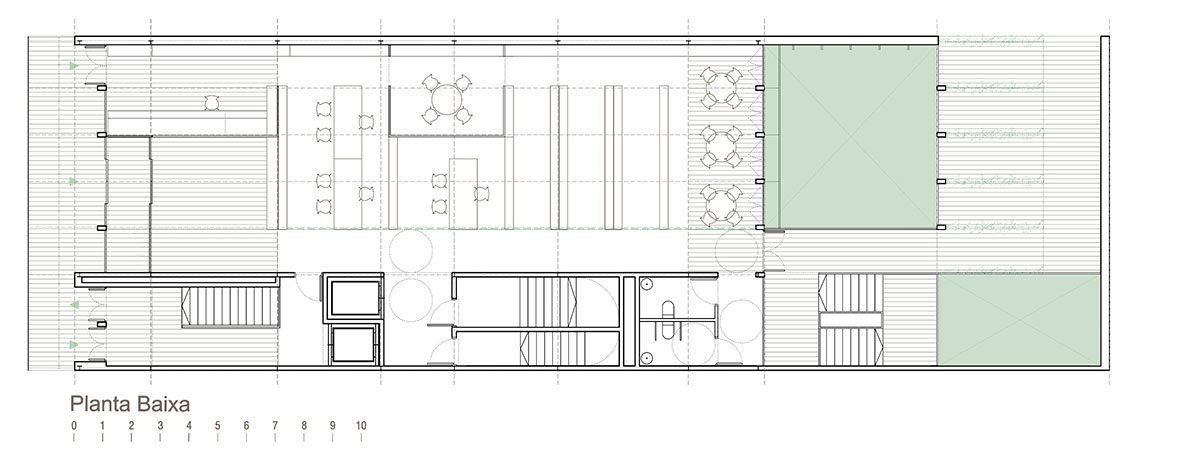
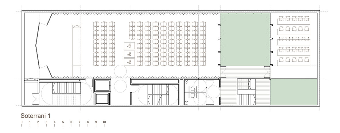
La riqueza de la arquitectura del ensanche no sólo se descubre a través de los mecanismos de las plantas, también leyendo sus secciones. Es aquí donde esta propuesta explora las posibilidades de los espacios que denominamos “In Between”. Sabedores de la importancia para el ensanche del tradicional patio de edificio que quiere acercar la luz a las crujías más centrales y que se comporta como una segunda fachada que la arquitectura incorpora para domesticar esta generosa edificabilidad alargada, se propone una organización que incorpore un sistema perimetral de vacíos para llenar aire y luz el edificio. Es aquí donde la propuesta recoge la rica tradición arquitectónica de los patios y de las fachadas al ensanche, y que se traduce con la investigación e interpretación de los espacios intermedios. Aquellos que para situarse entre “piel y cuerpo” disfrutan y procesan los caracteres de interior/privado y de exterior/público, convirtiéndose funcionalmente en el espacio intermedio, pero no necesariamente en medio del edificio. Flexibilidad y simplicidad son las variables que con mayor incidencia determinarán la eficacia de los distintos espacios. Proyectamos en base a un organismo constructivo y funcional fundamentado en las mínimas leyes organizativas. Todos los espacios; despachos, salas de reunión y áreas de encuentro tendrán luz natural y ventilación exterior directa y buscarán además su prolongación en alguna de las espacios “in between» de sección y ubicación variable, pequeñas islas de relación y descanso que permiten controlar climáticamente el edificio de manera natural.

1008-NUA.ZFA-BCN.ES-2014 — Posted in 2014 — Explore more projects on cultural and mixed use — Climate: temperate and mediterranean — Coordinates: 41.393338, 2.178734 — Views: 3.210