Erweiterung BG/BRG Adolf-Pichler-Platz is a proposal by Daniel Fügenschuh designed in 2012. It is located in Innsbruck Austria in an old town setting. Its scale is medium. The concept of extension is explored.

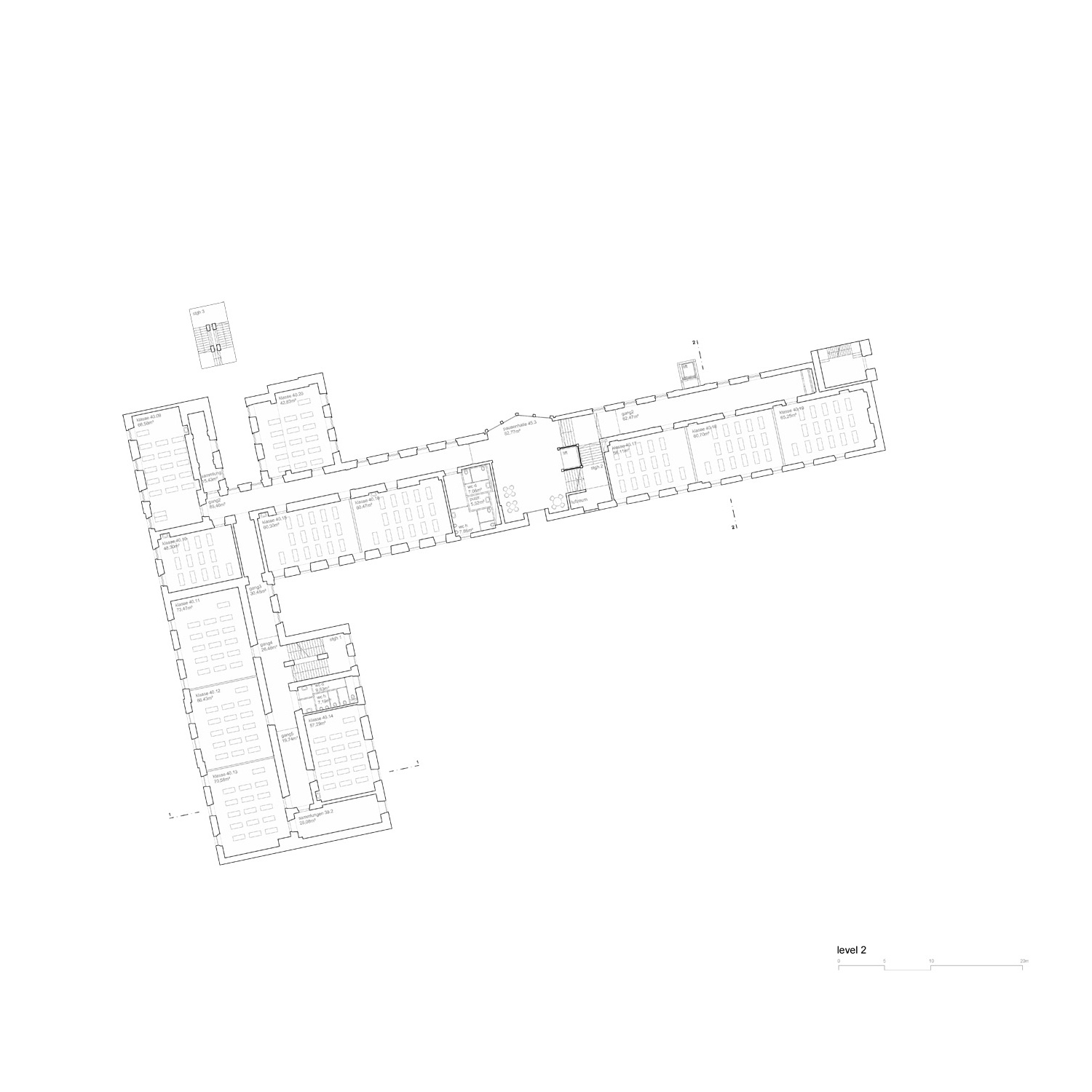
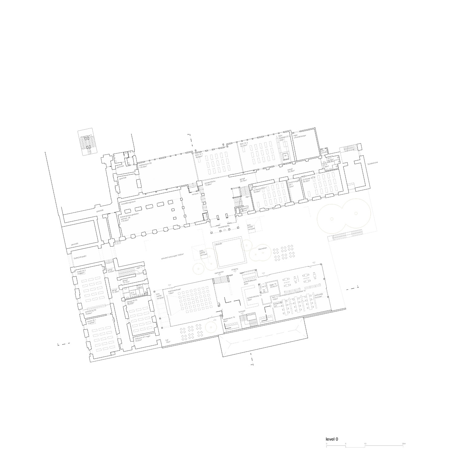
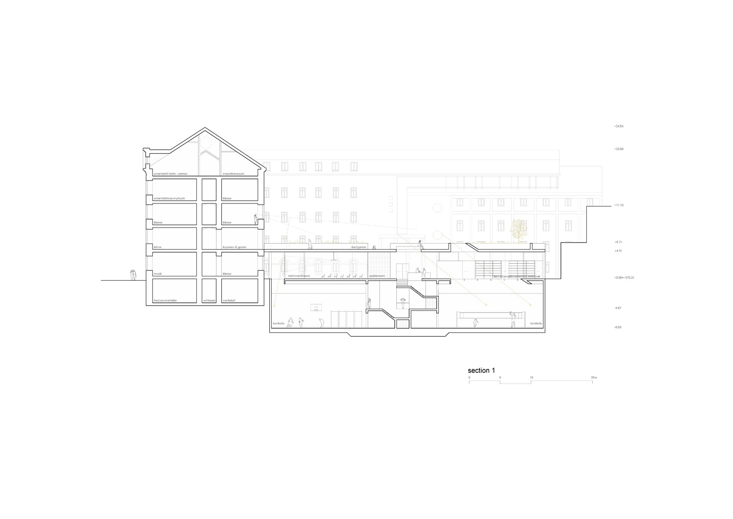
Der neue Pavillon im Hof des BRG Adolf Pichler Platz bietet der Schule einen eigenes Haus für Mehrzweck- und Freizeitnutzungen. Die vier Klassen im Stöckelgebäude wurden ins Haupthaus verlegt, wo diese mit Flächen getauscht werden, die besser mit der Nachmittagsbetreuung kompatibel sind, wie das Lern-und Informationszentrum.

Außenflächen

Räumlich wurde der Hof dadurch wieder für alle zugänglich gemacht. Die Dachfläche wird zusätzlich als Hoferweiterung nutzbar. Die Anbindung erfolgt zentral über die Außentreppe die vis-à-vis vom Haupteingang liegt sowie über eine kleine Brücke vom Konferenzzentrum. Die Zone ist mit einem Nutzgarten auf Hochbeten ausgestattet und kann sich angeeignet werden. Ein Wasserbecken für ein Biotop ist vorgesehen.

Natürliche Belichtung

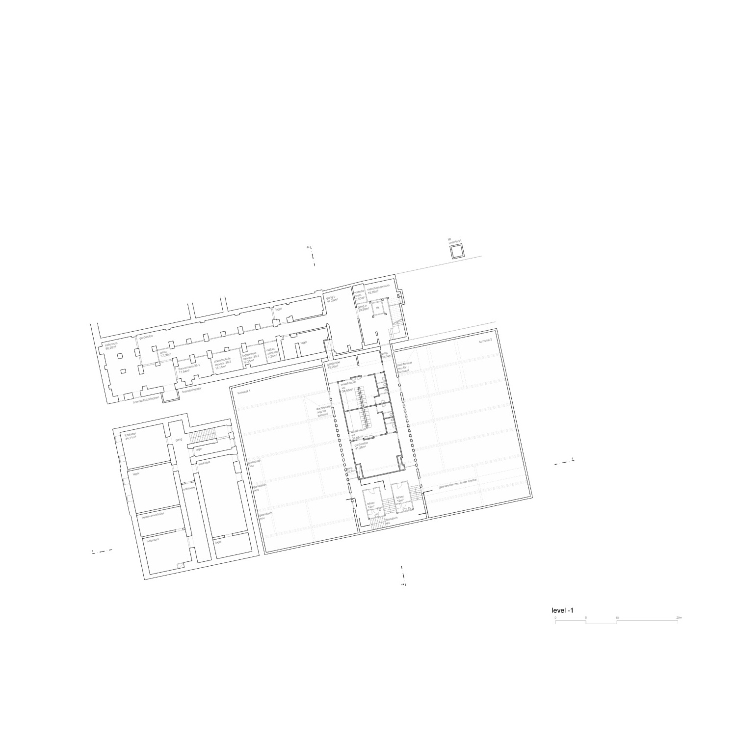
Die unterirdischen Turnhallen sind derzeit unzureichend belichtet. Um diese Räume aufzuwerten, wurde der Neubau mit Licht und Sonnenfängern ausgestattet und räumlich mit den darunterliegenden Hallen in Verbindung stehen. Damit wird das Freizeitangebot der Schule nicht zuletzt in der Wahrnehmung der Schüler gestärkt und kann räumlich wahrgenommen werden.

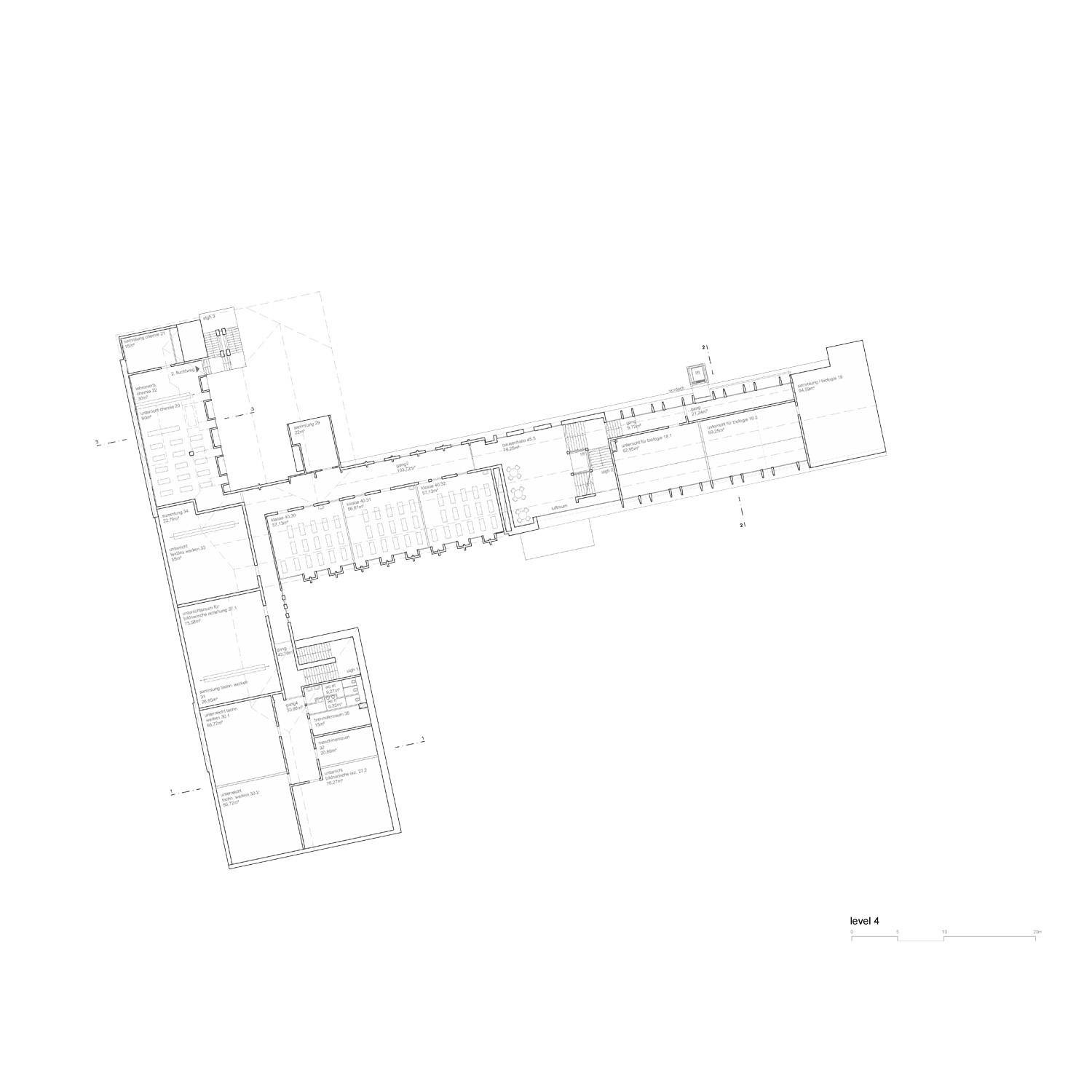
Nutzungsverschiebung im Schulhaus

– Chemiesaal und Biologiesaal: Die Flächen wurden im Dachgeschoss an der Steinerstraße untergebracht (ehemals Wohnung). Dazu wird ein Dachbodenausbau erforderlich, der eine dezente aber als neuen Eingriff ablesbare Visitenkarte für den Adolf-Pichler-Platz bieten soll. Ein hofseitiger Dachfensteraufbau stellt den Labortisch in den Hauptfokus des neuen Unterrichtsraums. Der Biologiesaal wird in den bestehenden Chemiesaal einziehen und erfährt eine Erweiterung für die erforderliche Sammlung im angrenzenden Dachraum bei der Spitalskirche.

– Schulgalerie: Links neben dem Haupteingangszone (Vorraum und Gewölbegang) einsteht ein Ausstellungsbereich, der mit dem dort neu eingerichteten Saal für bildnerisches Gestalten und Werkserziehung in Verbindung steht.

– Konferenzräume: Die Lehrerbereiche werden zukünftig auch die neu dazugekommene Wohnung beinhalten. Im Bereich des Neubaus wird ein großzügiger Freibereich angeboten, der sich bei entsprechender Witterung für diverse Nutzungen anbietet.

– PC- Räume: Die Räume wurden in den vorhandenen Erdgeschoßbereichen zusammengefasst, wo eine blendfreie Bildschirmarbeit gewährleistet werden kann. Die Foyer Zone wurde dazu etwas verkleinert, die Nutzung wird durch den neuen Pavillon großzügig erweitert.

0294-FÜG-INN.AT-2012 — Posted in 2013 — Explore more projects on education and school — Climate: continental and temperate — Coordinates: 47.266356, 11.392890 — Views: 2.172