Kindergarten Heerbrugg is a proposal by Jorge Ruiz Boluda Jorge López Tania Navarro and Paul Dieterlen for Primarschule Au-Heerbrugg designed in 2014. It is located in Heerbrugg Switzerland in an outskirt setting. Its scale is medium. Key material is concrete. Concepts such as extension green roof and linear block are explored. Review the 2 proposals for the same competition.

Ein flexibles und gut ausgerichtetes Gebäude zu schaffen, sowie der Anspruch, eine Einheit mit dem bestehenden Schulhaus zu bilden, bestimmen den Entwurf des Kindergartens. Sowohl die Orientierung der Kindergarteneinheiten als auch der Bezug mit der Primarschule spielten eine grosse Rolle bei der Positionierung des Gebäudes und bei der Ausformulierung des Baukörpers.

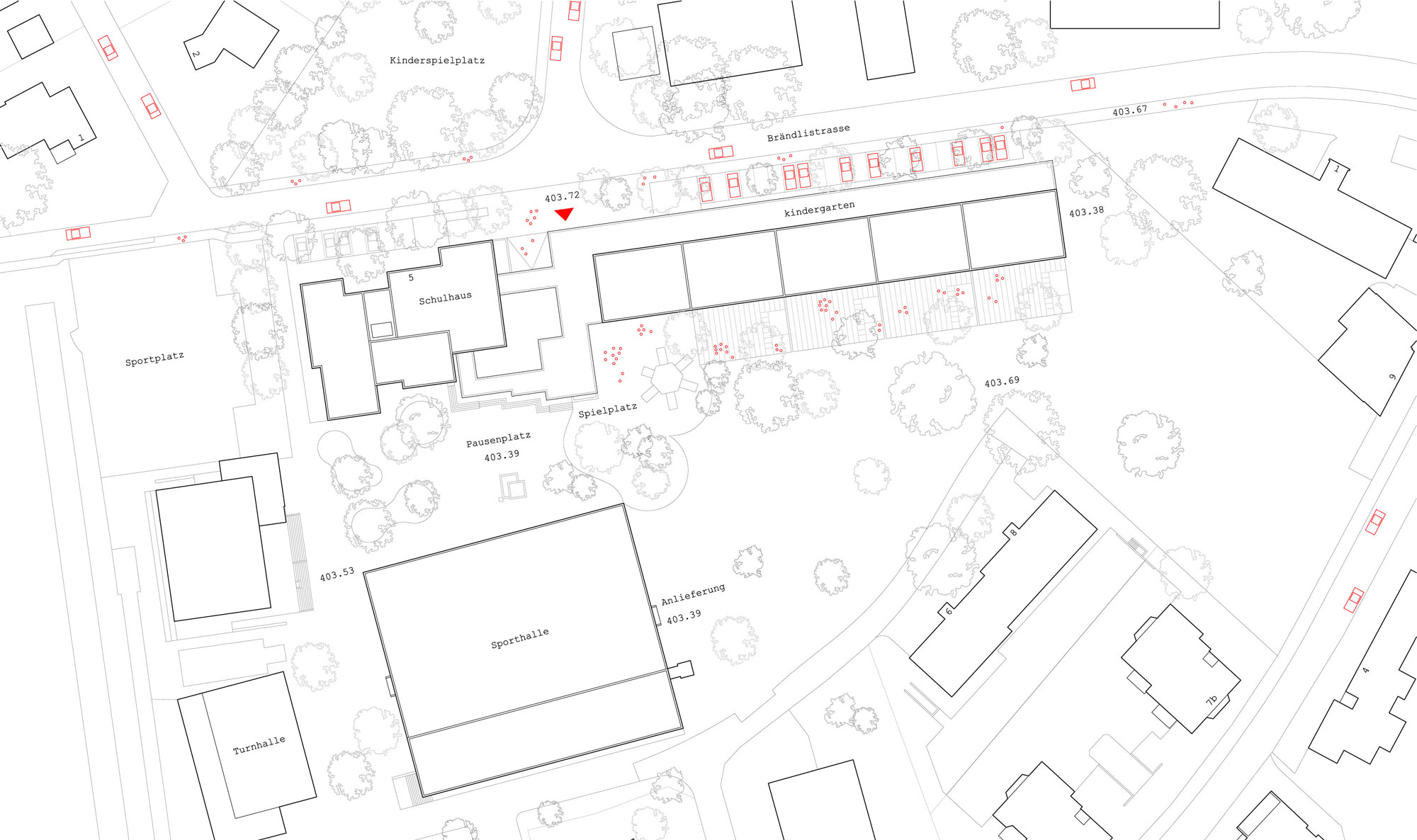
Bauliche massnahmen

Für die Realisierung des Vorhabens sind die nachfolgenden baulichen Massnahmen erforderlich: Der bestehende Kindergarten und der Materialschopf werden abgebrochen und durch eine neue Kindergarteneinheit und einen neuen Materialraum ersetzt. Die Wohnung des Hauswartes und die Garage werden ersatzlos abgebrochen. Die Überdachung der Primarschule wird grösstenteils erhalten. Lediglich am Eingang wird sie abgebrochen, um die neue Überdachung stellen zu können. Der Blattackerweg wird ersatzlos rückgebaut.

Positionierung und städtebauliches konzept

Über der Hochwasserschutzhöhe besetzt das Gebäude die Grundstückskante zur Brändlistrasse hin sowie die nordöstliche Ecke des Wettbewerbsperimeters. Das neue Gebäude reagiert auf die aktuelle städtebauliche Situation: Mit der Positionierung der neuen Kindergarteneinheiten entlang der Strasse bildet das neue Gebäude in Zusammenspiel mit dem bestehenden Schulhaus die neue Strassenfassade des Schulareals.

Umgebungsgestaltung

Mit der Erstellung des Gebäudes an der Nordkante der Parzelle bleibt die Südseite frei erhalten, um zu ermöglichen, dass die Kinder den Ausblick ins Grüne haben. Die Aussenanlagen sind als eine Verlängerung des Klassen- und Gruppenraums geplant, um die Beziehung zwischen aussen und innen zu betonen.

Raumorganisation und Orientierung

Das Gebäude schliesst sich an der Strassenseite, weil sie zugleich die Nordfassade ist. Mit dieser Logik werden die Nebenräume hier angeordnet. Die Klassen- und Gruppenräume von den Kindergarteneinheiten sowie das Musik- und Mehrzweckzimmer orientieren sich dagegen nach Süden. Sie öffnen sich zum Garten, um eine enge Beziehung zwischen den Kindergarteneinheiten und ihren entsprechenden Aussenanlagen zu schaffen.

Flexibilität

Die neuen Kindergarteneinheiten sind so angeordnet, dass sie in verschiedenen Phasen gebaut werden können. Falls der Kindergarten Weed nicht an den Standort Blattacker verlegt wird, ist eine Reduktion um eine Kindergarteneinheit möglich. Da die Eingänge der Primarschule und des Kindergartens am selben Ort sind und den selben Vorplatz haben, kann die erste der vier Kindergarteneinheiten je nach Bedarf als vierter Kindergarten oder als Zusatzschulzimmer für die Primarschule verwendet werden. Das Musik- und Mehrzweckzimmer liegt zwischen dem Kindergarten und der Primarschule, um beiden dienen zu können.

0975-JRB-CH-2014 — Posted in 2014 — Explore more projects on education and school — Climate: humid subtropical and temperate — Coordinates: 47.414969, 9.627512 — Views: 5.081