Escuela Carén is a proposal by Albert Tidy designed in 2016. It is located in Melipeuco Chile in a rural setting. Its scale is small with a surface of 329 sqm. Key material is wood. Concepts such as linear block sloped roof and lightweight structure are explored.

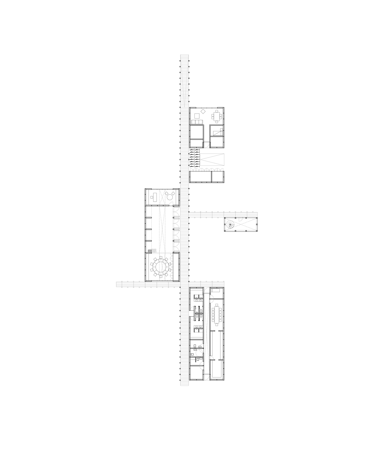
Como parte del plan de mejoramiento en la calidad de la educación escolar en las zonas rurales de La Araucanía, el Ministerio de Educación convocó a un concurso público para diseñar una serie de colegios tanto primarios como secundarios en la zona donde reside la población con la mayor tasa de analfabetismo del país y cuyos habitantes en su mayoría pertenecen al pueblo mapuche. Las zonas escogidas son los poblados de Lifko y Carén. El proyecto reinterpreta patrones de la arquitectura y los modos de vida propios de la zona, como son los conjuntos de volúmenes aislados y compactos que conforman sistemas de uso y apropiación del territorio. Las características formales de éstos responden a factores climáticos de la zona, como la intensa lluvia y la abundante nieve. Así, la escuela se organiza en base a tres áreas del programa: la casa del director, el área docente y el área de servicios. Los tres volúmenes resultantes se relacionan mediante pasillos exteriores de circulación que los interconectan adoptando formaciones paralelas en un caso y perpendiculares en el otro.

El sistema constructivo define un módulo de sección única que da solución a los distintos requerimientos de uso, resultando en extrusiones volumétricas de distinto largo que pueden ordenarse, repetirse y configurarse de diversas maneras según el requerimiento del programa y la inserción en el contexto específico. La sección simétrica en base a dos planos inclinados ubica en su cumbrera una lucarna corrida para asegurar ganancia energética por radiación durante el invierno y maximizar el uso de la luz natural. El particular diseño de la lucarna permite además una adecuada ventilación en verano. Una torre de autoabastecimiento es el corazón sustentable del proyecto, la que acumula el agua de la lluvia para su uso sanitario y aprovecha la radiación solar para calentarla y generar energía.

2196-IDY-CL-2016 — Posted in 2018 — Explore more projects on education and school — Climate: oceanic / maritime and temperate — Team: Albert Tidy — Collaborator: Cristóbal Riffo, Ken Qiu, Camilo Villagrán — Views: 9.808