Extension of Hotel Hof Weissbad is a proposal by idA designed in 2013. It is located in Weissbad Switzerland in a countryside setting. Its scale is medium. Key materials are wood and concrete. Concepts such as grid extension tower and central core are explored.

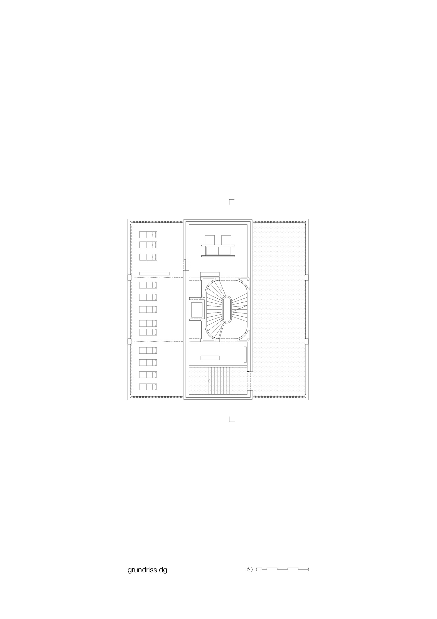
The landscape in which the existing hotel is embedded is hilly and burred with forest area and brooks. On the bottom of the valley a narrow clearance stretches from East to West. This open green space forms the spatial range of the Hotel. The new wellness building is intended to stand on the bottom of this valley. The minimal footprint allows continuing the open green area to both sides of the volume. Through placement of the volume views to the four cardinal points arise.  To profit from them to the maximum the functions are organized vertically. To Northwest from the tower the pathway system extends to the landscape of “Glandenstein”. The covered path leads over the remaining landscape as a runway. The static and spatial structure of the volume supports the topic of the characteristic views to the four cardinal points. In the centre of the building is the core with its vertical allotment. Rooms are adjoined to two sides of this core. The three chambers form the inner bearer on which the ceilings rest. The space-containing beam alternates in each of the stories from East to West or North to South and therefore is opening free areas, which are facing the different cardinal points. The inner chambers of the space-containing beam create a withdrawn and secure atmosphere. The curtain-type facade of the new wellness tower is from larch wood. On the first layer it refers to the structural logic of the building. The stapling and rotation of the space-containing beam with each floor become the main topic of the facade.

1063-IDA-CH-2013 — Posted in 2015 — Explore more projects on hotel and residential — Climate: humid subtropical and temperate — Coordinates: 47.309245, 9.431398 — Views: 3.424