High School Renens is a fourth prize proposal by 2+2 architecture designed in 2012. It is located in Renens Switzerland in an urban setting. Its scale is large with a surface of 15.000 sqm. Play-Time collaborated as visualizer. Concepts such as u shape broken volume void and plaza are explored.

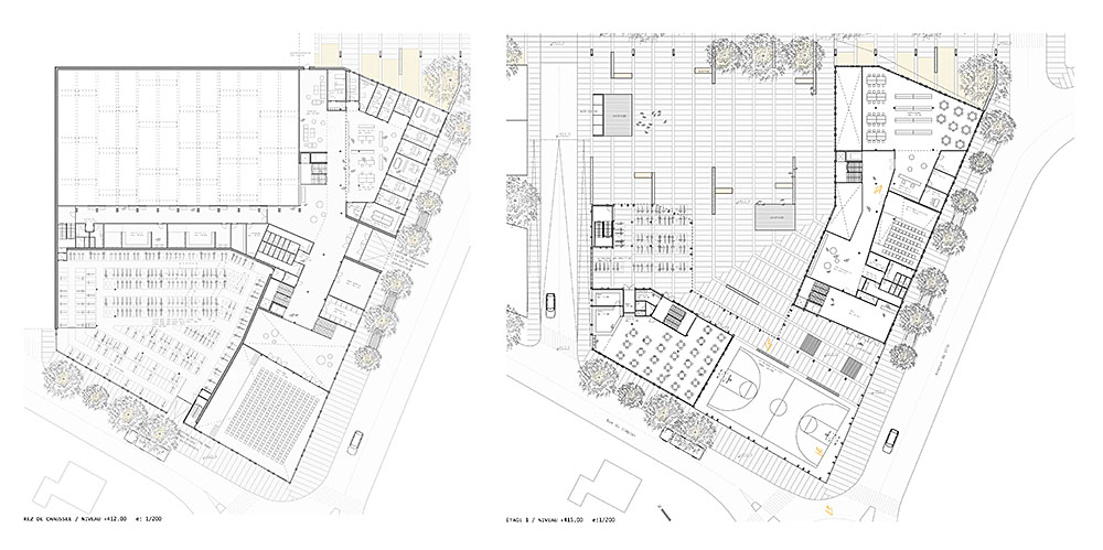
Dans ce concours d’architecture, le gymnase marque la première étape de construction du nouveau quartier des Entrepôts à Renens. Le programme du concours définit 3 éléments qui par leur tailles, besoins spatiales et position dans la parcelle vont conditionner la solution architectonique choisie. En premier lieu le gymnase, avec ces espaces nécessaires pour l’enseignement. En deuxième lieu une salle de sport triple (46x26m) intérieur et couverte, avec connexion directe avec les différents services du gymnase et avec un accès indépendant. Finalement, l’aire sportive tous temps placée dans l’espace libre de la parcelle. La combinaison de ces trois éléments définit un volume bâti et un vide libre pour le nouvel espace publique du quartier. Ces choix, avec les solutions structurelles, constructives et d’installations adoptées, sont clés pour faire du nouvel CEOL un bâtiment de référence pour le quartier et ses utilisateurs.

Concept urbain

Ce projet CEOL se présente comme la pièce finale du nouveau quartier. Il est la « tête » visible du nouveau aménagement de la zone avec l’intention de respecter la continuité volumétrique (PLQ – front bâti) mais avec l’introduction d’une rupture très claire sur l’angle sud de la parcelle (giratoire), en correspondance avec la salle sportive tout temps. Cet angle du bâtiment, telle la proue d’un bateau, devient la partie la plus significative du projet, et prend, sur le plan formel, un rôle principal : Le vide proposé rend l’angle plus subtil et son esthétique avec un espace de couleur jaune contraste avec le reste de la façade, il est aussi fonctionnel puisque il abrite la salle sportive extérieure couverte à utilisation polyvalente. Cette césure volumétrique créée par ce nouvel espace (entrée principale du bâtiment) ouvre une diagonale à travers la parcelle du nord au sud. Ce choix permet de relier une série d’espaces publiques : la rue piétonne du quartier, la place publique sur la salle sportive triple au sous-sol, le portique d’entrée au gymnase et la salle sportive couverte. Ceci opère une gradation des espaces public-privé:

La rue piétonne comme axe principal du quartier devient un espace social à l’échelle de la ville. L’importance structurante de cet espace est renforcée par le dessin de la zone publique de ce projet du CEOL. La place du quartier est un espace public urbain à l’échelle du quartier. Il s’agit ici d’un espace minéral pour accueillir les événements des voisins du quartier. Cette place du gymnase se montre ouverte mais une certaine intimité est offerte par le bâtiment, qui fonctionne comme un portique avec l’entrée couverte. L’espace public situé dans le bâtiment est par contre dédié exclusivement aux élèves. Cette place sportive est l’espace le plus représentatif du bâtiment, avec la salle couverte et l’espace d’entrée. Cet espace de grande dimension, orienté au  sud, placé parmi les zones publics de la cafétéria et du hall-bibliothèque offre un espace polyvalent destiné aux utilisations complémentaires : expositions, fêtes, concerts, cinéma, etc.

C’est également un plus pour les activités extérieures, Renens ayant une moyenne de 125 jours pluie/an. La forme et la position du bâtiment invoque la volonté de faire partie activement de la vie publique du quartier. Le volume bâti est groupé sur le côté Est de la parcelle (Rez + 4) et évite trop de hauteur du côté Ouest (Rez + 3) afin d’augmenter l’ensoleillement de la place. Le but de ce projet est aussi de créer une invitation pour les utilisateurs à prendre le temps, attendre, se reposer, passer en vitesse… La forme du bâtiment évoque des bras ouverts qui poussent notre curiosité à entrer et à le découvrir. Arbres et végétation sont placés tout le long de la façade Sud, Rue de Simplon & Avenue du Silo pour détacher le bâtiment du terrain et protéger du trafic visuellement / acoustiquement les espaces de la cafétéria et de la bibliothèque du rez. Cette ligne végétale est interrompue par la présence du grand espace de la salle sportive tout temps et de l’aula semi-enterrée, pour mieux souligner cet angle urbain singulier.

Du côté Nord, l’espace public est placé sur la salle sportive triple du sous-sol. Le concept de cet espace urbain est en relation avec le système structurel de la salle sportive : Le projet prévoit des poutres triangulées métalliques de 26m de portée. Des éléments préfabriqués en béton seront utilisés pour le pavement de la place, les bancs et plateformes de repos seront  en béton et en bois. Les containeurs de recyclage «eco-point » sont situés en face de la rue ouverte au trafic, cachés par une scène-plateforme en bois. La façade du bâtiment est la coulisse de cet espace urbain, qui est défini latéralement par les 6 boîtes de lumière et la ventilation mécanique des trois pistes sportives au sous-sol. Les puits de lumière naturelle de la place ont comme fonction d’éclairer la salle sportive et de se transformer en lanterne urbaine le soir. Cet éclairage nocturne est complété par la lumière projetée depuis le bâtiment.

0988-2P2-CH-2012 — Posted in 2014 — Explore more projects on education and school — Climate: continental and temperate — Coordinates: 46.533565, 6.583557 — Team: Miguel Cuellas, Ricard Galiana, Yago Oliva, Roman Zitnansky — Collaborator: Rivolta Architecture Sàrl & Partners, Anna Prats, Boma — Views: 3.960