Hotel project Barcelona is a finalist proposal by dataAE designed in 2017. It is located in Barcelona Spain in an urban setting. Its scale is large with a surface of 21.594 sqm. Key materials are concrete and wood. Play-Time collaborated as visualizer. Concepts such as tower atrium balcony and sustainability are explored.

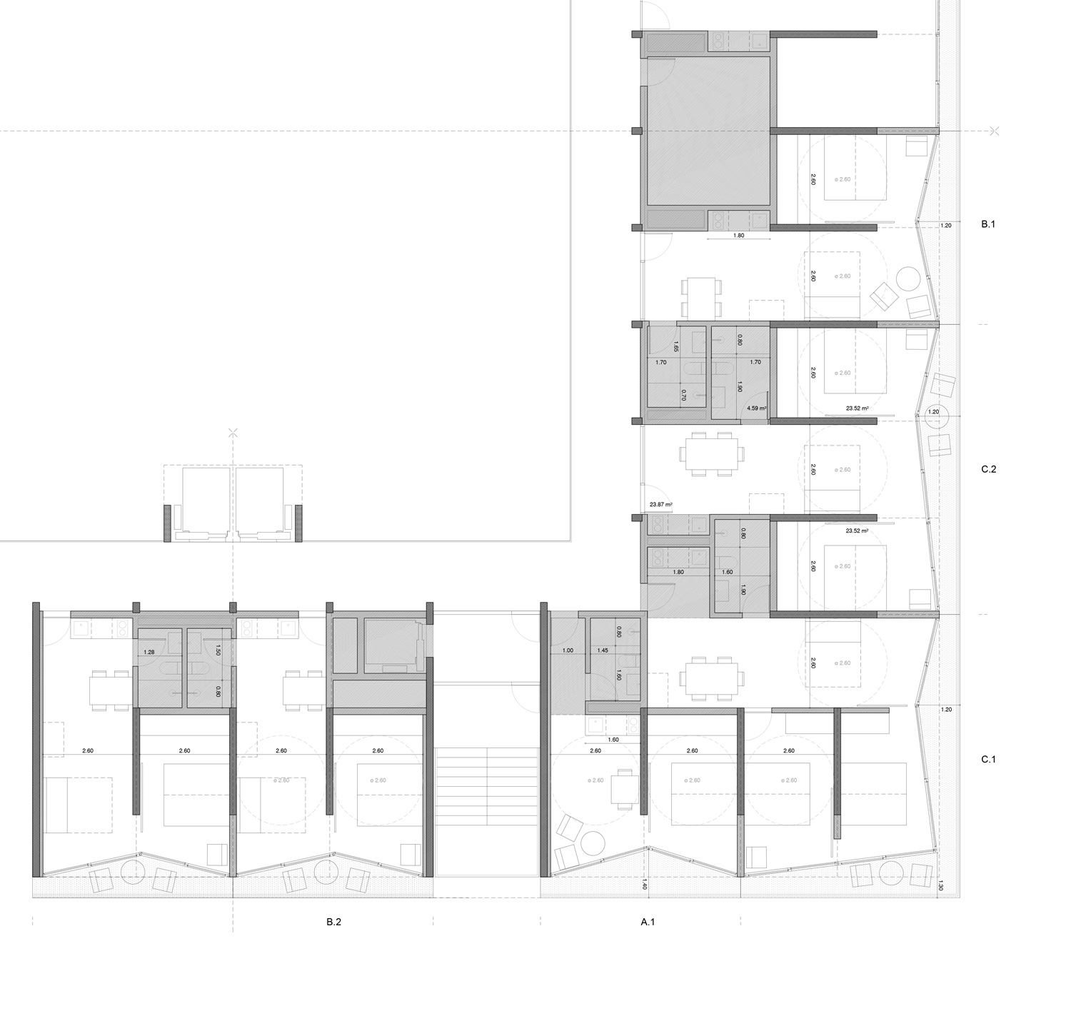
The Project proposes a building that embodies the new paradigms of the 21st Century, surpassing the ecological inefficiencies of 20th Century vertical buildings. The proposed structure enables an easy, fortunate and exciting appropriation of common spaces throughout the building, surrounded by a natural and inspiring environment. Vegetation is strategically placed around a ventilated central patio that captures fresh air and solar radiation, leveraging as well the best views of the surrounding landscape. At the same time, the proposed apartments achieve a pleasant habitability, profiting two orientations and achieving crossed ventilation and daylight. In addition, each apartment has a private balcony located in the outer façade, large enough to accommodate a table and some chairs. The apartments present an adaptable outer facade that aims to reduce the energetic consumption adapting to season requirements, filtering sunlight in summer and capturing solar radiation in winter.

2093-DAE-BCN.ES-2017 — Posted in 2017 — Explore more projects on hotel and residential — Climate: temperate and mediterranean — Coordinates: 41.415128, 2.220300 — Team: Claudi Aguiló, Albert Domingo, Silvia Canals, Siddartha Rodrigo, Javier Gavín — Views: 15.809