House of Hungarian Music is a proposal by BAST for Musuem of Fine Arts Budapest designed in 2014. It is located in Budapest Hungary in a park setting. Its scale is medium. Key materials are metal and wood. Concepts such as grid canopy flexibility and lightweight structure are explored. Review the 5 proposals for the same competition.

The competition is looking for a project to consolidate an urban park in downtown Budapest, with a very clear focus on its international status. Two things explain this international quality. First, there is a clear interest to gather a very big group of architects to think about the best possible solution for these new buildings. That explains the invitation sent to practices all over the world to participate in the definition -from distance- of 5 museums in 4 parallel competitions. And second, there is a strong aspiration of turning Budapest into a cultural hub in the European context. By acknowledging these facts, the building has to provide a distinctive identity to this international vocation.

Interventions

The brief does not allow an explicit relationship between projects by different offices. Instead of trying to make a series of buildings linked by formal similarities, we aim at offering specific and differentiated appropriations of the natural void of the Park, understood as a very important piece of public space in Budapest.

Units

The new park will be articulated by the relation between its natural landscape and a series of buildings with different programs and typologies. These structures can be thought as an extension of a metropolitan-scale organic fabric of movements and city sights patterns. The intervention for the House of Hungarian Music has to be integrated into this system.

The city park

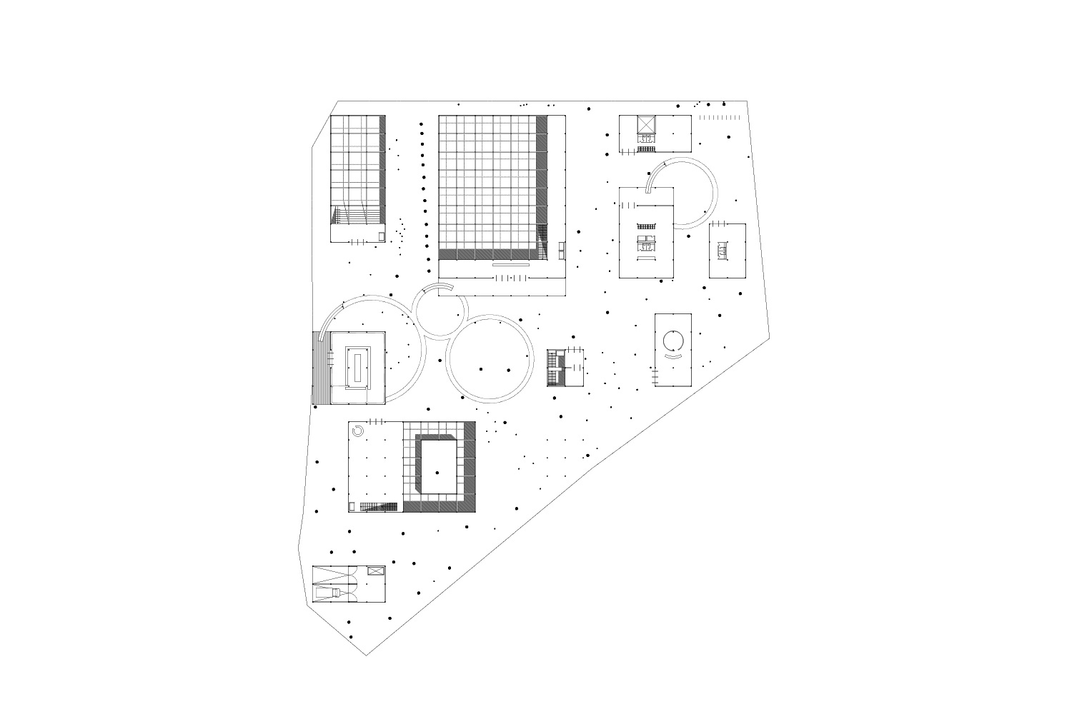
Varosliget consists of pavilions scattered in the park in between the trees. In a similar way, the House of Hungarian Music should be as series of pavilions scattered throughout the plot. The park retains its identity as a unifying element and the continuity of public space in the city. 

In between trees

The relationship between the building plot and the landscape plot is the same as the ratio between the surface occupied by trees and the area of the space between the trees. Limited to building on the building plot requires the cutting of nearly all the trees on this plot. By contrast, it is possible to occupy all of the available space with a minimum of tree cuts on the site.

Hidden

Permanent exhibition, temporary exhibition, and the auditorium are the main volumes of the program. These volumes can occupy the 3 large free sites of the plot. On these sites, 3 excavations absorb the differences in height and acoustically isolate the sound installations, allowing these to benefit from the thermal inertia of the soil. This limits the visual impact of the pavilions, avoiding a monumental effect.

Plan

A three-dimensional structural grid in 5x5x5m posts/metal beams enables the covering of the main volumes. This structure becomes an oversized technical grid. With this grid, the exhibition space and the auditorium benefits from an indirect, natural light. This structural grid also helps to spread the other program spaces in between the trees: cafeteria, bookstore, press room, offices, delivery. The program is distributed throughout the plot in 8 distinct pavilions. Each pavilion is autonomous, containing all the necessary services. They can be independently opened or closed depending on opening hours or scheduled events. On the basis of neutral spaces, directly generated by the structure, each pavilion can accommodate a maximum of events. Separations between the parts are made by curtains that modulate the space for different uses. In the theater, movable platforms allow the seating steps to be modulated, configurating the room according to several uses.

Openings

The house of the Hungarian music is not a monumental building. It is a juxtaposition of pavilions inserted between the trees of the city park. The roofs of these pavilions become the support of emergent uses at the intersection of the program and of public space. The ramps that access the roof depict the passage of undergrowth to new roof clearings as a metaphor for the evolution of the academic program towards the development of contemporary cultural practices of traditional music.

0543-BAS-BUD.HU-2014 — Posted in 2014 — Explore more projects on cultural museum and music school — Climate: continental and temperate — Coordinates: 47.513409, 19.083676 — Views: 3.259