IES Vía de la Plata is a proposal by Triple Office and Enmedio Studio designed in 2019. It is located in Guijuelo Spain in an urban setting. Its scale is medium with a surface of 7.747 sqm an estimated budget of 9.287.158 € and a ratio of 1.199 €/sqm. Key materials are concrete and glass.

Como reacción frente a los espacios educativos de largos e interminables pasillos, la propuesta propone aumentar su escala, convirtiéndolos así en amplios espacios útiles, que permiten una organización espacial y grupal flexible, acomodándose a diferentes cargas de trabajo de los diferentes tiempos de estudio.

Son lugares luminosos, corazón del proyecto, que genera diferentes espacios para el estudio individual, trabajo en grupo, charlas o asambleas improvisadas, terrazas de lectura en relación con la naturaleza, y espacios que pueden ser usados por todos los estudiantes de los diferentes ciclos educativos como Zona Design y Exhange colaborativo e intercambiador de ideas y conocimientos.

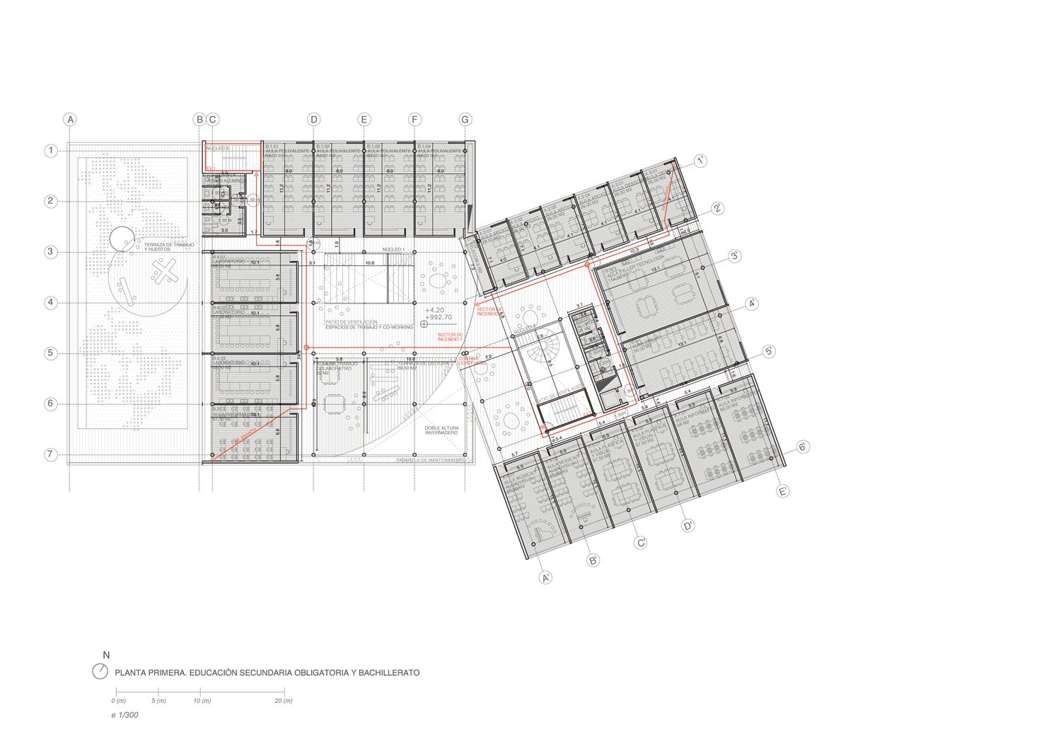
Las aulas polivalentes pueden nutrirse de estos espacios corazón.

El aula ya no es un espacio hermético y unidireccional. Se plantea la posibilidad de poder abrir el aula, duplicarla, tripicarla o cuadruplicarla en función del número de estudiantes que se pretenda conectar.

Y se prestan en relación a este espacio corazón, difuminando los límites del aula tradicional e inundando la planta de actividad.

En estos espacios corazón se insertan dos dispositivos, que permiten un lugar de descanso, relación y métodos educativos abiertos.

El primero de ellos es el graderío, que conecta los niveles educativos y los hace continuos. Esta grada está equipada con tomas wifi y enchufes, para que pueda ser usada como lugar de estudio individual o como lugar de impartición de clases o Pecha-Kucha. En esta Zona Stage y Thinking los estudiantes o profesores puedan proyectar contenido en la pantalla y pueda crearse un clima de debates, conferencias, exposición de trabajos con información a tiempo real.

El segundo dispositivo aparece como Aulas de proyectos colaborativos repartidas en primera y segunda planta.

Estas aulas, luminosas, vidriadas y en relación con las terrazas exteriores, están equipadas tecnológicamente con PC, escáner, impresora 3D, impresora de corte láser y herramientas para un aprendizaje basado en la práxis e investigación tecnológica. Esta Zona Develop/Investigate, además de poder abrirse a la terraza de actividades, puede abrirse al espacio corazón que conforman las piezas de la propuesta, pudiendo crear un clima extensivo de investigación y prototipado a gran escala.

Esta forma de funcionamiento del espacio corazón también se encuentra presente, a menor escala y funcionamiento “local”, en cada una de las aulas polivalentes.

Las aulas internamente se encuentran diferenciadas por zonas, que permiten un amueblamiento versátil para dar lugar a pequeños grupos de debate y clases teóricas con pizarras electrónicas para la presentación de proyecto grupales antes de lanzarlo a mayor escala en la zona corazón (Zona Thinking-presents).

Cada aula posee un armario versátil, que alberga elementos tecnológicos de prototipado e investigación (Zona Design). Y en el extremo opuesto, una zona exterior acotada y protegida a través de un vuelo y un elemento de protección y oscurecimiento del aula.

En esta zona, cada alumno o grupo de alumno puede tener su propia planta y huerto experimental, para la incorporar una educación y consciencia medioambiental.

Las aulas polivalentes cuentan con enchufes repartidos en el suelo, para permitir colonizar el centro del aula con todo tipo de organización, y evitar que siempre las mesas tengan que estar cercanas a paredes.

Cuentan además con iluminación artificial homogénea, con puntos de luz que evitan leer el aula como un espacio unidireccional.

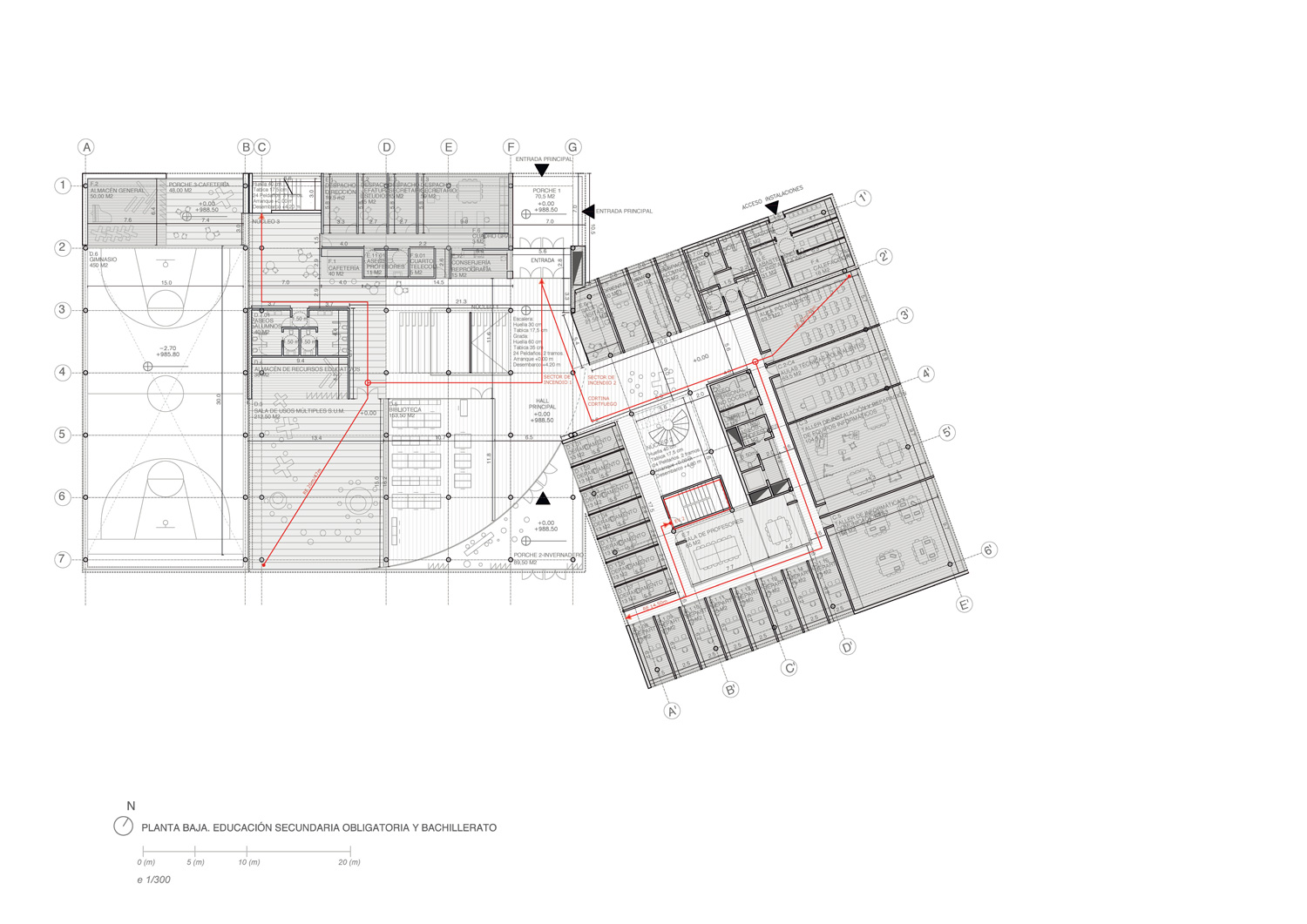
La propuesta establece un adecuado equilibrio de los principios de flexibilidad, eficiencia energética, sostenibilidad, confort acústico y térmico, así como habitabilidad, nuevas tecnologías, seguridad y mantenimiento.

Tanto los espacios de aulas como los espacios “corazón”, propician una flexibilidad de usos acrecentada por la disposición de la estructura, cuya retícula de 6x6m permite la total redistribución interna si fuera necesario, y permite crear grandes espacios diáfanos que pueden dar lugar a situaciones organizativas infinitas; desde su uso como zona de estudio individual hasta su uso como espacio colaborativo de grupos.

Todos estos espacios, tanto aulas polivalentes como espacio corazón, se encuentran dentro del mismo volumen compacto, por lo que la apertura interna de espacios no merma el correcto funcionamiento climático del edificio, al tratarse todo de un único espacio.

Esto, unido a los espacios invernaderos adjuntos a las zonas de trabajo y los patios interiores atemperados, hacen que todos los espacios estén aclimatados pasivamente, sin necesidad de ningún apoyo energético de gran envergadura, pudiendo ventilarse en verano a través de las rachas de vientos dominantes, o cerrarse y hermetizarse, usando el calor generado por la terraza invernadero y cubierta acristalada.

Estos espacios, poseen divisiones acústicas entre ellas, y entre ellas y el exterior, que permiten un adecuado uso de las aulas polivalentes sin interferencias acústicas entre aulas del mismo nivel o entre espacios situados a diferentes niveles.

Además de garantizar confort térmico y acústico, estos espacios confieren “confort tecnológico”, al estar equipado con tomas de corriente en suelos, que permiten cualquier tipo de organización de mobiliario, y conexión a la red en cualquier de sus rincones.

Estos espacios corazón abogan por la seguridad y mantenimiento, al poder ser recorridos visualmente en su totalidad desde cualquier punto, y por tanto poder controlar fácilmente cualquier mal uso del edificio y su reparación, al tener particiones y cerramientos totalmente accesibles bien a través de terrazas o bien a través de plataformas de mantenimiento.

2623-TOF-ES-2019 — Posted in 2020 — Explore more projects on education and school — Climate: continental and temperate — Coordinates: 40.548292, -5.671799 — Team: María Navarro, Rubén Rodríguez, Manuel Jesús Píriz — Views: 4.256