Instituto de investigación de Biomedicina Bellinzona is a proposal by Cruz y Ortiz designed in 2014. It is located in Bellinzona Switzerland in a riverside setting. Its scale is medium with a surface of 7.059 sqm. Key materials are glass and metal. Concepts such as stratification and linear block are explored.

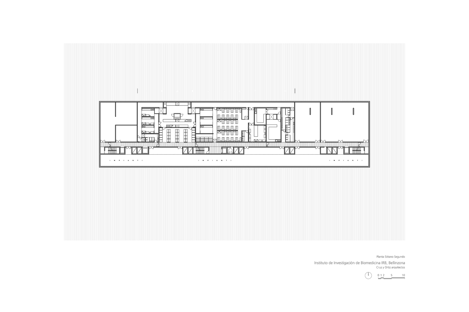
El edificio adopta la forma de un bloque alargado en dirección Norte Sur y en el centro de la parcela disponible. En su lado Este se producen las entradas y salidas al aparcamiento. A pesar de no contar con datos suficientes, se propone aquí un avance de ordenación de todo el polo. Proponemos girar la futura edificación y generar así un espacio triangular, un recinto aparte, que actúe como lugar de reconocimiento del pequeño campus, como área de descanso y contacto entre los investigadores o los usuarios de todo el conjunto. Un hipotético tercer edificio permitiría concentrar en él los usos más públicos y comunes – café, guardería – y recuperar así esos espacios para otros usos dentro del volumen ya construido. El vidrio, serigrafiado, transparente o traslúcido será el responsable de la imagen del edificio, proporcionando el aspecto pulcro, aséptico, exacto, que estimamos que se corresponde bien con el uso del edificio como centro de investigaciones biosanitarias. En suma, un edificio que pretende ser muy eficiente en su funcionamiento y preciso en su apariencia; permítasenos la analogía: como un instrumento de laboratorio. No es habitual comenzar hablando de las plantas subterráneas de un edificio pero en este proyecto tienen una gran importancia ya que se solicita un amplio programa cuya posición más lógica es bajo rasante. Se propone una solución con dos plantas subterráneas muy compactas y sobre las que descansa todo el peso del edificio.

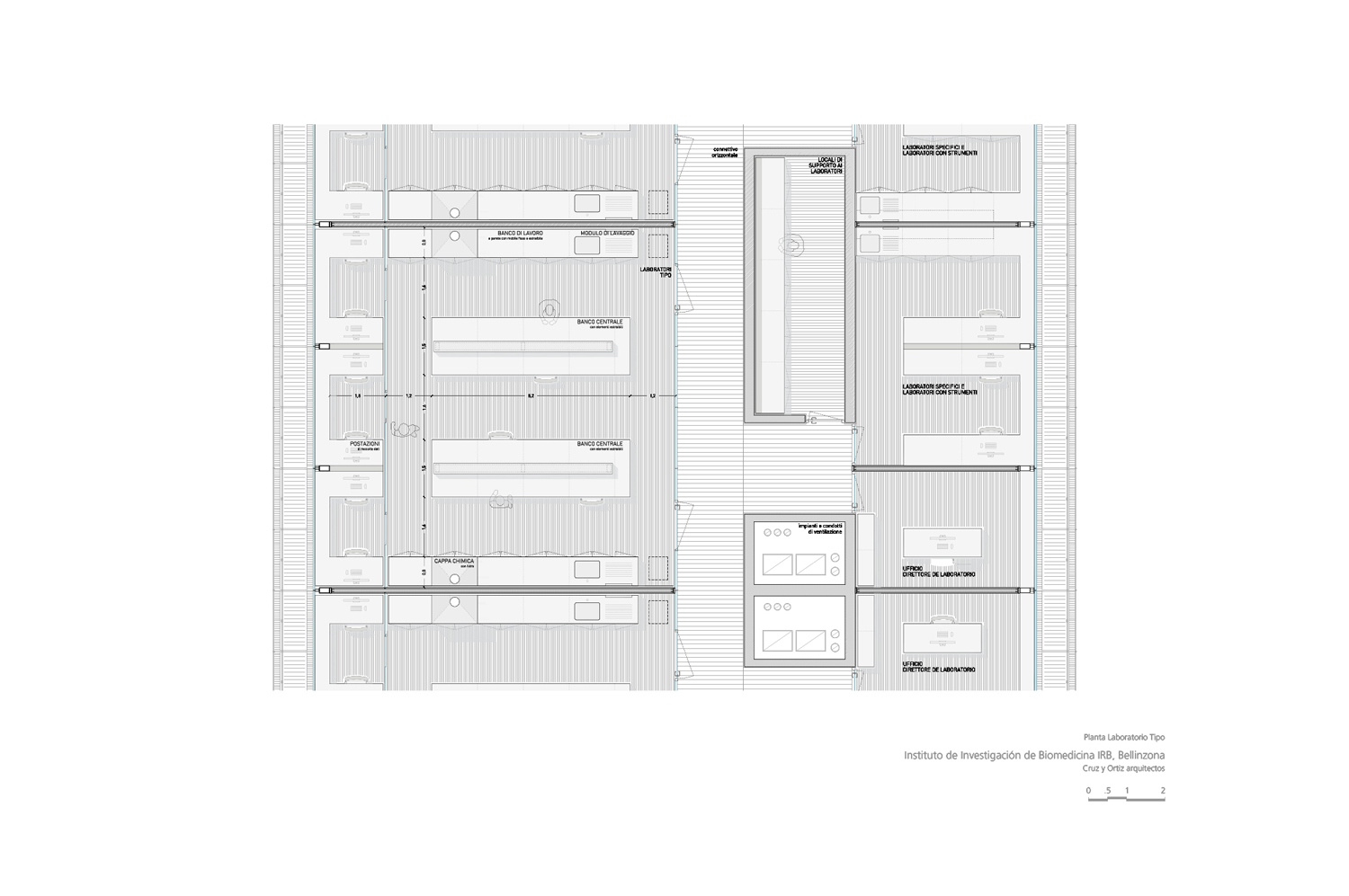
La planta -1, que alberga el aparcamiento, ha sido especialmente cuidada. El acceso a la misma, seguramente el acceso más usado del edificio, se hace a través de unas suaves pendientes arboladas evitando la aparición de rampas convencionales. La planta baja acoge los usos más públicos y los accesos. Desde un paso transversal Este-Oeste, una generosa escalera circular permite la conexión con el nivel -1. Al sur de este paso se ubican los usos más públicos como la cafetería, el auditorio y la guardería. El edificio se genera desde la planta. Las condiciones de volumen y ocupación de la parcela han conducido casi inevitablemente hacia una solución prismática. El proyecto acepta estas limitaciones y encaja el complejo programa solicitado en un volumen muy preciso y compacto. Así, la planta aparece como el instrumento de proyecto más adecuado. Se genera una espina longitudinal compuesta por todos los elementos fijos necesarios, ya sean núcleos verticales de circulación, instalaciones, aseos u otros usos auxiliares. Este elemento vertebra toda la planta y su posición excéntrica define crujías de edificación de distinta dimensión, la mayor acogerá los laboratorios y la menor los usos administrativos. A esta espina longitudinal, donde se concentra el núcleo estructural que estabiliza el edificio, se corresponde un perímetro continuo y muy homogéneo, quedando absolutamente libre la planta de cualquier otro obstáculo que pudiera impedir la flexibilidad de uso, actual o futura. Sólo una excepción a esta regla: en planta segunda y tercera, un espacio de doble altura interrumpe la homogeneidad del edificio y genera un punto de acceso común a los tres institutos y un punto de encuentro de los investigadores que facilite los contactos entre ellos.

1742-CYO-CH-2014 — Posted in 2017 — Explore more projects on education and research center — Climate: humid subtropical and temperate — Coordinates: 46.195324, 9.016975 — Collaborator: Cyan Animática, Claudia Scimia, Federico Cherchi, Giordano Baly, Ludovica Patriarca, Óscar García de la Cámara, Giraudi Radczuweit — Consultant: Studio d‘Ingegneria Visani Rusconi Talleri, Studio d'ingegneria Tami Cornetta & Associati — Structural engineer: Fuerst Laffanchi GmbH — Views: 4.761