Jøssingfjord Center is a proposal by NRJA for Norske Arkitekters Landsforbund designed in 2011. It is located in Jøssingfjorden Norway in a mountain setting. Its scale is medium. Key material is wood. Concepts such as sloped roof and twisting are explored.

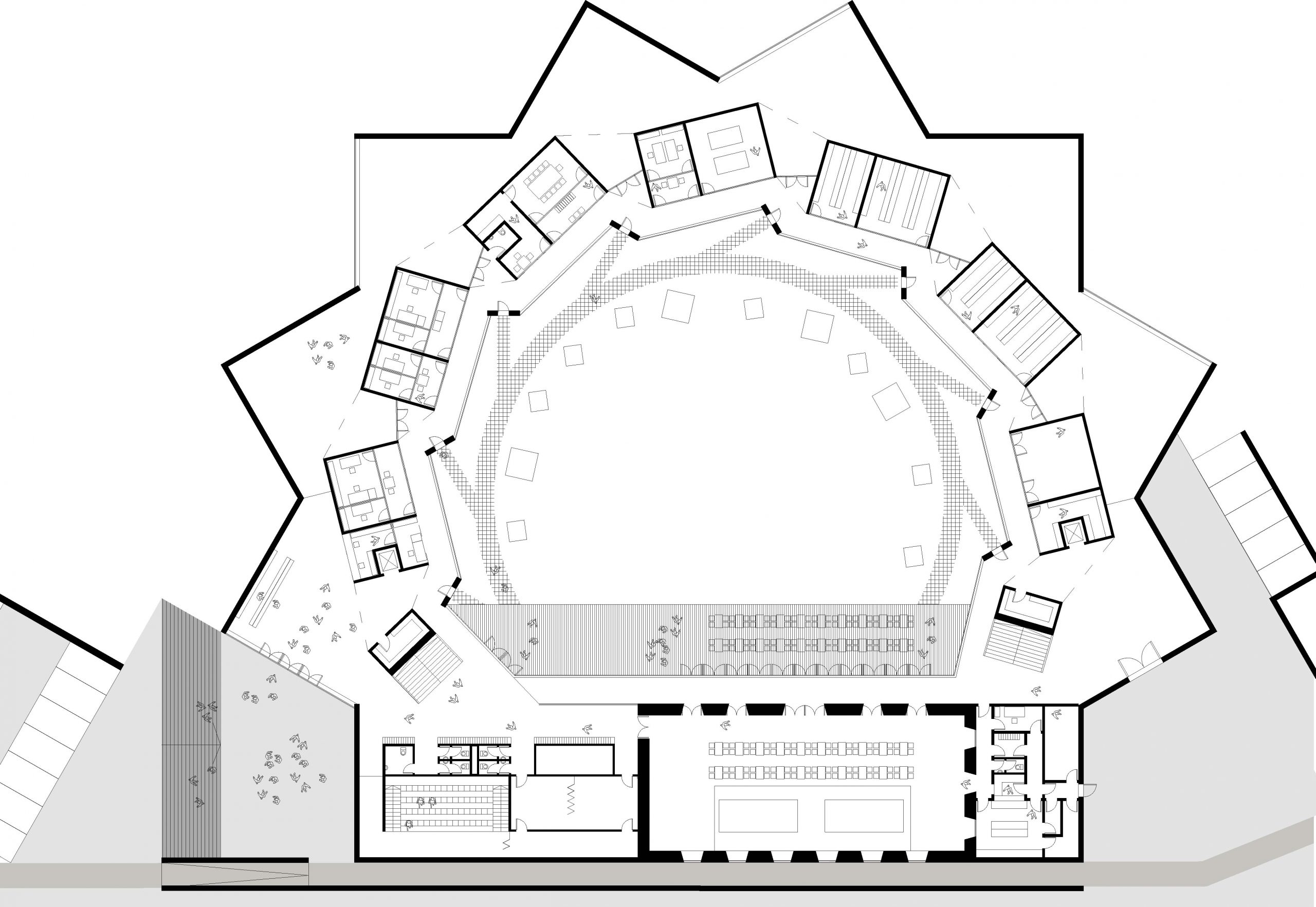
International competition to create a cultural center in Jøssingfjord, Norway. Designed to incorporate the site’s original powerhouse, this museum addition offers a hybrid extension to the historical structure. The contemporary plan arrangement is composed of forms faced with a wood cladding corresponding with the adjacent construction to evoke a preserved and uniform exterior appearance. The galleries are rotated and revolve around a central open air courtyard creating a looped footprint extending from the existing building. Exhibition spaces are housed under a gable roof and visitors are provided with unobstructed sight lines to the surrounding ravine’s steep cliff through a floor to ceiling glass facade. An upper level mezzanine wraps the interior for additional perspectives of displayed artifacts used within the region’s previous mining activities.

0391-NRJ-NO-2011 — Posted in 2012 — Explore more projects on cultural and museum — Climate: oceanic / maritime and temperate — Team: Uldis Luksevics, Uldis Sedlovs, Linda Leitane — Views: 3.551