Kindergarden at Sundholmsvej is a selected proposal by Transform and COBE for City of Copenhagen designed in 2010. It is located in Copenhagen Denmark in an urban setting. Its scale is medium with a surface of 1.700 sqm. Key material is glass. Luxigon collaborated as visualizer. Concepts such as terrace and transparency are explored.

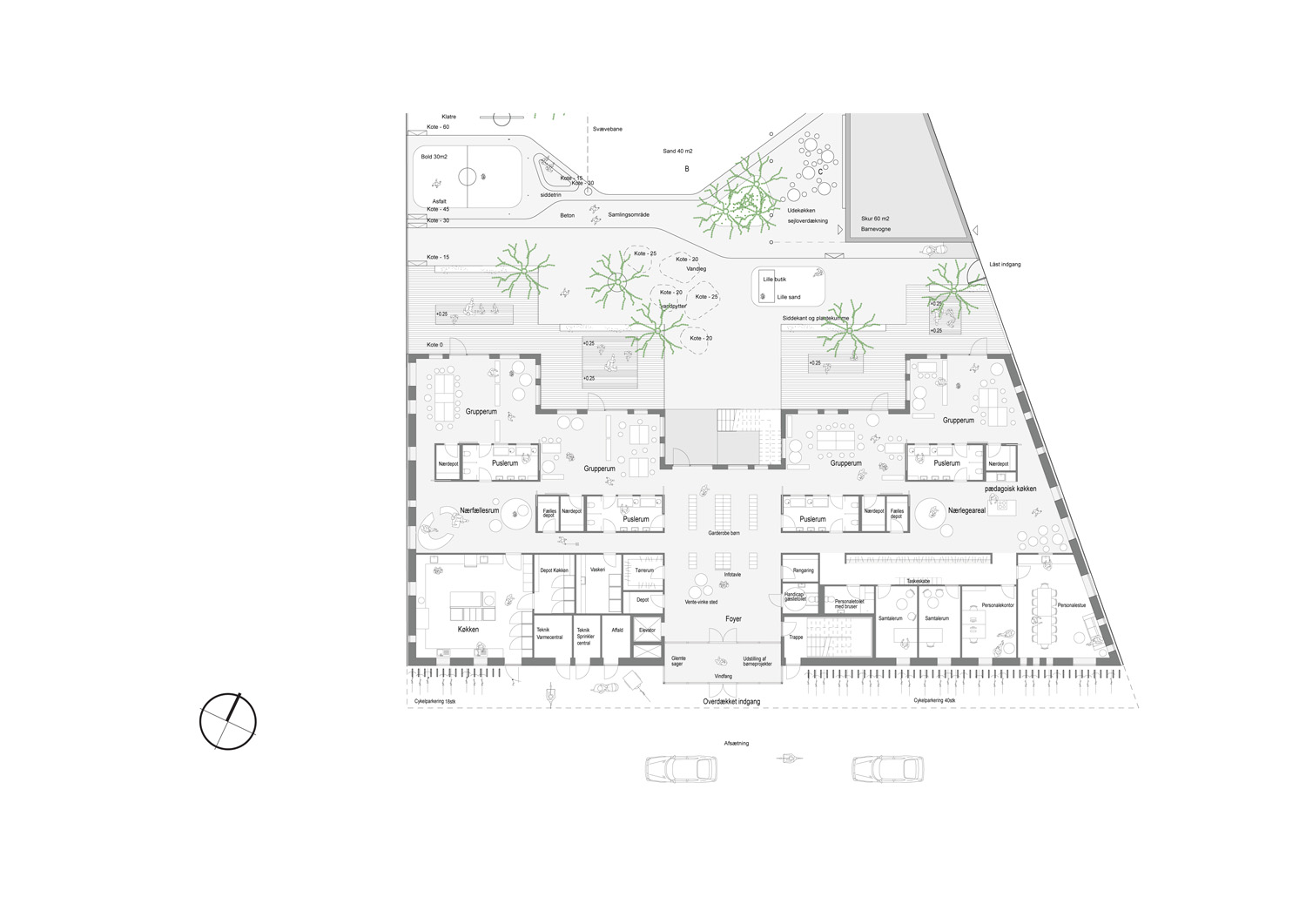
Kindergarden with 10 groups and a large playground. The site is laced on Sundholmsvej, Amager, Copenhagen – a mixed urban area with a catalogue of more or less urban structures. The project is situated right in front of an old hospital, and the main axis of the preserved historic structure runs straight through the site. Sundholmsvej runs parallel to the site and represents a large problem in relation to sound and sight.

Concept

– The whole ground is encircled in a glass wall – to minimize sound and visual noise from Sundholmsvej and to set up an exclusive world for children.
– The main axis of the hospital is becomes a «no-build» area – which pushes the climatized areas to the south of the site – in 3 storeys.
– The building mass is formed as a large staircase – to connect house to the playground and create exterior zones in close relation to all 10 groups of children.

Project

Exterior and interior zones are closely intertwined in our figure – the encircling wall – semitransparent and lit up at night – to allow glimpses of playing children and a strong signal of change in the Sundholmsarea

0197-TRA.COB-CPH.DK-2010 — Posted in 2013 — Explore more projects on education and nursery — Climate: oceanic / maritime and temperate — Coordinates: 55.660547, 12.598092 — Team: TRANSFORM, COBE, GRASSAT, MIST, Wessberg — Views: 2.915