Kindergarten Heerbrugg is a proposal by Josep Ferrando and David Recio for Primarschule Au-Heerbrugg designed in 2014. It is located in Heerbrugg Switzerland in an outskirt setting. Its scale is medium. Key materials are concrete and wood. Concepts such as extension zenithal light linear block and flexibility are explored. Review the 2 proposals for the same competition.

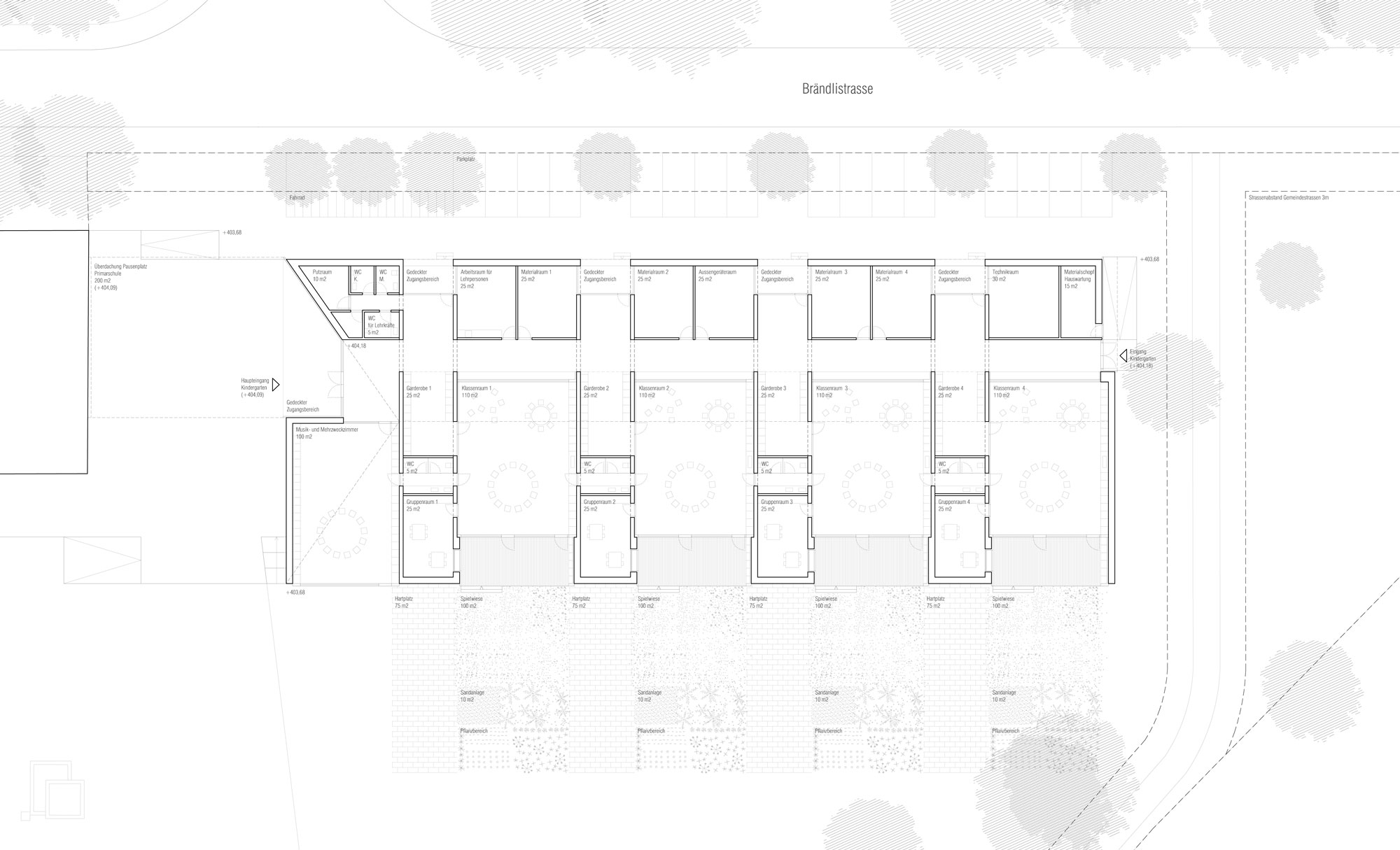
Eingebettet im bestehenden Schulkomplex grenzt die Parzelle des neuen Kindergartens an die Brändlistrasse , den Blatterweg (dieser bleibt erhalten) und an den Baukörper des Schulhauses, des Pavillons und der Sporthalle.  Als kompaktes Volumen konzipiert beabsichtigt der Neubau bestmöglich auf die örtlichen Gegebenheiten einzugehen.

Eingriff

Die Ausrichtung des neuen Kindergartens nimmt auf das bestehende Schulhaus Bezug und situiert die Fassade entlang der Brändlistrasse mit dem Ziel möglichst viel Freiraum für den Spielbereich beizubehalten. Im Zwischenraum der beiden Baukörpern entsteht ein Platz, der als gemeinsamer Eingangsbereich dient. Aufgrund der Hochwasseranforderungen liegen sowohl der Platz als auch das Erdgeschoss 50cm über dem Strassenniveau.

Gebäude

Das Gebäude basiert auf einer Abfolge von Betonrippen, die als konstruktive Elemente wirken und eine klare räumliche Gliederung des angeforderten Raumprogramms ermöglichen. (Vier Kindergarteneinheiten und ein Musik- und Mehrzweckzimmer). Alle vier Kindergarteneinheiten weisen den gleichen Bedingungen in Bezug auf Ausrichtung, Verhältnis zwischen innen und Außen, Beziehung zu Erschliessungsflächen und generelle räumliche Gegebenheiten auf. Daraus folgernd wird durchgehend die gleiche Form im Schnitt beibehalten, wodurch die Klassenräume sich stets zum Spielbereich hin öffnen und indirektes Zenitallicht durch die Oberlichten erhalten. Das ähnlich grosse Musik-und Mehrzweckzimmer stellt die Ausnahme dar und wird aufgrund der unterschiedlichen Funktion anders im Schnitt gestaltet. Dies hat eine gewisse Asymmetrie zur Folge, welche wiederum dazu dient den Eingangsbereich des Gebäudes zu markieren.

Aussenraum

Dank der Orientierung parallel zur Brändlistrasse liegt der Freiraum eingerahmt zwischen dem neuen Kindergarten, den Bestandsgebäuden und dem Hügel im Südosten der Parzelle. Die unterschiedlichen Spielbereiche des Kindergartens schliessen direkt an das Gebäudes an wobei die regelmässige Geometrie sich aus der Formgebung des Baukörpers ableitet. Die gleichmässige Verteilung der Spielbereiche auf die Klassenräume erleichtert den Zugang für die Kinder. Die für die Primarschüler entworfenen Aussenmöbel hingegen lösen sich vom Gebäude, nehmen organische Formen an und stellen den Bezug zur Vegetation und den natürlichen Elementen her.

Raumprogramm und Erschliessung

Die Erschliessungsflächen werden zusammengefasst mit dem Ziel einen akustischen und visuellen Filter zwischen den Klassenräumen und der Brändlistrasse herzustellen. Dies unterstützt eine bestmögliche Ausrichtung der Klassen und einen unmittelbaren Bezug zu den Spielwiesen im Außenraum. Die Kindergarteneinheiten sind so angeordnet, dass sie unabhängig voneinander und von der Straße aus erschlossen werden können, mit der Idee eine eventuelle funktionale Abtrennung in Zukunft zu erlauben. Das Musik-und Mehrzweckzimmer liegt  dem Schulhaus am nächsten, da es als einziges Element sowohl von den Primarschülern als auch von den Kindergartenschülern genutzt werden kann.

Struktur

Die Betonstruktur dient gleichzeitig als statisches Elemente wie zur räumlichen und funktionellen Unterteilung des Gebäudes. Alle Wände sind aus bewehrtem Eisenbeton, wenn möglich aus rezykliertem Zuschlagmaterial von 30cm Stärke. Abwechselnd in einer Distanz von 4,40m und 9,4m definieren sie so die Klassenräume und die Serviceräume. Das Dach und die Fassaden sind ebenso aus bewehrtem Eisenbeton und arbeiten statisch zusammen mit den tragenden Wänden. Die Windstabilität und die Erdbebensicherheit des Gebäudes werden durch Verstärkungen in Betonwänden der Fassade und den rechtwinklig dazu stehenden Serviceraumwänden erreicht.

Gebäudehülle

Von aussen nimmt man die klare Betonhülle des Gebäudes wahr. Die Perforierung ermöglicht sowohl Sichtbezüge von innen nach aussen wie auch die Luftzirkulation. Diese Verbindungen sind stets als Holzelemente wahrnehmbar.  Ein Material, welches dank seiner haptischen Qualität eine warme Beziehung zum Menschen aufbaut – kontrastierend zu den Betonflächen in den höheren Bereichen und der Gebäudehülle. Die Betonrippen durchstossen rechtwinklig das Gebäudevolumen, ohne dass sie jedoch komplett durch die transversalen Elemente unterbrochen werden.

1000-JFB-CH-2014 — Posted in 2014 — Explore more projects on education and nursery — Climate: temperate and oceanic / maritime — Coordinates: 47.414969, 9.627512 — Collaborator: Arnau Sumalla, Gian Marco Maddalena, Karen Nijdam, Mohammad Al Shawa — Views: 3.845