Krematorium Hörnli is a winning proposal by Bernhard Maurer and Frederic Garrigues-Cortina for Canton of Basel designed in 2012. It is located in Basel Switzerland in a cemetery setting. Its scale is medium. Key material is brick. Concepts such as courtyard and lattice are explored. Review the 5 proposals for the same competition.

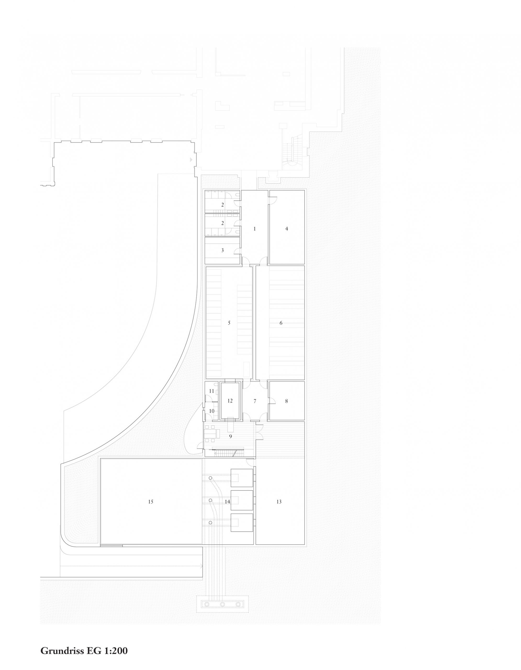
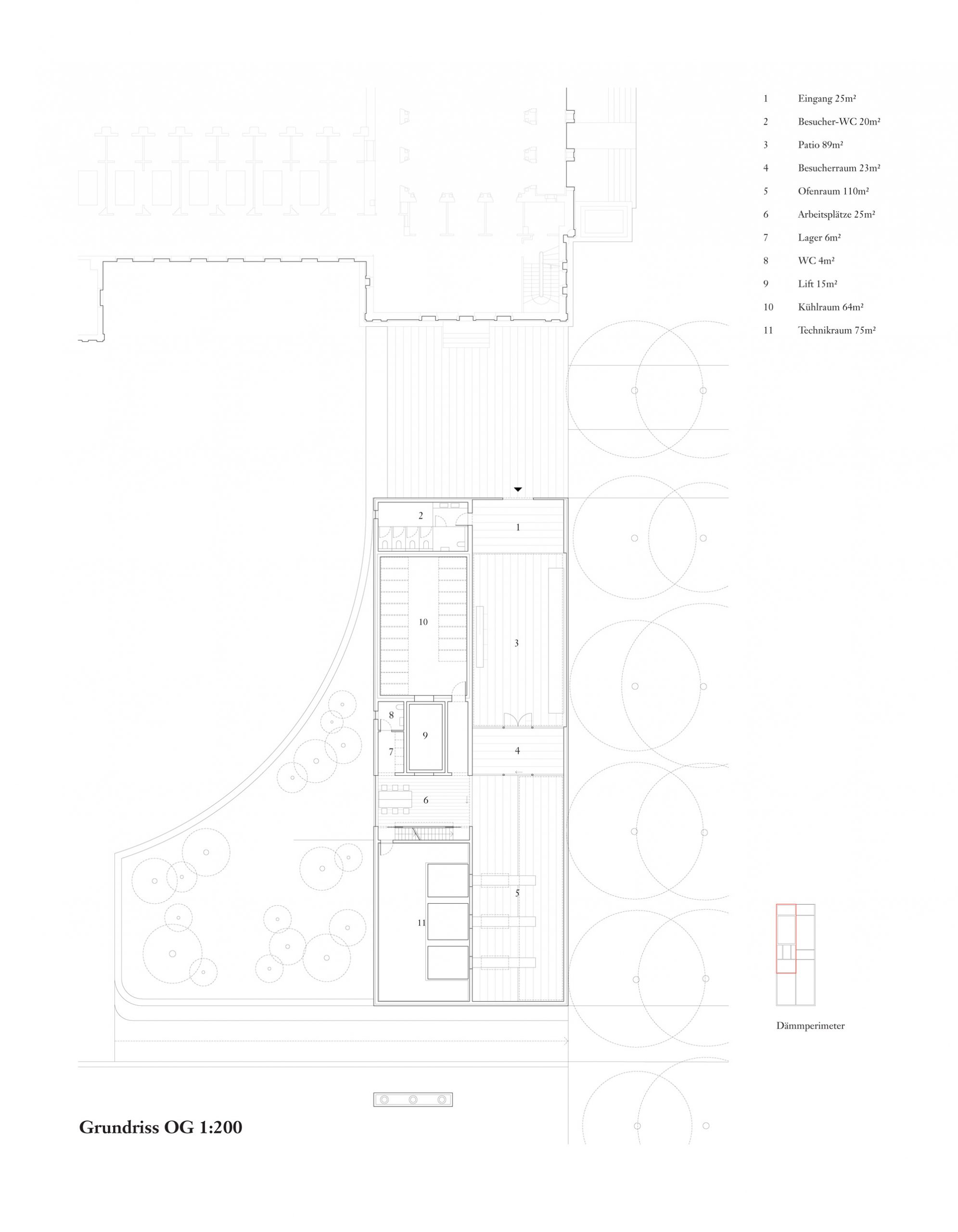
Der willkürliche und oft schmerzliche lauf der natur wird beim Friedhof am hörnli in Form eines klaren, geometrischen gartens von der menschlichen Vernunft kontrastiert. diese haltung betrachtet der Verfasser respektvoll als den grundton der anlage und ordnet ihm alle entwurfsentscheide unter – und dies auf allen ebenen sehr konsequent. Das gebäude ist deshalb streng innerhalb der Fluchten des rechten Flügelbaus situiert. aber nicht als anbau, sondern im respektvollen, wohl proportionierten abstand zum hauptbau. der daraus resultierende aussenraum (eine bessere abgrenzung zum Werkhof ist noch zu prüfen) ist der beginn einer an die tradition der sakralen bauten erinnernden raumfolge. Völlig ungezwungen schreitet die trauerfamilie von raum zu raum bis zum ort der finalen Verabschiedung. jeder raum hat seine eigene stimmung, seine spezifische raumdefinition. erreicht wird dies, obwohl alles im gleichen material backstein gebaut ist, dank verschiedensten Perforationen, lichtführungen und bezügen nach aussen.

Dass der sarg des Verstorbenen im untergeschoss den gleichen Weg nimmt, ist ein schöner, wenn auch akademischer gedanke. entsprechend dem dramatischen Verlauf der oben beschriebenen raumfolge, sind die Volumen in einer souveränen Folge aufgespannt. Vom sockel des alten gebäudes bis zur spitze des Kamins liegen die dominierenden gebäudeecken alle auf einer linie, auf einem tracé régulateur. Die längsfassade selber gleicht eher einer gartenmauer mit aufgesetztem Körper, schön rhythmisiert durch die davor stehenden alleebäume. der backstein, als tragendes und allgegenwärtiges material, ist eine ganz selbstredende Wahl. ob es dieser helle, vielleicht zu direkt an den schamottstein der brennöfen erinnernde stein sein muss, ist fraglich. zu prüfen wäre allenfalls ein dunkler Klinker, der mit dem grün der anlage harmonisieren würde. Und wenn wir schon beim grün sind, dann wissen auch die Verfasser, dass sich das Flachdach über dem technikraum nicht mit so grossen bäumen bepflanzen lässt. die geforderte Verbindung von Werkhof und allee ist einfach realisiert. die leichte Verschiebung der Wegachse wird in der realität kaum stören.

Betrieb und anlagetechnik

Die ganze anlage ist linear auf zwei etagen organisiert und mit dem grossen «durchlader­lift» im zentrum sehr effizient zu betreiben. dabei sind betrieb und Publikum komplett getrennt. die sicht des Personals auf die ofentüren und die belichtung aller arbeitsplätze ist zu verbessern. Ob sich die rauchgasführung jedoch so «um die Kurve» biegen lassen, ist noch abzuklären. ebenso fehlt der nachweis der 8 m2 grossen luftfassung. das rückkühlungskonzept und dessen unterhalt auf dem dach sind gut gelöst. auch die andern anlageteile sind nahe an der machbarkeit konzipiert und ein wirtschaftlicher betrieb ist deshalb wahrscheinlich.

Statik und Wirtschaftlichkeit

Das ganze statische Konzept ist sorgfältig durchdacht und ohne zusätzliche massnahmen konventionell in einer stahlbetonkonstruktion zu realisieren. alle nutzlasten sind erfüllt. die streifenfundamente sind durch eine Plattenfundation zu ersetzen. Die zu erwartenden gesamtanlagekosten liegen aufgrund der guten Kompaktheit leicht unter dem zielwert. Fazitdas vorliegende Projekt ist entsprechend der situation gekonnt in zwei schichten betrieb/besucher organisiert. Wenn ein bau an dieser stelle anständig, zurückhaltend, mässig klassisch aber nicht pompös, modern aber nicht fabrikmässig sein soll, dann erreicht dieses Projekt dieses ziel ohne Wenn und aber. die fast «lautlose» anständigkeit des Projektes wird der kulturellen aber auch funktionellen bedeutung der aufgabe fast voll und ganz gerecht.

0218-BMA.FGC-BSL.CH-2012 — Posted in 2014 — Explore more projects on religious and religious center — Climate: oceanic / maritime and temperate — Coordinates: 47.564884, 7.640495 — Consultant: Bollinger et grohmann Paris, Pierre arnaud Voutay — Landscape: ewen le rouic Paysage, F­lyon — Views: 6.111