La Gloria II is a proposal by APICCA designed in 2013. It is located in Buenos Aires Argentina in a countryside setting. Its scale is medium. Concepts such as sloped roof and aggregation are explored.

La Gloria II est une occupation informelle, une « prise de terre sauvage », une urbanisation « spontanée » qui se développe depuis 2005 à la limite de la mégalopole de Buenos Aires. Aujourd’hui, sa légitimité n’est plus réellement remise en cause et les terrains sont peu à peu légalisés. La Gloria II va devenir un quartier de Moreno. Ce projet, alliant un processus urbain global à des interventions architecturales ciblées propose alors un scénario pour son développement. Loin de la logique conventionnelle de production de sol urbain et d’habitat, nous nous confrontons ici à la difficulté dans travailler dans un contexte où l’informalité et l’auto-construction prédominent, de s’immiscer dans un processus balbutiant, mais déjà en marche. Il fallait penser une évolution qui contente sur le court terme les urgences immédiates en terme d’habitat tout en incorporant et articulant les outils pour le développement du quartier à moyen et long terme. Nous proposons donc une stratégie de consolidation de La Gloria II à travers la planification coopérative d’espaces et de réseaux. Le montage opérationnel élaboré intègre les caractéristiques spatiales et sociales observées de l’informel mais s’appuie sur des mécanismes économiques existants officiels, adaptables à ce contexte. L’architecte est dans une position de concepteur mais aussi de médiateur entre les pouvoirs publics et les habitants. Il est un acteur social et spatial qui planifie tant sur une échelle territoriale qu’architecturale et initie des processus plutôt que de concevoir des objets finis.

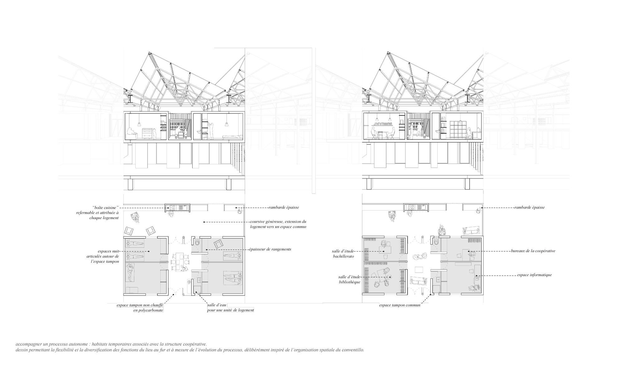
Le projet s’infiltre donc dans plusieurs secteurs d’intervention clefs du quartier, de manière incitative, profitant des «informalités de la trame urbaine». Il se glisse dans ses creux, réinventant de nouveaux seuils entre le public et le privé et permettant le développement des réseaux et infrastructures. Se forme ainsi une trame d’opérations multiples sur l’ensemble du quartier, juxtaposées, ayant différentes temporalités et finalités. Ces interventions seraient adaptées aux caractéristiques de la culture urbaine populaire et aux modes de financement enclenchés, étalonnés et instables : des logements d’urgence réadaptables, des équipements et espaces publics flexibles, la mise en œuvre évolutive et concertée d’habitats intermédiaires… Le but étant de répondre dans une première étape au besoin d’habitat temporaire et de créer les outils qui permettront au quartier de se consolider par la suite en autogestion si besoin, notamment par la mise en place de la structure coopérative.

Le dessin de typologies de logements pouvant répondre aux temporalités et financement du processus est proposé. Il construit une nouvelle échelle entre l’individuel et le collectif relative à cet environnement semi-rural et aux caractéristiques sociales du quartier. Il joue sur la standardisation et la répétition tout en permettant la création d’une diversité imprévisible. Il facilite les transformations, l’adaptation et l’évolution s’appropriant les codes de la culture urbaine populaire de ces territoires entre formalité et spontanéité, entre ville et pampa. La morphologie et l’aspect évolutif de ces habitats émanent de l’étude approfondie des typologies historiques, formelles et informelles du Grand Buenos Aires dans un travail de recherche fait en parallèle : Le Petit Glossaire illustré des indiscrétions de la trame. L’acte d’habiter est une composante de la culture dont les codes doivent être apprivoisés. Les éléments vernaculaires de l’habitat argentin sont investis dans un dessin contemporain, réinventant de nouvelles configurations spatiales adaptées à ce contexte urbain et social. Ici s’entremêlent des réflexions explorant le rôle et la responsabilité de l’architecte, les caractéristiques de la trame urbaine portègne, les enseignements de la ville « spontanée » et finalement la notion d’habitat, non comme un objet comme tel mais comme le résultant de données historiques, politiques, économiques, sociales et sociétales.

1064-API-BUE.AR-2013 — Posted in 2015 — Explore more projects on housing and residential — Climate: humid subtropical and temperate — Coordinates: -34.597392, -58.816047 — Team: Aude Pinault, Céline Cassourret — Views: 3.261