L'Escala Public Library is a thrid prize proposal by JAAS Julià Arquitectes Associats and Yaiza Terré for Ajuntament de L'Escala designed in 2018. It is located in L'Escala Spain in an urban setting. Its scale is medium with a surface of 3.294 sqm an estimated budget of 5.472.000 € and a ratio of 1.661 €/sqm. Key material is concrete. Graph collaborated as visualizer.

Es proposa un edifici atent a l’entorn on s’insereix, amb una planta baixa permeable als moviments de la vila i amable al tacte dels seus materials. La seva volumetria de forma senzilla relaciona dues escales diferents. D’una banda, l’escala urbana, reforçant la Plaça de les Escoles com a pol cívic i d’equipaments del municipi i, d’altra banda, una segona escala de gra menor, pautada i atenta al ritme de les façanes i mitgeres veïnes que la integra a l’entorn immediat.

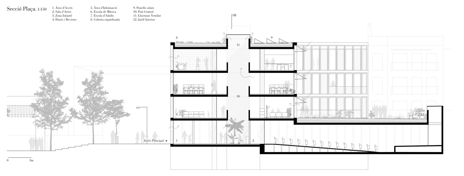
Es planteja donar visibilitat i significació al nou equipament utilitzant el recurs de la transparència de la façana principal (orientada a nord) per a manifestar la voluntat de donar continuïtat, en vertical, a l’espai públic adjacent. Uns buits situats estratègicament darrera la pell de l’edifici configuren terrasses amb vistes privilegiades al mar i relacionen intencionadament cada planta amb els carrers de l’entorn.

Criteris d’intervenció

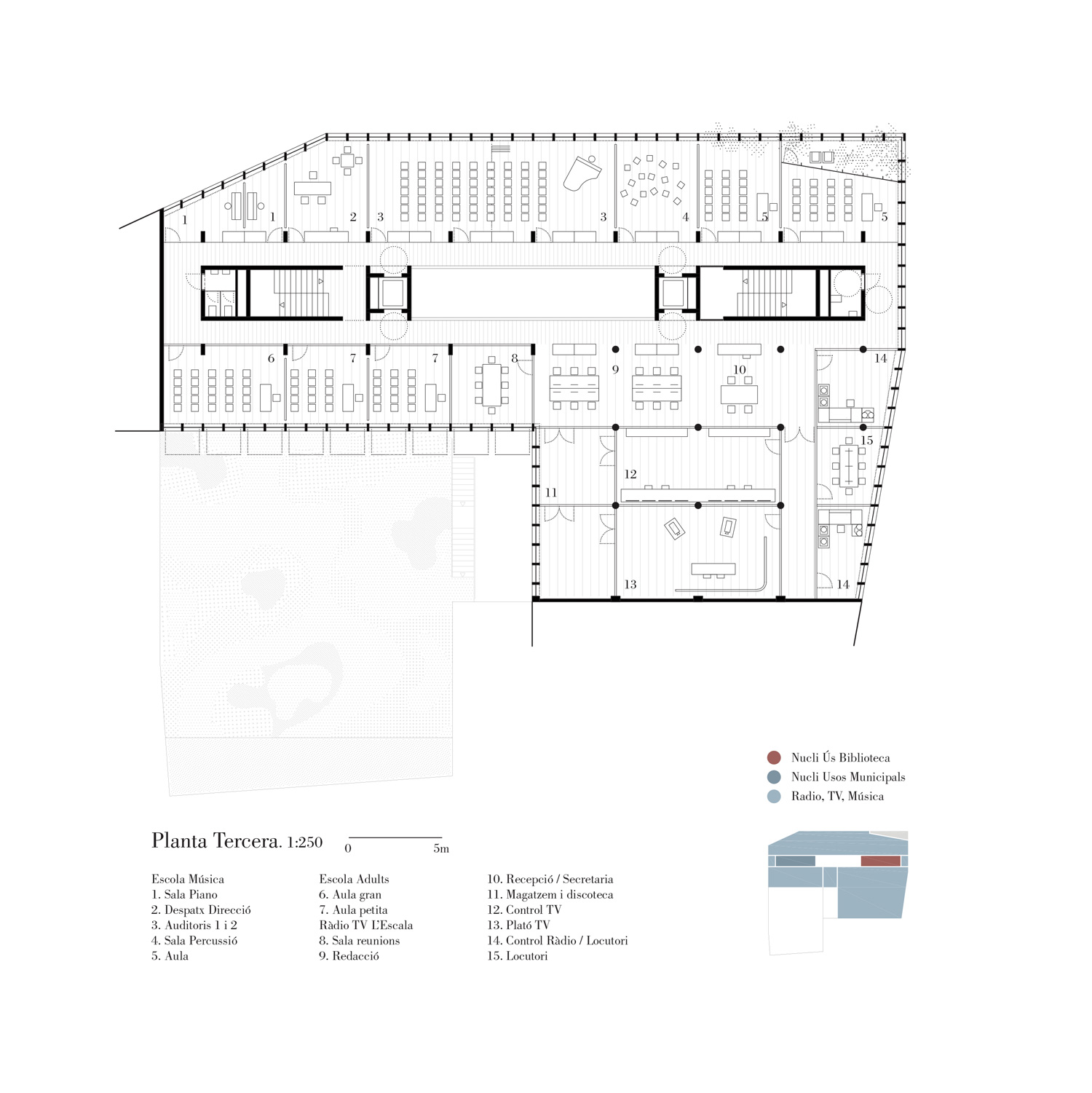
Durant anys les biblioteques han estat un lloc d’emmagatzematge i difusió de diferents suports, molts dels quals s’estan ara desmaterialitzant. Es planteja, per tant, la nova biblioteca com un contenidor flexible i adaptable. La nova biblioteca ha de ser un espai amb una altíssima polivalència d’usos, un punt de trobada, un espai de relació, d’exposició, de formació, d’aprenentatge, de creació , d’inspiració, d’accés a recursos, de lectura, etc.

Es proposa despullar l’edifici pre-existent a mantenir dels seus tancaments i façanes fins arribar a la seva essència estructural i partir d’aquesta preexistència com a principi vertebrador del projecte. L’estructura regular de pilars i lloses de formigó armat estableix una pauta ritmada que s’estén conformant el nou edifici i desdibuixant la trobada amb el cos vell. L’estructura també defineix la imatge urbana de l’edifici, incorporant de forma simultània panells transparents o opacs segons l’activitat interiors. La variabilitat del contingut de l’edifici és el que li aporta la riquesa i calidesa espacials.

La compartimentació interior s’entén com un “emmoblament”, amb tancaments lleugers, desvinculats de l’estructura i fàcilment modificables per donar flexibilitat als espais.

L’ordre i la distribució del programa proposat, clar i senzill, garantirà la no existència de barreres arquitectòniques i la fàcil orientació dels usuaris. Voldríem que la nova biblioteca fos un entorni inclusiu i adaptat, més enllà de CTE i Codi Accessibilitat. Per tant proposem la implementació d’amplificadors de Llaç Inductiu, de paviments podo-tàctils en els principals recorreguts, d’ascensors

Vista interior

L’espai central vertebrador conté les comunicacions verticals, instal•lacions i serveis de l’edifici. Aquest àmbit servidor ofereix mirades creuades entre les diferents plantes diàfanes, tot aportant llum i ventilació natural. Els paviments ceràmics, la llum filtrada per els tendals i la vegetació construeixen uns interior acollidors i serens.

Vista exterior

Darrera la pell de l’edifici s’aprecien buits estratègics, que funcionen com a espais inter-mitjos, entre interior i exterior. Terrasses que espongen l’edifici i permeten gaudir de les excepcionals vistes al mar, i l’accés principal, fàcilment reconeixible, ubicat a la plaça de les Escoles. Aquest accés funcionarà com a distribuïdor compartit per els diferents usos: biblioteca, sala d’actes i equipaments existents.

Estructura

La prolongació de l’estructura existent cap a l’edifici nou permet l’ús de llums curtes per simplificar el sistema estructural tant constructivament com en cost. Entre pilars es proposa un sistema constructiu modular i seriat, per afavorir la seva facilitat constructiva i adaptabilitat futura a qualsevol programa d’interès per a l’ajuntament.

Energia

Tot l’edifici es beneficia de la ventilació natural creuada i de la refrigeració a l’estiu per efecte “xemeneia” (Venturi) a través d’espai central obert a múltiple alçada. Es planteja un sistema de paviment amb solera tecnificada registrable (tipus Matrics) que integri els sistemes de cablejat, ventilació i terra higrotèrmic (sòl radiant) produït per caldera de biomassa i sistema aerotèrmic.

Captació i protecció solar

El sistema proposat permet adaptar-se a les necessitats de cada façana: captació de llum natural controlada a nord i protecció solar a sud amb tendals. Així com la introducció d’un pou cenral de llum permet captar l’energia solar controlada amb tancament superior practicable per regular la temperatura (efecte hivernacle).

Gestió de l’aigua

Les cobertes enjardinades funcionen com aïllament tèrmic i acústic i alhora permeten el reaprofitament de l’aigua de pluja pel sistema de rec i per abastir l’edifici.

2363-MJV-ES-2018 — Posted in 2018 — Explore more projects on education and library — Climate: mediterranean and temperate — Coordinates: 42.122377, 3.131639 — Team: Josep M. Julià, Manuel Julià, Jordi Gorgues, Yaiza Terré — Collaborator: Ane Unamuno — Consultant: Ferran Pelegrina — Views: 6.860