Llealtat Santsenca is a fourth prize proposal by aq4 arquitectura for BIMSA designed in 2012. It is located in Barcelona Spain in an urban setting. Its scale is medium with a surface of 1.800 sqm an estimated budget of 2.200.000 € and a ratio of 1.222 €/sqm. Key materials are ceramic and wood. The concept of adaptable reuse is explored. Review the 3 proposals for the same competition.

La proposta inclou la rehabilitació energètica de l’edifici que es reforma i incorpora diverses estratègies sostenibles amb el fi de minimitzar les seves necessitats energètiques. Construir edificis que optimitzin la despesa energètica proporciona un valor definitiu. Així s’assoleix una reducció del 35% del cost energètic a través de processos de disseny integrats i de la implementació de tecnologies eficients. Es calcula de forma estimativa que el retorn de la inversió realitzada en eficiència energètica és menor a 9 anys. Això s’aconsegueix, d’una banda, amb mesures passives per minimitzar les necessitats de climatització, com la millora d’aïllaments tèrmics. I d’altra banda, amb la implementació de sistemes d’alta eficiència (caldera de condensació, recuperador de calor, làmpades fluorescents trifòsfor,…), i la sectorització, monitorització i centralització en un sistema de control de les instal·lacions. La ubicació de l’edifci desaconsella la inversió en sistemes d’energia renovables.

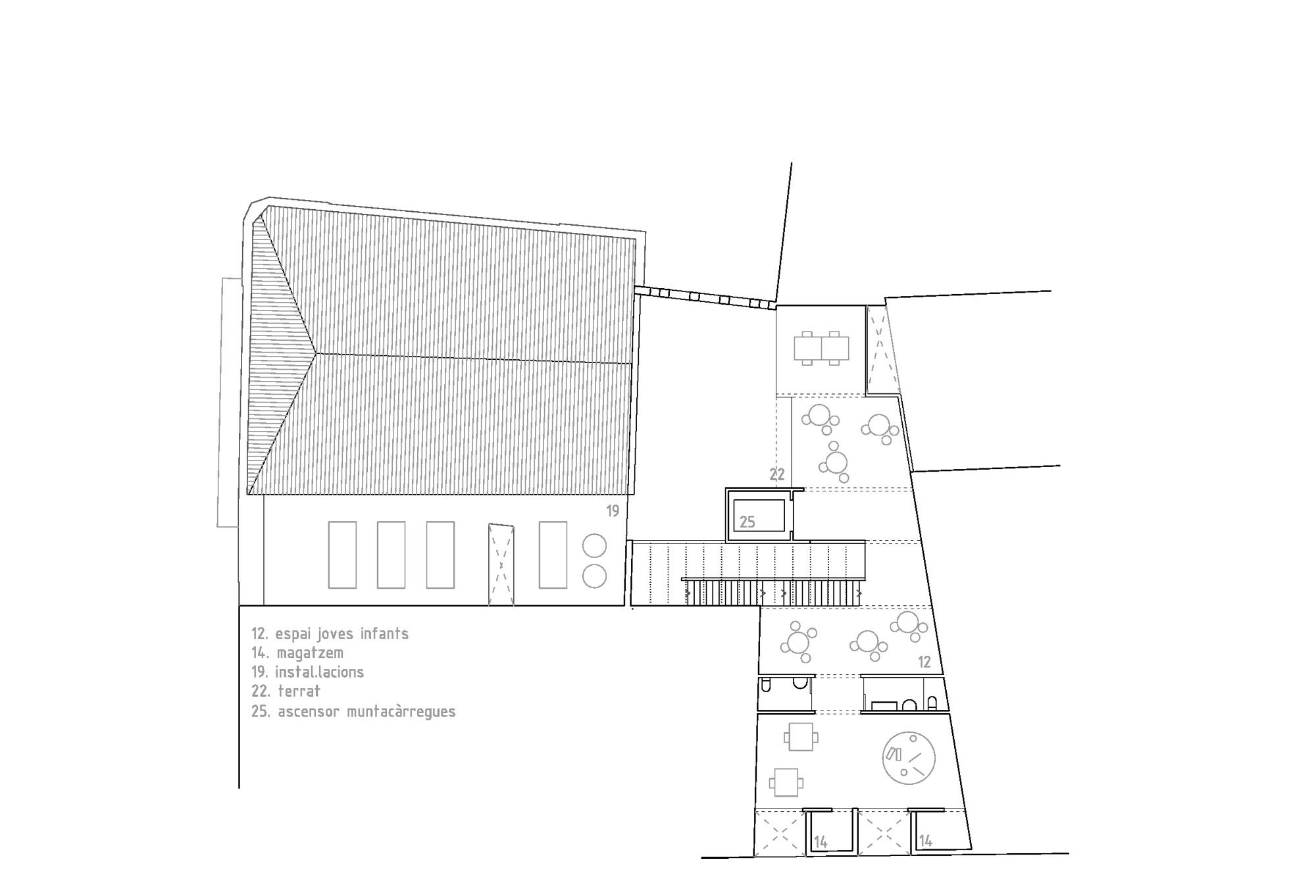
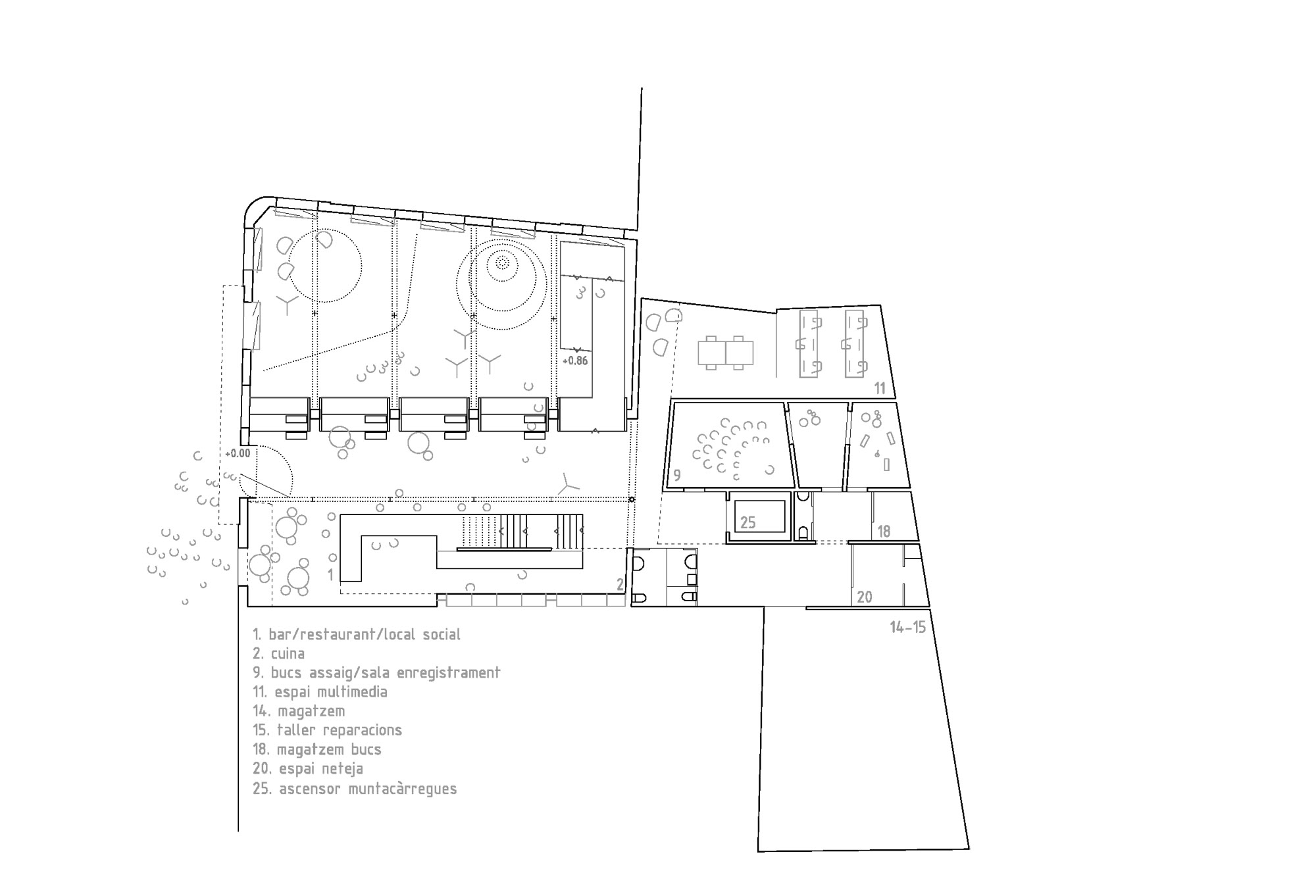
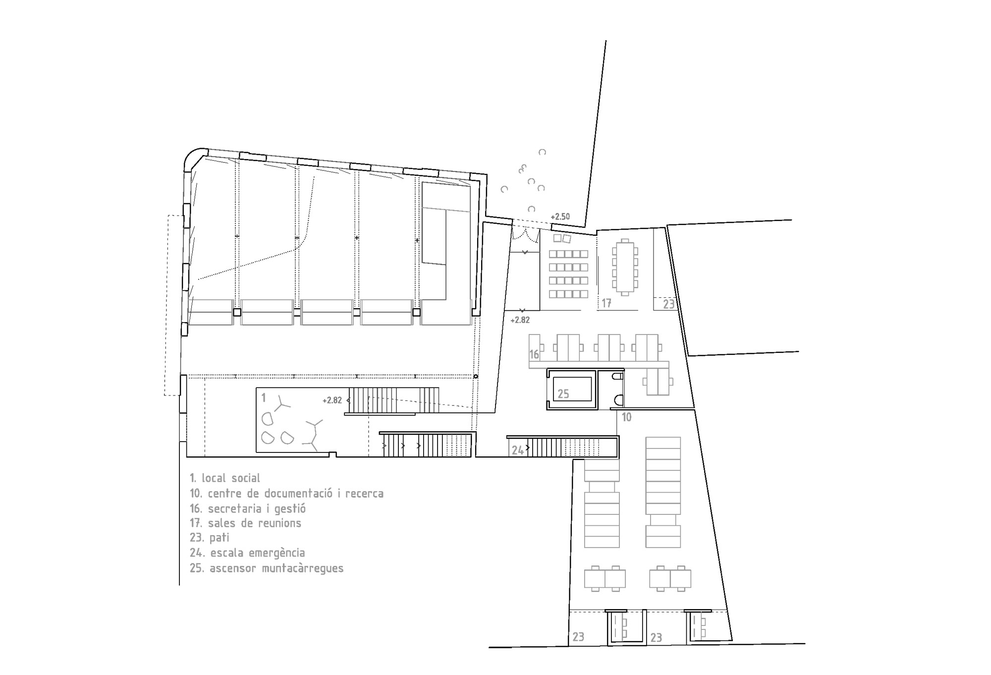
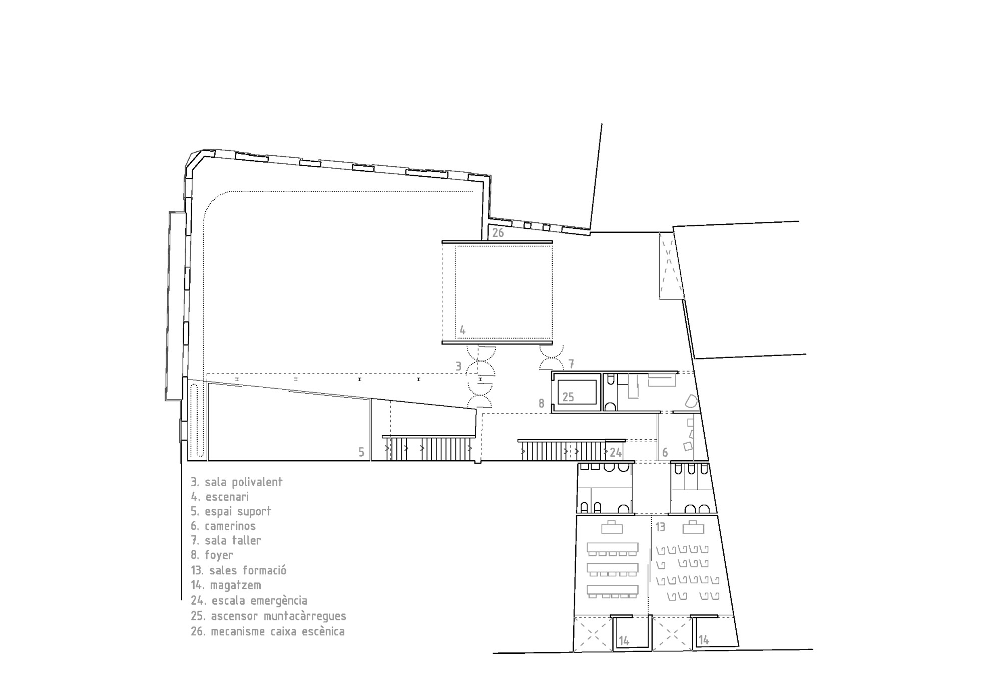
A banda dels objectius urbanístics, arquitectònics i socials propis del projecte, la proposta conté els següents objectius tècnics:
– Reducció del 50% dels residus d’obra mitjançant el seu reciclatge.
– Elecció de materials de baix impacte mediambiental (Reciclats, certificats, no – contaminants).
– Assolir la qualificació d’eficiència energètica B.

0725-AQ4-BCN.ES-2012 — Posted in 2012 — Explore more projects on cultural and cultural center — Climate: mediterranean and temperate — Coordinates: 41.372899, 2.136758 — Team: Ibon Bilbao España, Jordi Campos Garcia, Caterina Figuerola Tomás, Carlos Gelpí Almirall — Collaborator: Claudia Roca, Albert Casas, Gabriel Bonis — Views: 5.141