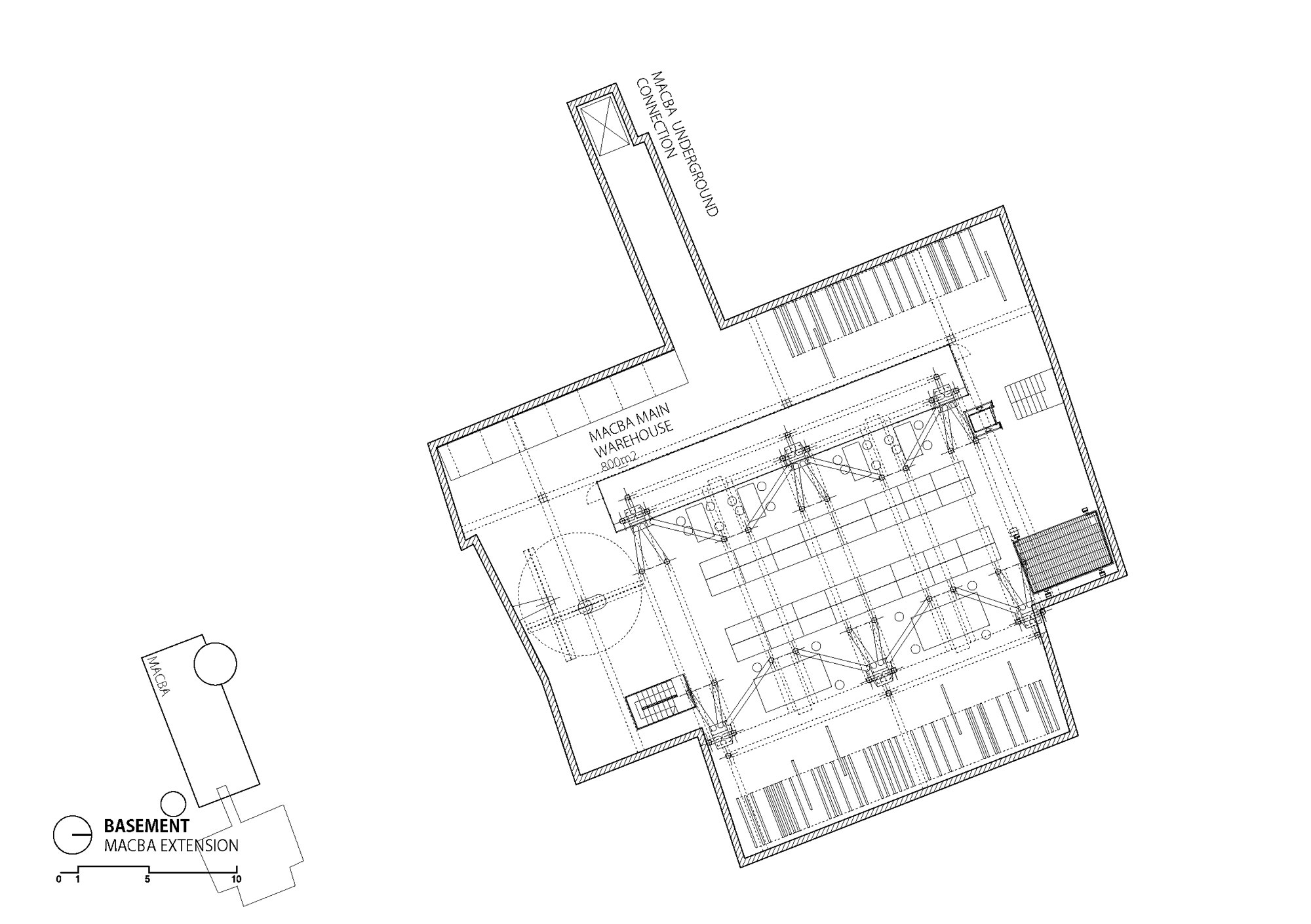
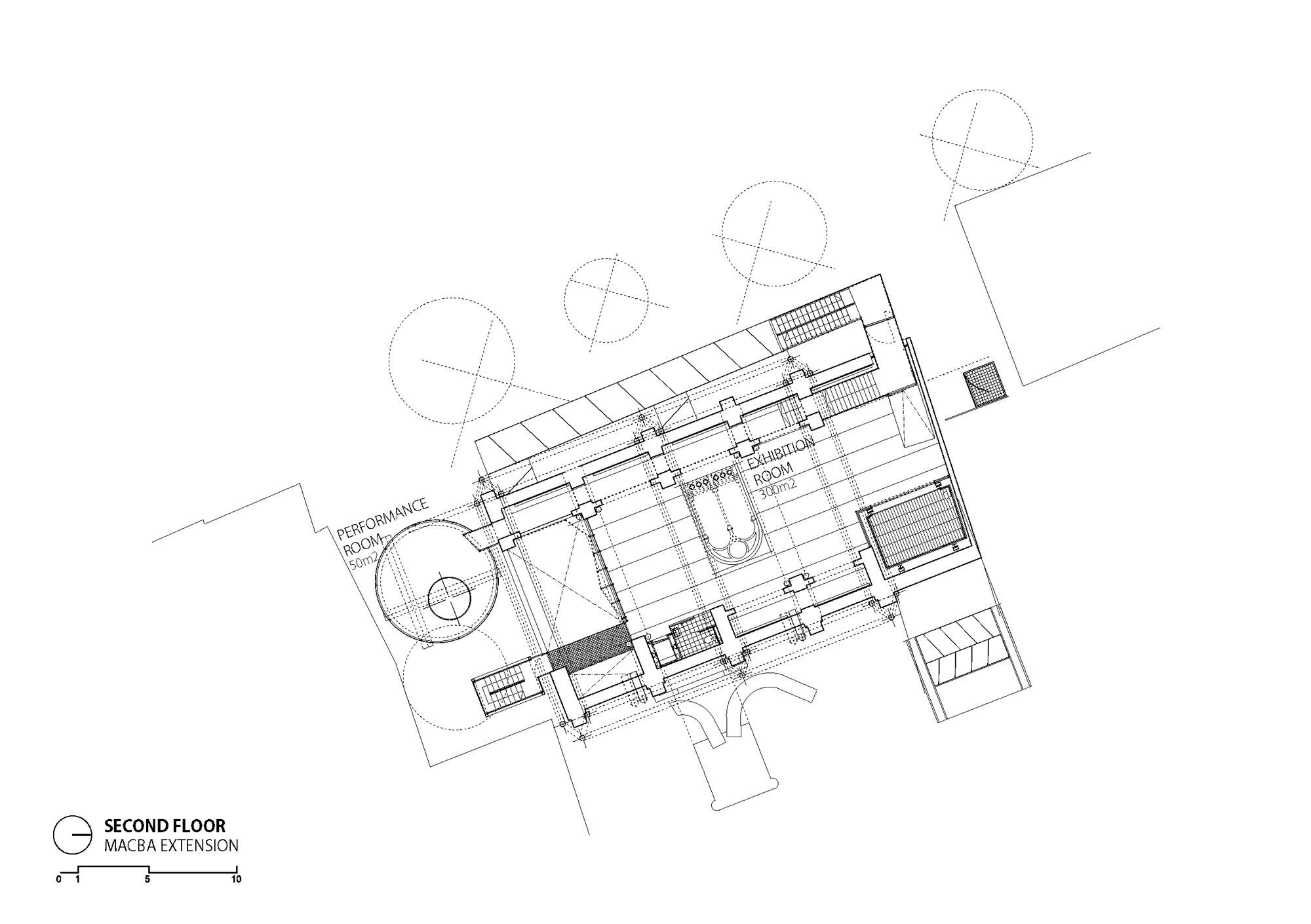
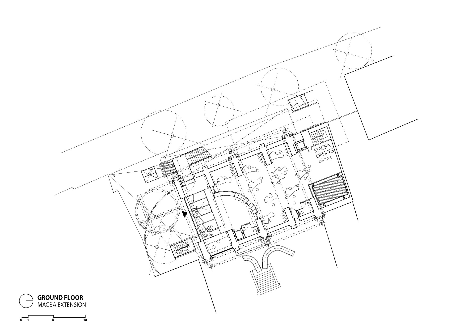
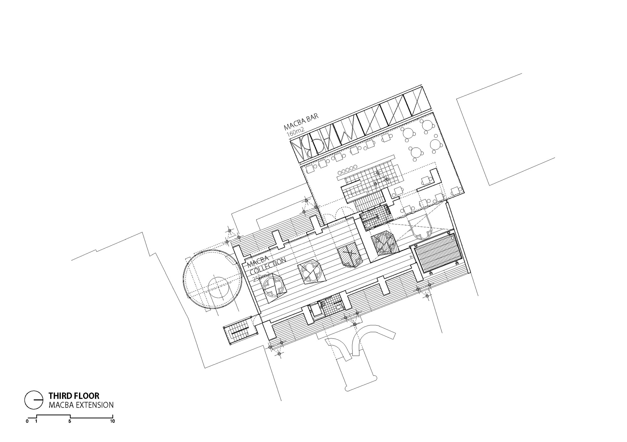
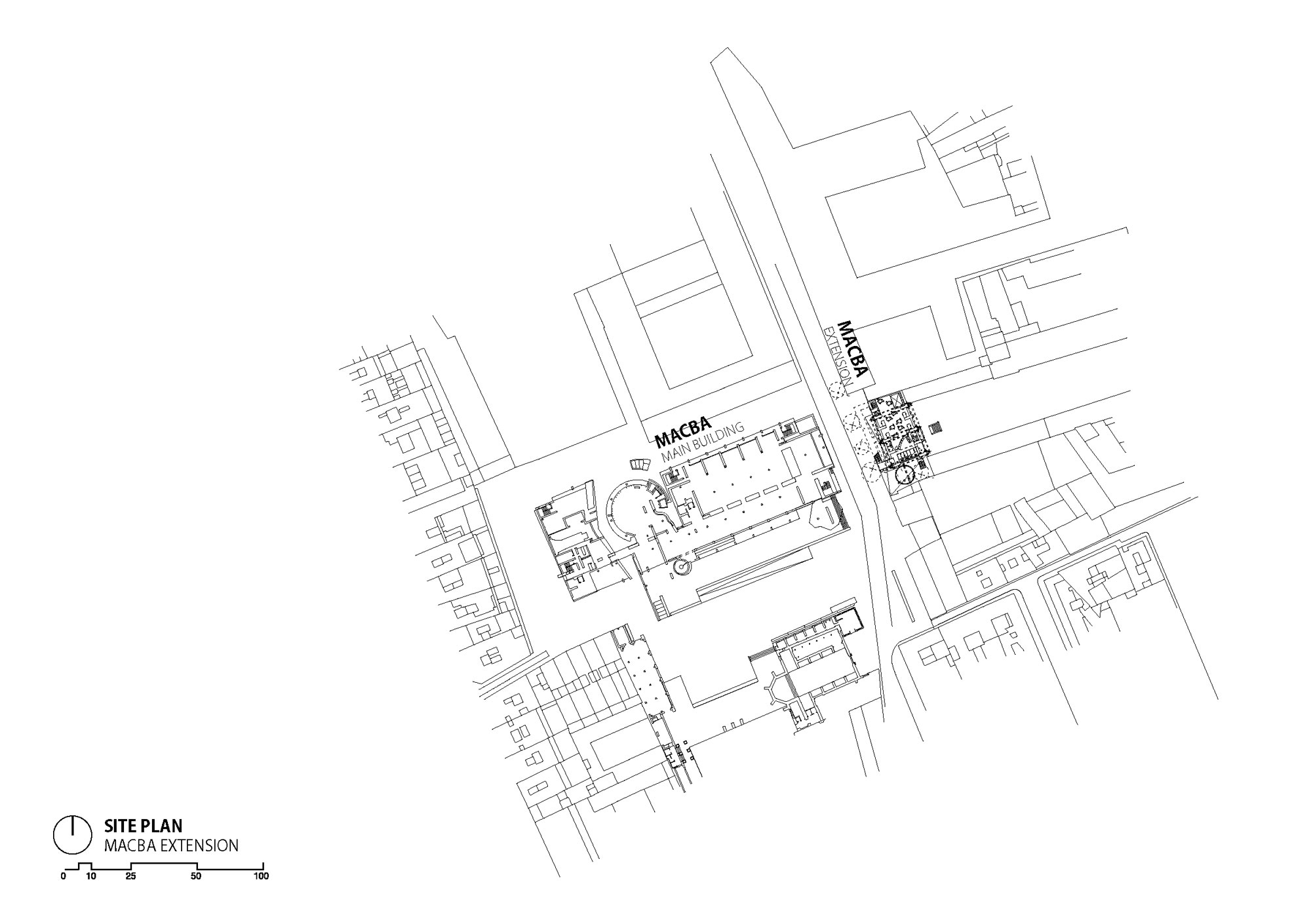
MACBA museum extension is a proposal by Subirana / de la Red for MACBA designed in 2013. It is located in Barcelona Spain in an old town setting. Its scale is medium with a surface of 2.200 sqm. Key materials are metal and wood. Concepts such as adaptable reuse extension flexibility lightweight structure organic and structural praise are explored.

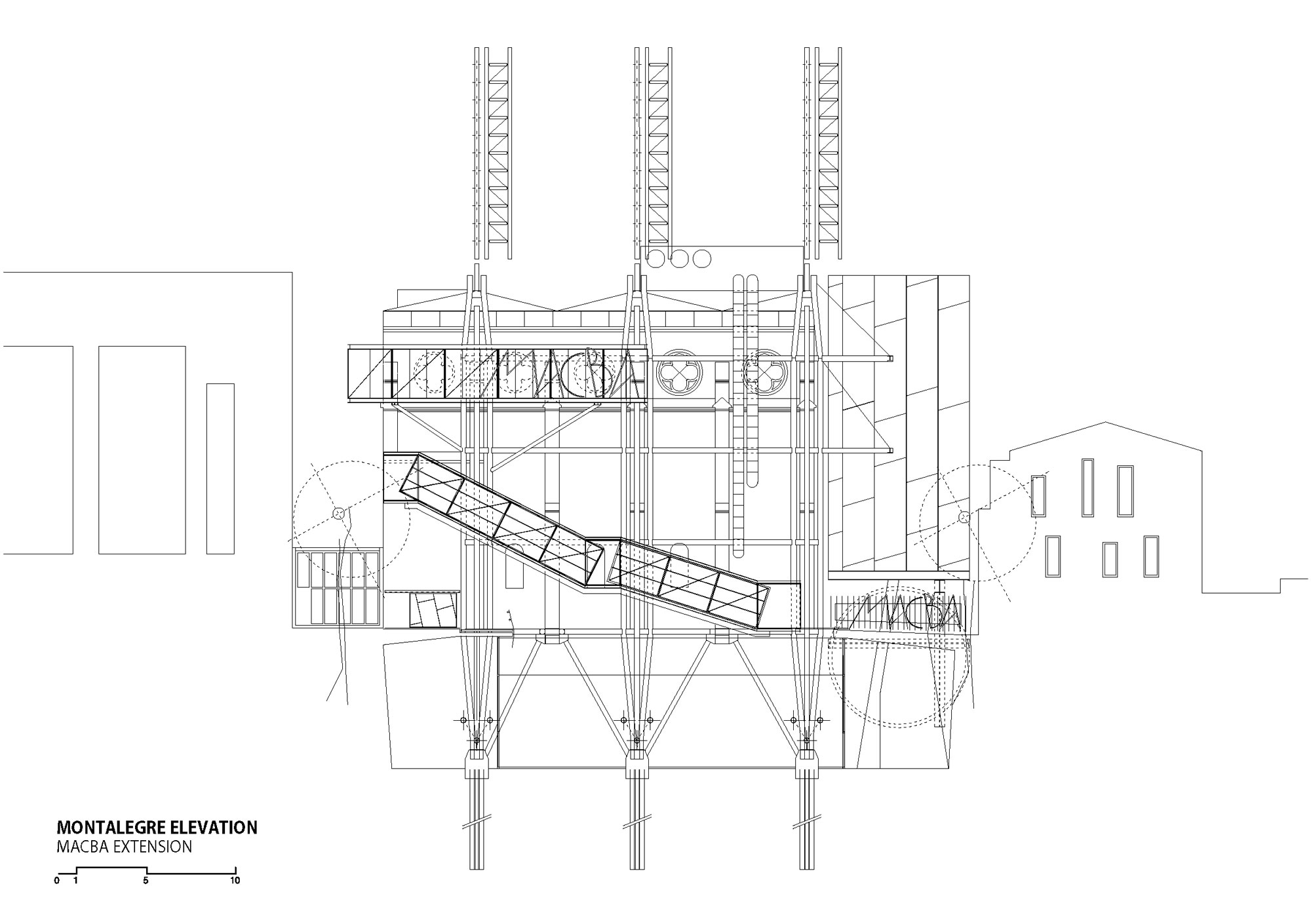
The first unequivocal is talking about old and new. The built form has a warm and complex relation with time. It is a back and forth. Demolishing is not the unique solution. The new constructions overlays the existing ones like a prosthesis. The intervention acts on the church, without touching it. The new structure makes possible the museum extension requirements and that the church stands on its own. The overlay of the distinct moments thought time show the spectacle of possibilities.

0932-SDR-BCN.ES-2013 — Posted in 2014 — Explore more projects on cultural and museum — Climate: temperate and mediterranean — Coordinates: 41.383532, 2.167552 — Views: 5.060