Mercado de abastos de Roquetas de Mar is a finalist proposal by Gustavo Vitores for Ayuntamiento de Roquetas de Mar designed in 2014. It is located in Roquetas de Mar Spain in an outskirt setting. Its scale is medium. Key materials are concrete and wood. Concepts such as adaptable reuse and lightweight structure are explored. Review the 8 proposals for the same competition.

El Mercado de Abastos en Roquetas de Mar se sitúa en el límite de la ciudad tangente a la carretera de Alicún, actualmente en desuso pero siendo un futuro foco urbano importante en el eje conector entre la Estación de Autobuses, el Pabellón deportivo Infanta Cristina, la Plaza de Toros, el futuro parque de los Bajos. El edificio del arquitecto almeriense Placido Langre Granade en 1976, se zonifica en dos áreas, el mercado bajo la gran cubierta y el volumen anexo de servicio. La disposición en planta de los antiguos puestos en el perímetro  seguían una tipología tradicional de los mercados de la época como actividad que se desarrolla hacia el interior, opacos al exterior. La imponente cubierta de piezas de hormigón prefabricado de sección curva es el principal elemento singular del edificio por una razón estética, constructiva y funcional, jerarquiza el interior del mercado y se hace presente en la ciudad de forma icónica. La carpintería de semicírculos y rejas metálicos en los huecos del cerramiento le da singularidad a las fachadas, acompasando los arcos de forma convexa a los de la cubierta contrastando pesadez y ligereza.

La fachadas quedan conformadas de forma heterogénea por el programa interno del mercado en desuso y el entorno inmediato, con volúmenes discontinuos en la plaza Norieta y frente plano en los cerramientos Este y Oeste. La dimensión del edificio, la opacidad de la cubierta y la reducida proporción de huecos en tres de las fachadas dificultan la entrada de luz natural en el interior del mercado. Las intervenciones a lo largo del tiempo han provocado parásitas protuberancias volumétricas en el interior y exterior del mercado, cambiando la imagen del equipamiento, aunque se ha conservando el elemento singular principal (la cubierta), gran parte de las carpinterías, y la fachada que ya no responde a la situación existente.

Propuesta

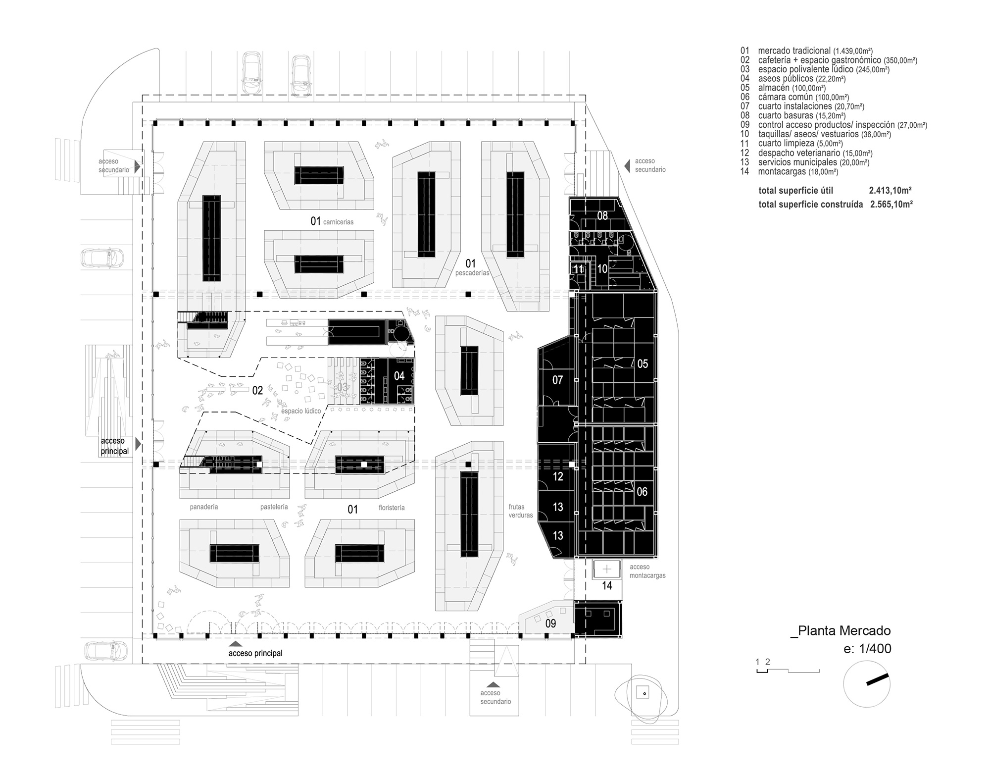
”Mantener el carácter» recuperando la esencia e identidad formal de la cubierta y la estructura como elementos singulares principales; reutilizando las carpinterías metálicas como elementos singulares secundarios; y reformar el volumen de servicios de almacén en la calle Dr. Osorio Martínez, accesos de rampas y escaleras, y la solera interior del mercado. «Derribo» de elementos no singulares, como los volúmenes anexos en la fachada Oeste que parasitan el edificio, la fachada hacia la plaza Norieta, los cerramientos de la fachada Este y Oeste, y los tabiques interiores de reformas del edificio. ”Transparencia» y liberación en fachada, que permita la entrada de luz natural en su máxima superficie, y una nueva conexión de apertura entre el equipamiento y el espacio urbano. «Nueva configuración» de mercado: desarrollando el programa en «paquetes volumétricos o muebles» (puestos de mercado y espacio lúdico), como piezas de contraste y generación de diferentes espacios característicos, que se aíslan de la fachada y de la estructura existente para mantener la esencia espacial; «Alineación y dirección» de las parcelas siguiendo los ejes del edificio y de las ejes cardinales para generar chaflanes que permiten una mejora de la movilidad; «Flexibilidad» pudiendo utilizar el espacio lúdico y el espacio de mercado de forma independiente, disponer de espacios burbuja o de respiración en el acceso al edificio y el espacio lúdico, y modificar la configuración de los puestos de forma libre por el vendedor teniendo la posibilidad de aumentar los espacios libres para un evento; El espacio lúdico se convierte en «referencia espacial», con una planta primera de uso flexible, grada-escalera o mini auditorio, cafetería, gastro-bar, artesanía…, siendo el corazón del proyecto.

La fachada transparente se conforma en tres capas: carpintería de madera y cerramiento de vidrio, carpintería de acero existente como parasol, y la propia volumetría del programa interno creando diferentes profundidades a la composición de fachada desde el exterior, y aumentando la sensación de estar en un espacio público abierto. Las carpinterías son módulos de madera microlaminada prefabricada de diferentes alturas, sección 8x20cm en todas las fachada, 8x30cm en fachada Sur, y vidrio de templado 6/12/6. El cerramiento de vidrio se hace presente en las cuatro fachadas: en la fachada Este completa 4 módulos entre pilares de suelo a techo (para el resto se reutiliza las puertas existentes), en fachada Sur la carpintería se adapta a la distancia entre pilares incorporando las puertas y rejas existentes, en fachada Oeste se utiliza el mismo concepto que en la opuesta en la totalidad de huecos, y en la Norte se produce el mismo caso que en fachada Sur con carpinterías de menor altura colocadas sobre el volumen existente de servicios. La fachada se coloca por la cara exterior de la estructura, facilitando la colocación y modulación, siendo la estructura en espectador del nuevo cerramiento. La materialidad de fachada en los volúmenes de servicio con mortero monocapa de cemento y cal en tono gris. Los huecos de las puertas de almacén serán cerrados con ladrillo y posteriormente revestidos.

La estructura sin las fachadas existentes se hace presente como el gran apoyo de la cubierta cuya sección se potencia en los extremos. La cubierta adquiere aún más peso en el proyecto, por ello se propone exenta de instalaciones, y harán tareas de limpieza de la pintura existente. La solera actual se sustituirá por una nueva de 20cm y cota -50 cm respecto la actual, para reformar el sistema de saneamiento y servir de base de un pavimento técnico que incorporará todas las instalaciones del mercado. Los puestos están formados por módulos que se repiten en planta, uno rectangular y otro irregular que permite oxigenar los cruces entre los pasillos del mercado. Cada puesto se forma de dos, tres o cuatro módulos según necesidades, y forman agrupaciones delimitadas por una línea perimetral en el pavimento técnico de paneles de acabado en microcemento. Cada agrupación dispone de mueble fijo o núcleo (cuya cubierta está inclinada a dos aguas para contrastar con la horizontalidad del edificio existente), y muebles móviles o mostradores móviles (cuya configuración es flexible dentro de los módulos).

La fachada de los muebles fijos es de listones de madera de diferentes anchuras y tonalidades de colores sobre tablero aglomerado (Puestos y Volumen de servicios), y se incorpora acero inox en la parte de trabajo de cada núcleo del puesto. Los mostradores móviles se realizan con listones de madera pintados, con revestimiento de plástico, vitrina de vidrio o acero inox según el tipo de uso (mueble estándar, pescadería, carnicería, gastronomía, y frutería), con disposición de diferentes colores que ubican el tipo de producto de venta en el espacio mercado. El espacio lúdico se materializa a su vez con una cinta conceptual de listones de madera a modo de barandilla en la planta 1, dando calidez al espacio. La cafetería y la grada-escalera son de pladur y acabado en pintura plástica de color azul cian por concepto de imagen corporativa de la ciudad y dinamismo espacial. Cada mueble fijo incorpora servicio básicos, frigorífico, lavabo, horno según el uso, luminarias… La estructura interna es de perfiles cuadrados de acero galvanizado de 50x50mm y soportan una subestructura de perfiles ligera que vuela hacia el perímetro de parcela para incorporar luces sobre los mostradores, y un cerramiento con estores para cada módulo del puesto. Esta agrupación en paquetes permite simplificar la organización de las instalaciones del edifico, que en cada núcleo incorpora instalaciones de servicio y conductos de climatización del mercado que llegan por suelo técnico.

Los accesos al edificio se producirán por dos puntos principales existentes y con posibilidad de ser independientes: el espacio lúdico (el centro de la fachada Sur) y el actual acceso (esquina Sur-Este). Se han considerado estos accesos principales respecto al eje conector entre la Estación de Autobuses y los Bajos, la mejor orientación con el casco urbano, y el propio uso y disposición del edificio, mediante escaleras-rampa. El resto de accesos se mantendrán. La señalética se incorporará en cada puesto sobre la subestructura de forma puntual, y en los mostradores móviles. La señalética del edificio será mediante serigrafía sobre los vidrios. La iluminación ambiente interior y exterior se realizará de forma indirecta con líneas de luz en vigas que bañarán de luz de forma degradada la convexidad de los arcos de la cubierta. En el caso de los puestos las luces puntuales se servirán de la subestructura que vuela desde los núcleos de los puestos. La climatización del edificio se produce por suelo técnico en la fachada y por el techo de los núcleos de los puestos, y con sistemas pasivos de ventilaciones cruzadas. Sobre el zócalo perimetral del edificio en fachada Sur y Oeste se propone colocar vegetación con wetland para aprovechar el agua de la lluvia.

0874-GUV-LEI.ES-2014 — Posted in 2014 — Explore more projects on commercial and market — Climate: temperate and mediterranean — Coordinates: 36.767190, -2.614874 — Views: 7.768