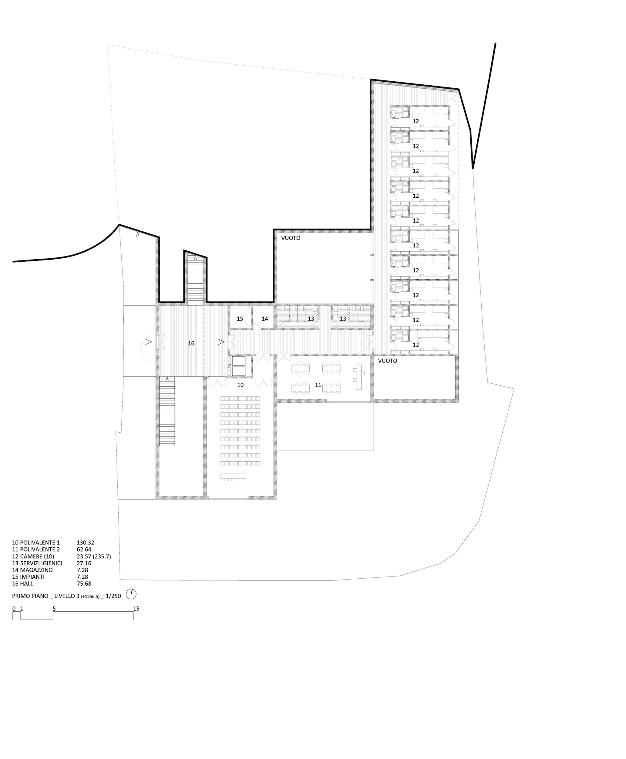
Multifuncional Center Sappada is a proposal by HGO for Municipality of Sappada designed in 2011. It is located in Sappada Italy in a rural setting. Its scale is medium with a surface of 3.463 sqm an estimated budget of 4.967.583 € and a ratio of 1.434 €/sqm. Key material is wood. Concepts such as sloped roof and stripe are explored. Review the 2 proposals for the same competition.

La mirada hacia el lugar se antoja necesaria aún más en este caso. Inmerso en un paisaje de alta montaña a los pies de los montes Dolomitas, Sappada es un asentamiento disperso, con una tipología edificatoria muy clara: edificios de cierta envergadura con cubierta a dos aguas, con zócalo pétreo sobre el que se construye en madera o enfoscado. La orografía de la parcela enseñaba pendientes pronunciadas, que desde el principio entendimos que tenían que ofrecer la solución, en lugar de ser un problema añadido. A la cierta dificultad del proceso se une un programa heterogéneo con unas premisas ciertamente claras respecto a su funcionamiento. Básicamente eran cuatros grandes paquetes funcionales: centro de día para mayores, residencia de estudiantes, escuela infantil, y aparcamiento. Uno de los puntos de partida fue unificar en un único hall escalonado el acceso a los distintos usos. Una espina dorsal funcional que conecta lateralmente en cada planta un uso diferente. Un espacio en cascada que ofrece miradas cruzadas hacia el imponente paisaje alpino.

El programa y la pendiente de la parcela convergían en la resolución de la implantación, ya que dichas diferencias altimétricas permitían escalonar los tres programas diferentes, con accesos peatonales directos independientes cada uno de ellos, aparte del acceso principal común. Del mismo modo, el escalonamiento en el terreno resolvía la necesidad de generar dos amplios espacios libres sensiblemente planos: uno delante para terraza y juegos estivales de adultos, y otro detrás, donde el edificio reducía su escala, como patio de juegos infantil. El escalonamiento del programa no se iba a resolver aterrazando, ya que la arquitectura del lugar llamaba la atención respecto a la forma de terminación de la edificación: inclinación en cubiertas, de sentido común en zonas nevosas.

0776-HGO.OLI-BLX.IT-2011 — Posted in 2013 — Explore more projects on cultural and mixed use — Climate: humid subtropical and temperate — Coordinates: 46.567208, 12.686867 — Team: Davide Olivieri, Luca Cerullo, HGO (Juan Carlos Herrera, Fernando Garrido) — Collaborator: Paolo Maselli, Francesco Stefanini, Lina Samudio Diaz, Studio A31 Work-team — Technical: Paolo Censi — Views: 5.352