Municipal Building Oude Dokken is a proposal by Architectenbureau Bart Dehaene for City of Ghent designed in 2015. It is located in Ghent Belgium in a seaside and industrial setting. Its scale is large. The concept of opening is explored.

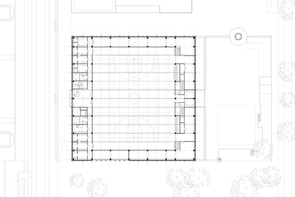
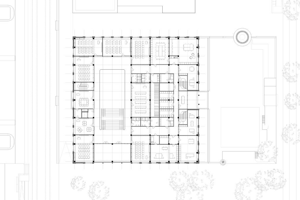
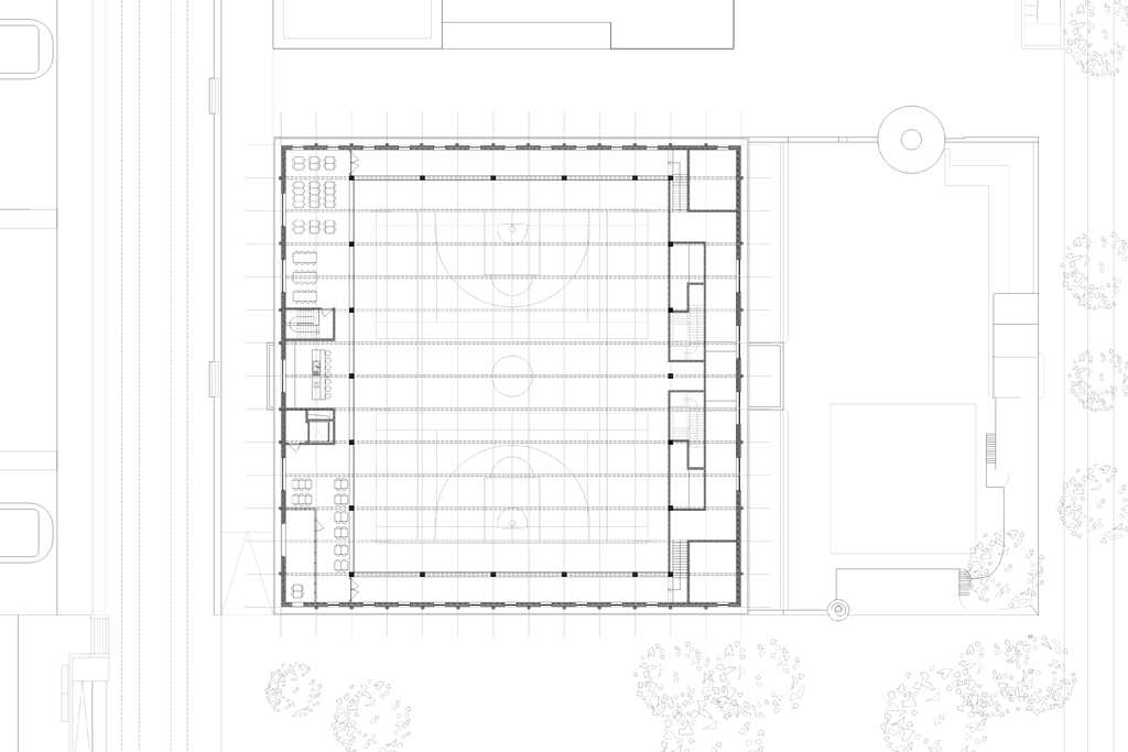
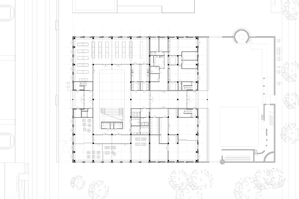
The new Municipal Building, combining a primary school and a public sports hall, is planned in the heart of the master plan for the Oude Dokken (‘Old Docks’) in Ghent. As such it becomes part of a recently started large-scale urban development with predominantly residential blocks. It will form a guiding element in the operation of the new district. Following the master plan of OMA, the development is brought into balance with the urban fabric along the other side of the dock. The rich and rough history of urban growth has here led to a characteristic architecture of large-scale brick buildings such as the SPE, the ACEC-site and Handelsdokcentre. In analogy with the rich patrimony, we see the new Municipal Building as a solid monolith, which provides a counterweight to the industrial mastodons. The scale between flat and factory will lend the new Municipal Building the necessary different status as central point in the new urban development plan. To give maximum benefit of views over the water and skyline of Ghent the building is placed along the water using the full 40-meter wide field width. To guide the transition between water and building a slightly raised terrace zone is foreseen, it is connected to the new urban boulevard. The depth of the building is approximately 39 meters as to align the new Municipal Building with the new urban development on the North side. Thus we obtain a quasi-square building that has a certain weight, offers the necessary presence and moreover optimally fits the master plan.

The continuity of the porous paths through the development plan is provided over our site via an outdoor playground located between the new Municipal Building and the Koopvaardijlaan. As such a link is established between het new park and the new market square. The playground thus marks the crossing of different transport mode and different degrees of public space. Unlike the rigid boundaries found everywhere in the master plan of the new development we have specifically chosen to design the playground a spatial mediator and social anchor point. It doesn’t just offer its different users a passage but also provides them with a place to stay. As the new Municipal Building is a public building, the facade and choice of materials needs to confirm/underline this identity. To architecture is solid and serene, without any ‘childlike’ additions to make it more of a school. Articulations in the facade are made in relation to the rhythm of the column grid that forms the rational structure of the building. In analogy with many other municipal or public buildings in Ghent – Vooruit, Museum of Fine Arts, … – the volume with be erected in a distinguishing yellow tinted masonry. This is to be combined with gray architectural concrete, bronze exterior joinery and mobile blinds in a fresh colour.

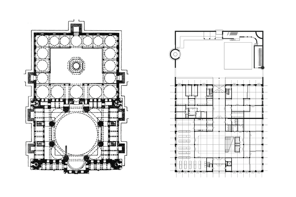
In order to also anchor the new Municipal Building to the new site development several accents can be found. For example alongside the park the facade is broken by a two floor high indoor winter garden, which also acts as a devise to regulate the buildings temperature. And the side of the new market square is marked by a high chimney which acts as a landmark, part of the playgrounds boundary and which is also a outdoor kitchen and social gathering place. The design of the playground as spatial and social mediator is worked out in collaboration with artist Philip Aguirre Y Otegui. In analogy with one of his earlier works «Théâtre Source» a place is made to do, see and say, as Philip puts it. The layout is inspired by the designs of the Süleymaniye Mosque by Arab master Mimar Sinan. A walled forecourt provides for an intimate meeting space. Following this model the playground is being surrounded along its contours with a porous wall, which has alternating thicknesses in which functions can be accommodated, as bicycle storage for example. Its design with gates, ramps, stairs, niches, green, … makes it look as if it were an organically grown rampart. The result is a composition of elements form the history of architecture, which merged together, generate new abilities and functions. The yellow masonry of the facade is extended over the rampart. The same goes for the floor, which is extended, from the outside to the inside along the central axis towards the atrium. As such the boundary between outdoor and indoor becomes vague. The building and the playground become a whole, a new public Municipal Building that sets a different tone and as such functions as the central point of this new urban area.

1264-ABD-GNE.BE-2015 — Posted in 2015 — Explore more projects on education and school — Climate: oceanic / maritime and temperate — Coordinates: 51.065168, 3.733142 — Collaborator: Geurst & Schulze Architecten, Sileghem & Partners, Bureau Partners, EA+ — Consultant: Philip Aguirre y Otegui — Views: 4.587