Museo delle cantine vinicole a Cornaiano is a thrid prize proposal by GSMM Architetti designed in 2014. It is located in Cornaiano Italy in an old town setting. Its scale is medium. Key materials are concrete and wood. The concept of sloped roof is explored.

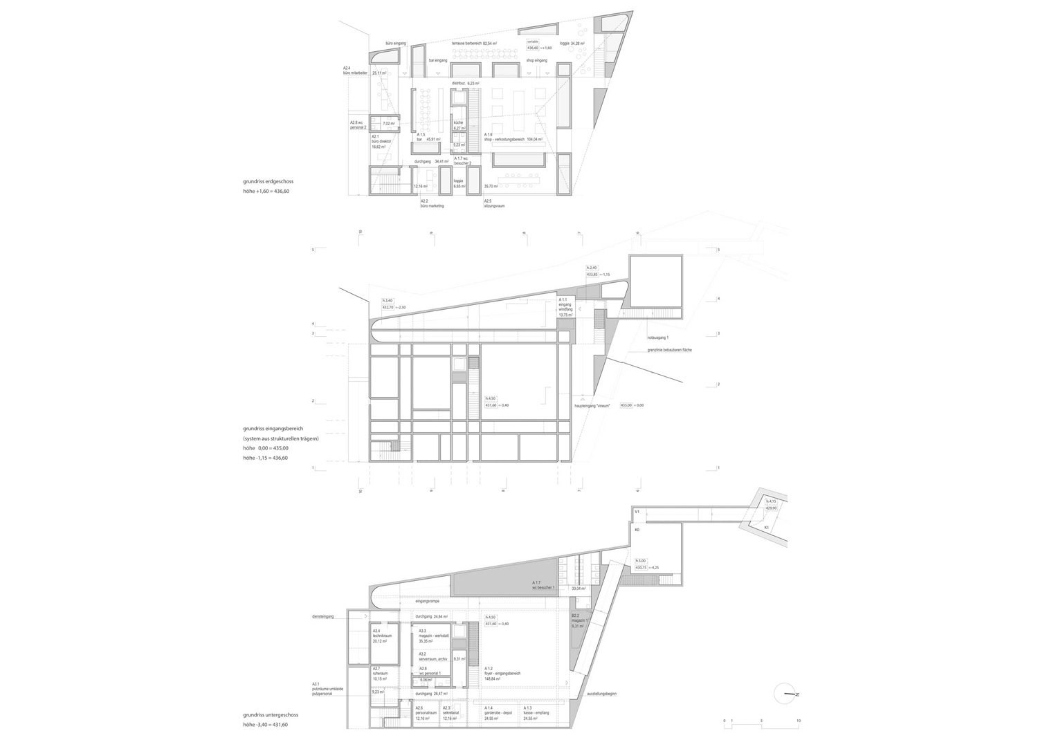
La proposta si colloca all’interno del lotto con una scelta precisa dettata dal rapporto di continuità tra le sue proporzioni e il contesto edificato esistente. L’aspetto volumetrico dell’edificio d’ingresso del museo instaura un dialogo con le architetture esistenti attraverso forme che ripropongono la scala anche domestica dell’intorno. Allo stesso modo la costruzione, attraverso il suo disegno e i materiali proposti, cerca una nuova e differente identità, che viene delineata con l’utilizzo di materiali correnti ma in parte sfruttati con un senso eccezionale. La strategia del progetto si fonda sulla unitarietà degli spazi e allo stesso tempo sulla diversificazione delle atmosfere proposte. Il piano interrato è organizzato secondo un sistema ortogonale di ampie travi che suddividono in modo regolare gli spazi e permettono di organizzare una pianta estremamente flessibile. Lungo le travi è collocata l’illuminazione naturale attraverso camini di luce presenti al piano superiore in forma di volumi che organizzano gli spazi e il programma al piano terra. Proseguendo verticalmente verso la luce i volumi diventano la struttura di sostegno della copertura a falde.

1330-GSM-IT-2014 — Posted in 2015 — Explore more projects on cultural and museum — Climate: humid subtropical and temperate — Team: Giorgio Santagostino, Monica Margarido — Co-author: Marchi Architects — Collaborator: Gabriele Boretti, Fulvio Capsoni — Consultant: GAP PROGETTI (Alessandro Gasparini) — Views: 5.933