Naturmuseum St. Gallen is a proposal by Markus Schietsch for Stadt St. Gallen designed in 2010. It is located in St. Gallen Switzerland in a park setting. Its scale is medium. Key material is metal. Concepts such as nature stratification and lightweight structure are explored. Review the 3 proposals for the same competition.

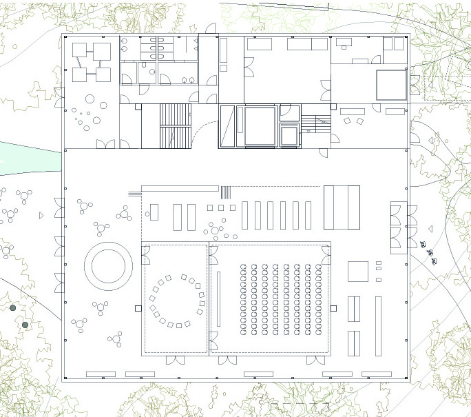
The Museum of nature is conceived as an open and transparent structure with a large-span and flexible construction. In contrast to a classical museum with a layout based on added rooms, this museum is organised on completely open floors on different levels. Each level has a particular relation to the outdoor space and a specific and unique exhibition typology. The main showroom is designed as an open space glazed towards the newly planted forest that surrounds the museum. Its only partition is the central core and four steel columns. Within this space the visitor does not experience the nature-exhibits captured in a human-scale space, the artefacts float in a scale-free space which is related to nature.

0837-MSC-CH-2009.10 — Posted in 2014 — Explore more projects on cultural and museum — Climate: oceanic / maritime and temperate — Coordinates: 47.439435, 9.408648 — Structural engineer: Dr. Lüchinger + Meyer Bauingenieure AG — Landscape: Lorenz Eugster Landschaftsarchitektur und Städtebau GmbH — Views: 2.862