Naturmuseum St. Gallen is a completed project by Michael Meier Marius Hug for Stadt St. Gallen designed in 2010 and completed in 2016. It is located in St. Gallen Switzerland in a park setting. Its scale is medium with a surface of 5.600 sqm. Key material is concrete. Nightnurse images collaborated as visualizer. Concepts such as stripe zenithal light and nature are explored. Review the 3 proposals for the same competition.

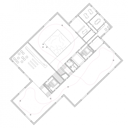
Das Gebäude des Neuen Naturmuseums St. Gallen erweitert das bestehende Ensemble öffentlicher Bauten und Anlagen der Kirche St. Maria Neudorf und des Botanischen Gartens am östlichen Rande der St. Galler Kernstadt. Im Dialog mit der sakralen Präsenz der Kirche St. Maria und dem funktionalen Ausdruck der Gebäude des Botanischen Gartens, positioniert sich das Neue Naturmuseum als Gebäude mit repräsentativem Charakter und funktionalem Ausdruck. Durch die städtebauliche Positionierung und die steinerne Materialisierung wird das Museumsgebäude gegenüber der Rohrschacherstrasse und der Kirchenanlage als visueller Bezugs- und repräsentativer Orientierungspunkt wahrgenommen. Gleichzeitig ordnet sich der Neubau der Silhouette der Kirche unter und verweist mit seiner nach Aussen sichtbaren Dachstruktur auf die funktionale, zurückhaltende Sprache der Gebäude des Botanischen Gartens.

Das dreigeschossige Museumsgebäude besetzt die vorhandene Bauparzelle an der Rohrschacherstrasse fast vollständig. Es entsteht zwischen Kirche und Museum ein räumlich gefasster, sanft geneigter Ausstellungsraum unter freiem Himmel, der Teil der zukünftigen Wegführung vom Museum zum Botanischen Garten wird. Das neue Gebäude verzahnt sich mit seiner Umgebung über vier präzis formulierte Einschnitte an den Gebäudeecken, die die unmittelbar vorgefundenen Gegebenheiten stärken und die ihnen zugeordneten Funktionen – wie beispielsweise ein ruhiger Aussenraum für das Museumscafé, ein repräsentativer Vorplatz zur Strassenseite und eine diskrete Anlieferung im rückwärtigen Bereich – mühelos aufnehmen. Die öffentlich zugänglichen Museumsräumlichkeiten bestehen aus einer offenen Raumfolge, deren Auftakt die Verbindung der beiden Museumseingänge vom Entrée auf der Strassenseite mit dem Foyer auf der Gartenseite bildet. Der Ausstellungsbesucher folgt dem Museumsrundgang über zwei, um ein halbes Geschoss versetzte Ebenen vorbei an der Wechselausstellung in den Reliefraum.

Dieser erinnert durch seine eindrückliche Höhe und räumliche Präsenz in Verbindung mit der darüber liegenden Galerie an Ausstellungsräume klassischer Museumsgebäude des 19. Jahrhunderts. Er ist das Herz- und Verbindungsstück der beiden Ausstellungsgeschosse und bietet attraktive Möglichkeiten zur Installation und Präsentation grösserer Exponate. Das zweite Ausstellungsgeschoss bietet einen grossen, stützenfreien Oberlichtsaal für eine flexible und abwechslungsreiche Ausstellungsgestaltung. Intime Rückzugsorte und museumspädagogische Räumlichkeiten wie beispielsweise Bibliothek und Jugendlabor schaffen eine angenehme, private Atmosphäre und bieten dadurch auch die Möglichkeit zur individuellen Informationsbeschaffung. Die Nähe zum Botanischen Garten ermöglicht es, gemeinsame Veranstaltungen zu realisieren. Besonders für Schulklassen entsteht dadurch ein attraktives Kombiangebot. So entsteht im Osten ein grünes Bildungszentrum, das sich mit den Themen Natur, Naturwissenschaften und Naturschutz auseinandersetzt.

0106-MMM-CH-2009.10 — Posted in 2014 — Explore more projects on cultural and museum — Climate: oceanic / maritime and temperate — Coordinates: 47.439435, 9.408648 — Co-author: Armon Semadeni — Consultant: 2nd West, Rapperswil, Bösch AG, Boxler MSRL, Mebatech AG, AFC Air Flow Consulting AG, Wichser Akustik & Bauphysik AG, Bühler + Scherler AG, Mati AG — Engineer: Synaxis AG — Landscape: Robin Winogrond — Views: 4.332