Neubau Mehrfamilienhaus Küsnacht is a second prize proposal by idA designed in 2015. It is located in Küsnacht Switzerland in an urban setting. Its scale is medium. Key materials are concrete and glass. Concepts such as balcony and central core are explored.

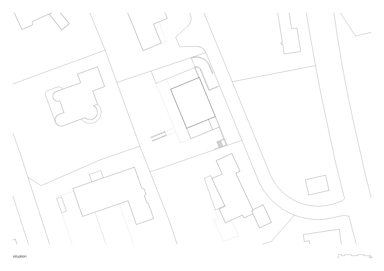
Das Grundstück der Überbauungsstudie befindet sich an steiler Hanglage mit Blick auf den Zürichsee. Der geplante Gebäudekörper ist parallel zur Rebackerstrasse ausgerichtet und orientiert sich über einen Rücksprung des Dachgeschosses klar nach Süden. Das Mehrfamilienhaus beherbergt 4 Wohneinheiten, von welchen zwei als Maisonette-Wohnungen organisiert sind. Jede Einheit verfügt über einen separaten Wohnungszugang von Aussen und ist über den Lift direkt an die Unterniveaugarage angebunden. Der Verzicht auf ein internes Treppenhaus sorgt für ein optimales Verhältnis zwischen Gesamtgeschossfläche und vermietbarer Fläche. Der Ausdruck der Gebäudefigur wird stark von den eingeschriebenen Aussenräumen geprägt. Private Loggias, überdachte Terrassen und Sitzplätze sowie gedeckte Zugangsbereiche spielen mit der Rigidität des in sich ruhenden Betonskelettbaus. Eine flexible Ausfachung der Tragstruktur mittels Holz- oder Glaselementen fördert die gewünschte Atmosphäre von verspielter Gelassenheit.

1521-IDA-CH-2015 — Posted in 2016 — Explore more projects on housing and residential — Climate: oceanic / maritime and temperate — Views: 4.140