Neubau Schulanlage Freilager is a proposal by Beatriz Alés for Stadt Zürich designed in 2016. It is located in Zürich Switzerland in an urban setting. Its scale is medium. Key material is concrete. The concept of grid is explored.

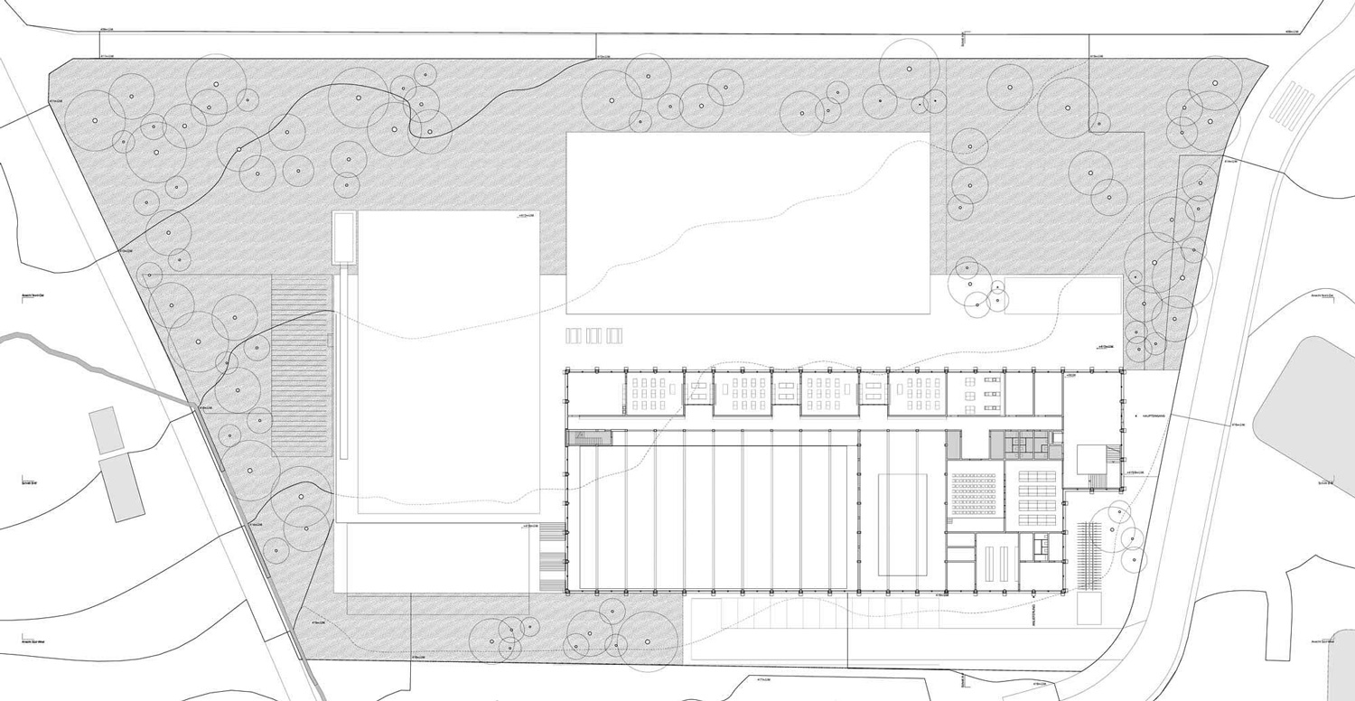
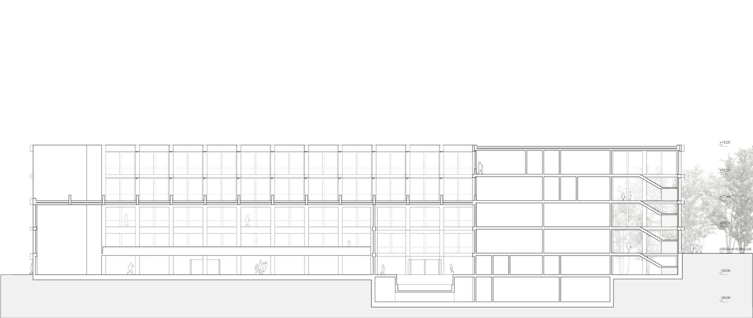
As an answer to the powerful façades of the housing blocks on the north, this proposal unifies in one piece the three required uses: the primary school, the swimming pool and the double sports center. The building is acting as a containment wall in order to create a green corridor between the two sides of the plot with no topographical changes. This park includes the playground and also the access to the sports facilities. Thus, the main façade of the school becomes a quiet background for this natural environment. One can find the access to the school on the southeast side of the volume. The foyer and the stairs create together a space that operates as a hinge between the long body that contains the classrooms, and the volume where the services such as the school cafeteria, the staff room and the music classrooms are placed.

1850-BAA-ZRH.CH-2016 — Posted in 2017 — Explore more projects on education and school — Climate: oceanic / maritime and temperate — Coordinates: 47.378942, 8.487517 — Views: 3.930