Obrador de dramaturgia en Milán is an academic project by Igor Muñoz for ETSA Reus designed in 2016. It is located in Milan Italy in an industrial setting. Its scale is medium. Key materials are brick concrete and metal. Preexistents and Alberto Espinosa collaborated as visualizers. Concepts such as adaptable reuse u shape and courtyard are explored.

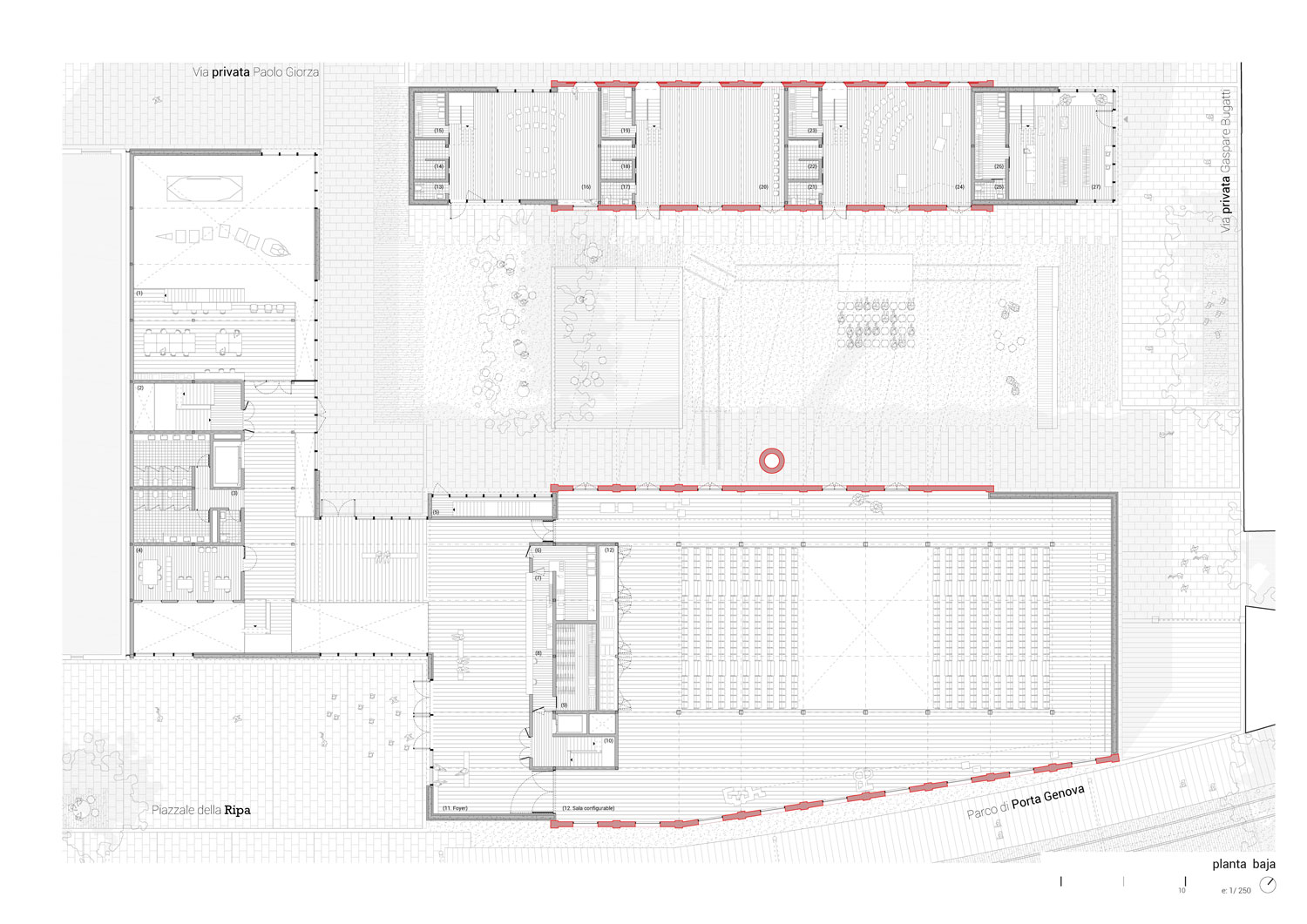
La capital económica de Italia ha ido eliminando todas sus barreras urbanas a lo largo de la historia hasta la actualidad. Hoy día las vías de tren suponen una muralla contemporánea para la ciudad, las cuales casi rodean por completo el centro de la ciudad. La necesidad de regenerar la zona ferroviaria de Porta Genova es primordial para Milán. Actualmente se está instaurando el mayor panorama cultural de la ciudad en esta zona, reutilizando la mayoría de los espacios industriales que se encontraban en desuso. El parque se plantea como una sucesión de historias que conectan la ciudad, donde cada una de las zonas sirve de diferente manera a Milán. La zona noreste del parque se caracteriza por mantener los elementos ferroviarios, manteniendo así la identidad actual del lugar. Por otra parte, se plantea una nueva lámina de agua, donde parte del agua del Naviglio Grande se desvía para ser limpiada por métodos naturales como la fitofiltración. En el espacio central encontramos el nodo urbano que da continuidad a Via Bergognone. Por último, al oeste del parque se plantea una gran zona de praderas y árboles.

Fábrica Zanoletti

La decisión de reutilizar espacios industriales del entorno del parque se debe a la intención de mantener y enfatizar la identidad de la zona, sin necesidad de construir nuevos volúmenes sin ningún tipo de relación con el lugar. Estos espacios existentes nos interesan por el valor paisajístico y de identidad que componen entre todos los edificios industriales.

Obrador de dramaturgia

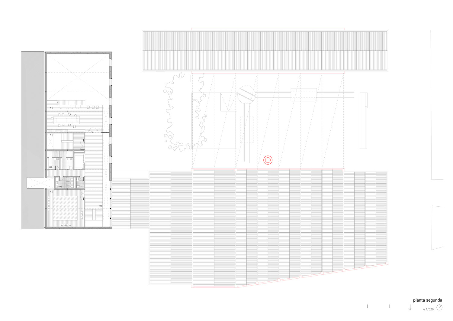
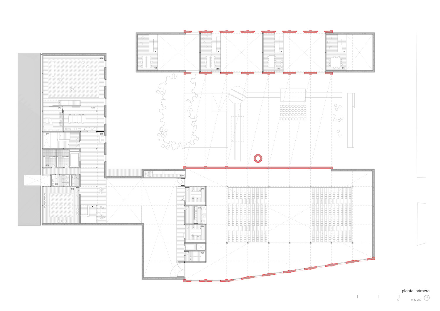
Pese a la importancia del panorama teatral de la ciudad, Milán carece de un espacio teatral contemporáneo y configurable. Sumado a que en la zona se han instalado muchos equipamientos relacionados con las artes escénicas, se decide reutilizar y ampliar la Zanoletti para generar un teatro configurable junto con una serie de espacios docentes. En cuanto la composición de la obra nueva, esta se adapta a los patrones industriales y continúa con el mismo ritmo volumétrico de las edificaciones existentes. La materialidad cerámica de la ampliación se debe a la voluntad de poner en valor la fachada existente integrándola y no sacralizándola.

1668-IMT-MXP.IT-2016 — Posted in 2016 — Explore more projects on auditorium cultural and music school — Climate: humid subtropical and temperate — Coordinates: 45.450681, 9.166747 — Views: 14.292