Radio Télévision Belge de la Communauté Française is a proposal by Lacaton & Vassal for RTBF designed in 2015. It is located in Brussels Belgium in an urban setting. Its scale is large with a surface of 30.547 sqm an estimated budget of 69.930.000 € and a ratio of 2.289 €/sqm. Key materials are glass and concrete. Concepts such as tower flexibility and nature are explored.

Tout bâtiment est, pour nous, une réflexion par rapport à la notion d’Habiter. Elle est liée à l’idée du plaisir d’être dans un lieu : bureau, maison, salle de réunion, etc. Tous les espaces doivent proposer cette qualité qui nous semble être la meilleure assurance que, dans tous les cas, les espaces trouveront un usage, et donc qu’ils seront flexibles, évolutifs, simples, beaux, que les usagers les aimeront et qu’ils s’en sentiront responsables. C’est un principe d’écologie. Dans le projet, la qualité d’habiter est recherchée, par les espaces, la lumière, mais aussi par des systèmes tels que les balcons prolongeant les espaces intérieurs, les baies coulissantes toute hauteur, les rampes, l’espace du toit, aménagé en terrasse, qui transforment la qualité d’usage et la relation avec l’environnement.

Un «espace capable» / des sols et des espaces mis en continuité

Une structure de grande capacité génère un dispositif de sols et d’espaces mis en continuité et une superposition d’espaces peu contraints, des espaces capables, évolutifs, ouverts, spacieux, agréables. Le coeur du bâtiment s’installe sur trois niveaux de «rez-de-chaussée’, -chacun développant des caractéristiques fortes et particulières-, permettant de percevoir l’espace en continuité, de se déplacer sans perception de rupture, et d’assurer l’accessibilité de la diversité des occupants:

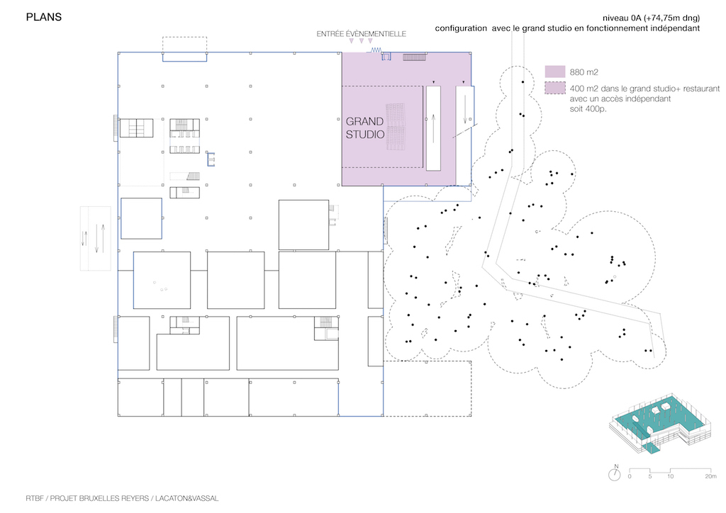
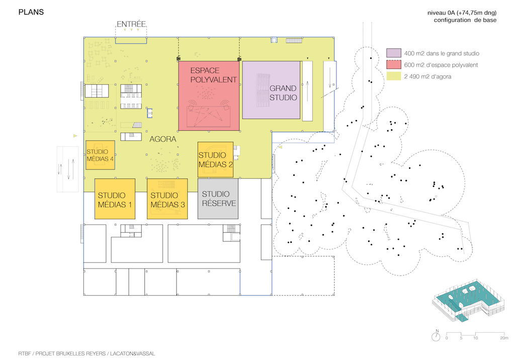
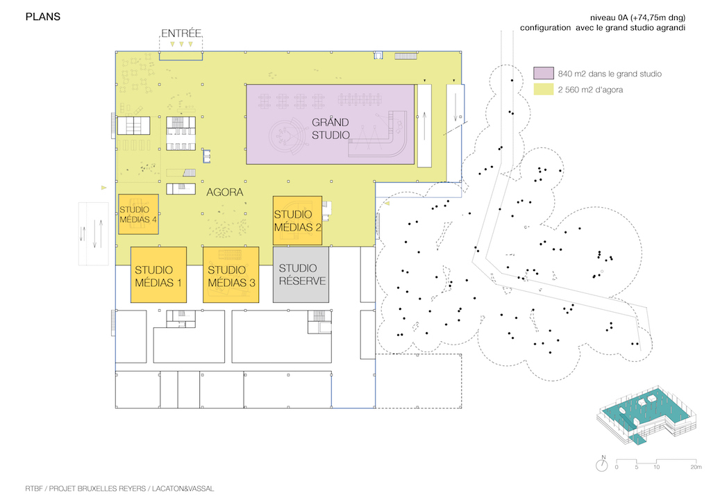
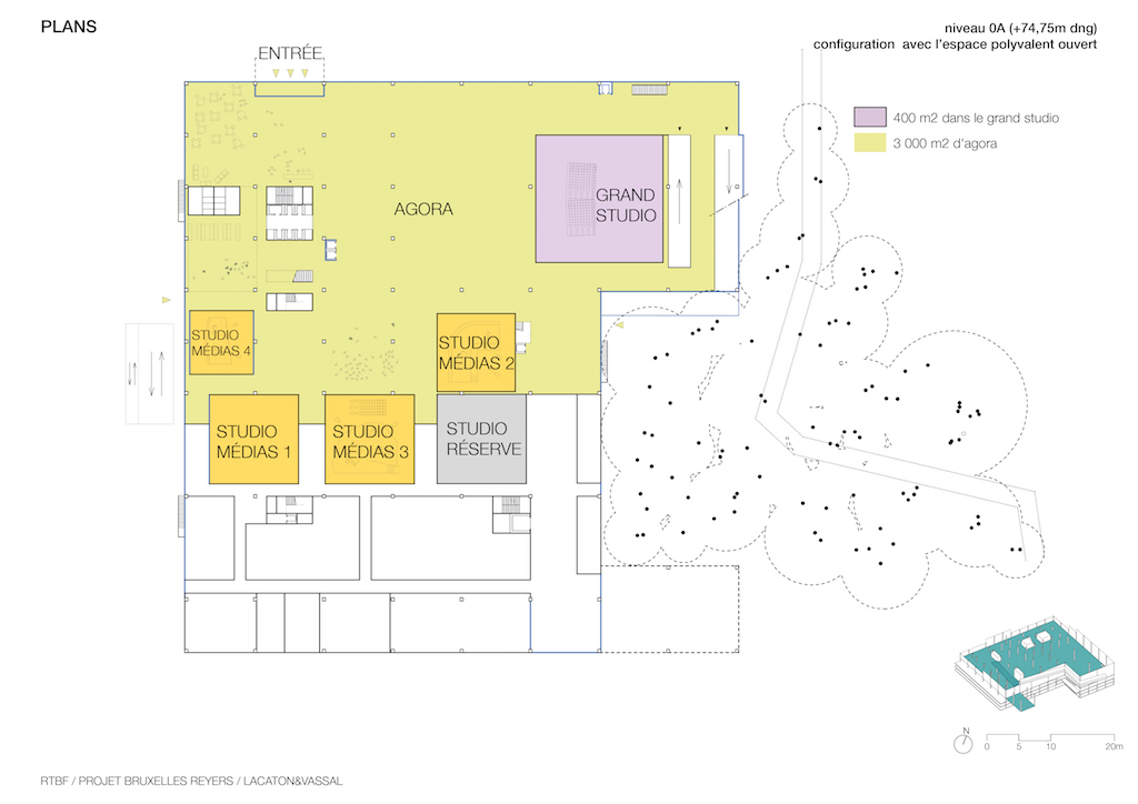
– Le rez-de-chaussée (niveau 74,75 dng), très libre, très ouvert, très fluide, offrant une grande volumétrie. Accessible de plain-pied partout, il profite de la topographie et des pentes du terrain, pour rattacher le restaurant en léger contrebas.
– La Newsroom et ses mezzanines à 12 m et 15,70 m du sol, constitue un paysage intérieur, totalement décloisonné, centré sur le coeur de la Newsroom.
– L’espace ouvert du toit de la Newsroom, d’où émerge l’immeuble qui abrite les bureaux de l’administration. A 20 m au-dessus du sol, il détermine une nouvelle agora, un «rez-de-canopée» des arbres environnants.

Tous ces espaces principaux (spécifiques) de la RTBF sont mis en continuité et s’enchainent facilement par une large rampe, accrochant aussi le sol extérieur, les balcons, les terrasses, le toit, en longeant la masse de beaux arbres à l’est, comprise dans notre terrain, que nous gardons intacte et qui s’intègre dans le projet.

Un structure qui crée la capacité, la flexibilité, la liberté

Le système constructif permet de créer la capacité, la flexibilité et la liberté souhaitées: liberté d’évolution du projet, en permettant les discussions, les adaptations, les ajustements, les évolutions du programme, liberté d’évolution future, pour donner à la RTBF la capacité à évoluer, la liberté d’usage pour ses habitants.

1607-LAV-BRU.BE-2015 — Posted in 2016 — Explore more projects on office and office building — Climate: oceanic / maritime and temperate — Coordinates: 50.853813, 4.408187 — Team: Anne Lacaton, Jean Philippe Vassal, Gaëtan Redelsperger, Ara Gonzalez Cabrera, Pablo Gomez Rodriguez, Alberto Geuna, Adrian Alvarez — Consultant: ITF, Daidalos Peutz — Structural engineer: Bollinger + Grohmann — Views: 4.740