Rehabilitation + Extension d’une Maison is a completed project by BAST designed in 2013 and completed in 2013. It is located in Toulouse France in an urban setting. Its scale is small with a surface of 120 sqm an estimated budget of 100.000 € and a ratio of 833 €/sqm. Key material is metal. Concepts such as sloped roof and adaptable reuse are explored.

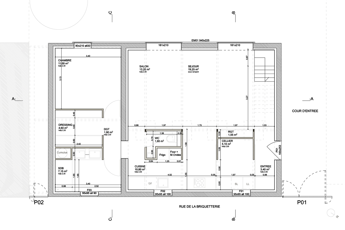
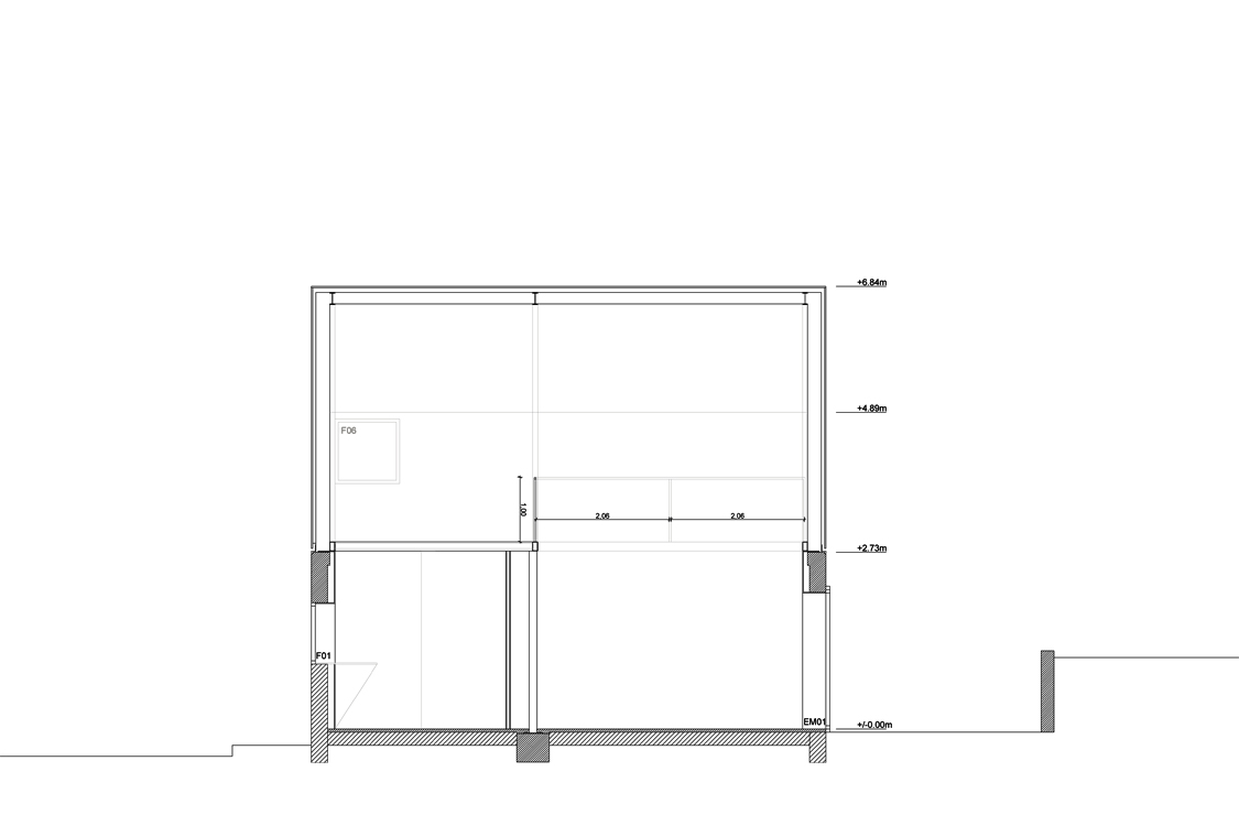
Comme dans des anciens faubourgs de Toulouse, la rue de la Briqueterie est caractérisée par une succession de maisons à pignon sur rue, aux finitions, matières et couleurs variées (enduits et badigeons, briques apparentes, peinture de façade). Le terrain se compose de la maison d’origine sur plan carrée alignée sur la rue, de son extension au Sud dans l’alignement de la rue. La première phase du projet consiste à arasée la maison existante à 3m pour ne conserver que les murs sains. Une ceinture en béton en partie haute vient consolider la maçonnerie conservée. Côté jardin, un décaissé est réalisé au-devant de la façade permettant de dégager une terrasse de plein pieds dans le prolongement de l’intérieur. Pour soutenir les terres suite à ce terrassement, deux murs de soutènement maçonné mettent en valeur la topographie du jardin. Sur les façades de la maison, les emplacements des ouvertures sont conservés, seules leurs dimensions varient. L’enduit existant vétuste est piqué pour redonner la lecture de la maçonnerie de brique et de galets de Garonne qui recevra un badigeon à la chaux, protégeant les murs mais révélant leurs textures.

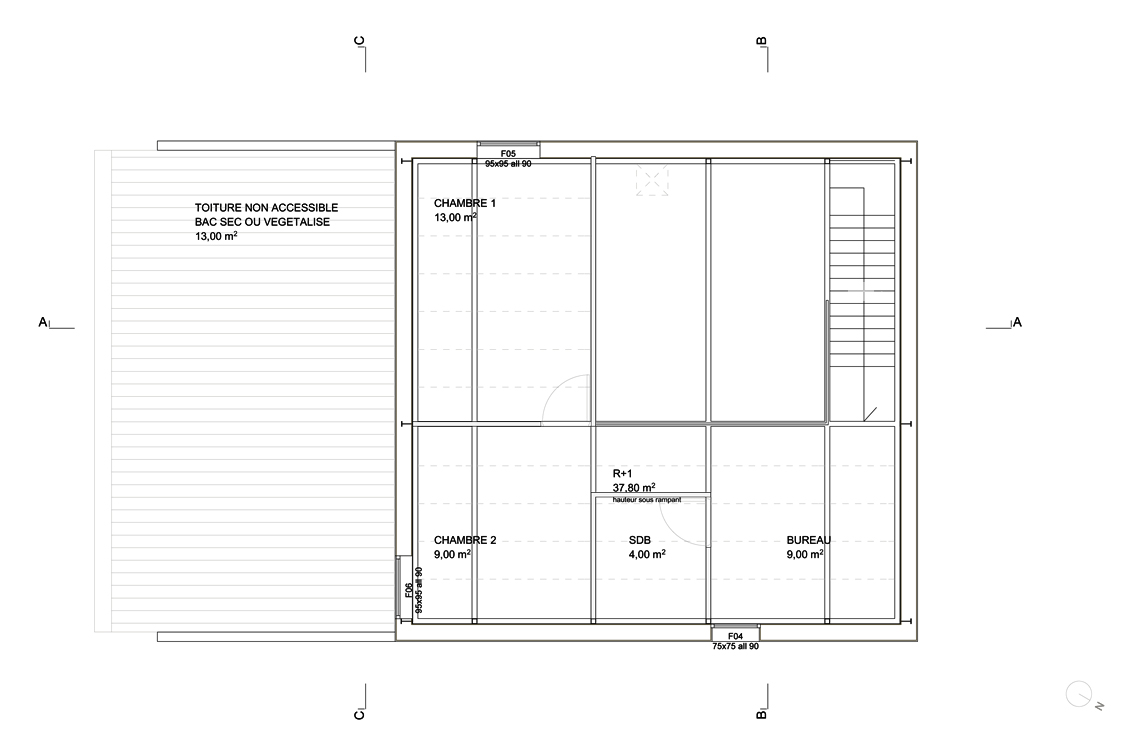
Ainsi arasée, la construction existante devient socle, et peut supporter une nouvelle construction. La seconde phase du projet consiste à implanter une construction neuve sur ce socle existant. Cette construction est alignée sur la rue, dans le prolongement du socle existant. Réalisée entièrement en ossature légère métallique, en contraste avec le socle maçonné existant, autant pour la structure en profilés acier que pour le bardage en aluminium naturel, la nouvelle construction privilégie les matériaux bruts dans une recherche d’abstraction et de lissage du volume dans ce paysage de faubourgs. Sans chercher à imiter, cette construction réinterprète les pignons sur rue caractéristiques de la rue de la Briqueterie, de façon dissymétrique afin de profiter de la lumière du Nord avec une. Inscrit dans l’histoire de cette rue, cet ensemble socle maçonné existant + construction neuve métallique fait évoluer ces typologies d’habitat vers les problématiques actuelles de renouvellement urbain et d’adaptation du bâti ancien aux nouveaux modes «d’habiter».

0663-BAS-TLS.FR-2013 — Posted in 2013 — Explore more projects on house and residential — Climate: temperate and oceanic / maritime — Views: 3.755